Wir stellen den RohbauRohbau: Außenwände, Dach, Fenster und Türen sind bereits eingebaut.
Alles andere machst Du!
Elektroinstallation
Sanitär- und Heizungsinstallation
Trockenbau
Bodenbeläge, Maler- und Tapezierarbeiten
Flexibilität:Du r entscheidest selbst über Tempo und Umfang der Arbeiten.
✅ Vorteile
Kostenersparnis durch Eigenleistung
Individuelle Gestaltung des Innenbereichs
Erhöhung des Eigenkapitals, was bessere Finanzierungskonditionen ermöglichen kann
Lern- und Mitmach-Erfahrung für handwerklich Interessierte
Sie bauen Ihr Haus
49681 Garrel
Die vollständige Adresse der Immobilie erhalten Sie vom Anbieter.
Auf Karte anzeigen
Die vollständige Adresse der Immobilie erhalten Sie vom Anbieter.
Finanzierungszertifikat
In nur zwei Minuten zu Ihrem persönlichen Finanzierungszertifkat.
Infos
| Haustyp | Einfamilienhaus |
|---|---|
| Wohnfläche ca. | 123 m2 |
| Nutzfläche | 0 m2 |
| Grundstücksfläche | 690 m2 |
| Zimmer | 3 |
| Schlafzimmer | 3 |
| Badezimmer | 1 |
| Anzahl Garage/Stellplatz | 0 |
Kosten
| Kaufpreis |
230.844 € |
|---|---|
| Provision | Nein |
Finanzierungsrechner:
Kaufpreis:
600.000 €
Eigenkapital:
600.000 €
Monatliche Rate
0 €
Effektiver Jahreszins
0 %
Sollzinsbindung
10 Jahre
Bausubstanz & Energieausweis
| Baujahr | 2026 |
|---|---|
| Bauphase | Haus in Planung (projektiert) |
| Qualität der Austattung | Gehoben |
| Heizungsart | Wärmepumpe |
Beschreibung des Objekts
Ausstattung
Lieferung und Aufstellung des Rohbaus mit Fenster und Außentüren auf bauseitiger Bodenplatte/Kellet, inkl. Statik, Bauantrag. Aufstellung erfolgt durch ein eigenes, erfahrenes und qualifiziertes Montageteam, inkl. Baustelleneinrichtung, Bautoilette ggfl. Gerüst. Dazu erhalten Sie unsere 18 Monate Festpreisgarantie. Das Haus ist nach der Übergabe des Rohbaus regendicht und wettergeschützt,
Lage
Nikolausdorf, Baugebiet Ottenweg
Sonstige Angaben
5 Zimmer + offener Wohn-/Essbereich
Flexible Grundrisse für Eure Lebenssituation
Energiesparend & nachhaltig (Alle KfW-Standards möglich)
Kurze Bauzeit
Festpreisgarantie
Persönliche Betreuung von Anfang an
Jetzt Beratungstermin sichern!
Lasst Euch unverbindlich beraten und entdeckt, wie einfach der Weg in Euer Eigenheim sein kann.
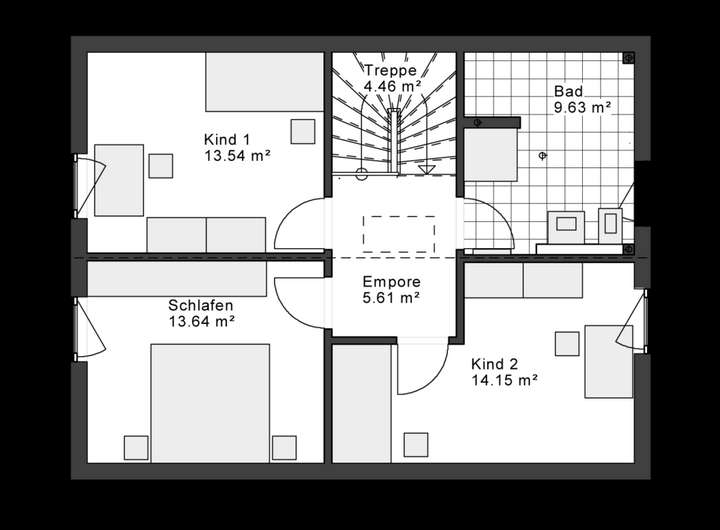
Grundriss
Grundriss EG
>
>
Grundriss OG
>
>
Adresse
49681 Garrel
Interessante Orte
Preis- und Lageinformationen
Preistrend für Bestandsimmobilien in Garrel