Die Ausbaustufe „Fast vollendet Plus“ bietet Dir die Möglichkeit, als Bauherr aktiv am Innenausbau Deines Hauses mitzuwirken, ohne umfangreiche Eigenleistungen erbringen zu müssen. In dieser Stufe sind die wesentlichen Arbeiten bereits abgeschlossen, sodass Du Dich auf die Gestaltung von Bodenbelägen, Tapeten und Innentüren konzentrieren kannst. Diese Ausbaustufe ermöglicht es Dir, persönliche Akzente zu setzen und Dein Zuhause nach Deinen Vorstellungen zu gestalten, während die grundlegenden Bauarbeiten von Fachleuten durchgeführt wurden. So profitierst Du von einem hohen Maß an Komfort und Qualität, während Du gleichzeitig die Freude an der individuellen Gestaltung Deines Wohnraums erlebst.
Dein Zuhause, so individuell wie du.
49681 Garrel
Die vollständige Adresse der Immobilie erhalten Sie vom Anbieter.
Auf Karte anzeigen
Die vollständige Adresse der Immobilie erhalten Sie vom Anbieter.
Finanzierungszertifikat
In nur zwei Minuten zu Ihrem persönlichen Finanzierungszertifkat.
Infos
| Haustyp | Bungalow |
|---|---|
| Wohnfläche ca. | 86 m2 |
| Nutzfläche | 0 m2 |
| Grundstücksfläche | 690 m2 |
| Zimmer | 3 |
| Schlafzimmer | 2 |
| Badezimmer | 1 |
| Anzahl Garage/Stellplatz | 0 |
Kosten
| Kaufpreis |
313.485 € |
|---|---|
| Provision | Nein |
Finanzierungsrechner:
Kaufpreis:
600.000 €
Eigenkapital:
600.000 €
Monatliche Rate
0 €
Effektiver Jahreszins
0 %
Sollzinsbindung
10 Jahre
Bausubstanz & Energieausweis
| Baujahr | 2026 |
|---|---|
| Bauphase | Haus in Planung (projektiert) |
| Qualität der Austattung | Gehoben |
| Heizungsart | Wärmepumpe |
Beschreibung des Objekts
Ausstattung
Lieferung und Aufstellung des Rohbaus mit Fenster und Außentüren auf bauseitiger Bodenplatte/Kellet, inkl. Statik, Bauantrag. Aufstellung erfolgt durch ein eigenes, erfahrenes und qualifiziertes Montageteam, inkl. Baustelleneinrichtung, Bautoilette ggfl. Gerüst. Dazu erhalten Sie unsere 18 Monate Festpreisgarantie. Das Haus ist nach der Übergabe des Rohbaus regendicht und wettergeschützt. In dieser Ausbaustufe werden Rollläden, Sanitär- und Elektroinstallation, Luft-Wasser-Wärmepumpe mit Fußbodenheizung, Beplankung der Decken und Dachschrägen, sowie schwimmender Estrich, Wand-Bodenfliesen in den Naßräumen, Duschwanne und Sanitärobjekte geliefert und fachgerecht montiert.
Lage
Nikolausdorf, Baugebiet Ottenweg
Sonstige Angaben
Das Haus ist projektiert inkl. Grundstück. Das Grundstück wird in Kommission angeboten bzw. direkt von Dritten verkauft. Daher kann der genannte Preis aufgrund aktueller Marktsituationen schwanken.
Die Bauabwicklung kann kurzfristig nach Grundstückserwerb begonnen werden. Bilder zeigen möglicherweise Sonderausstattungen, die auf Wunsch gegen Aufspreis zusätzlich angeboten werden können.
Erhalte in deinem persönlichen Beratungsgespräch kostenlos alle wichtigen Informationen zu diesem Projekt, insbesondere: Lage und Bebauungsmöglichkeiten des Baugrundstücks, Baukosten-Kalkulation, Finanzierungs- u. Förderungsmöglichkeiten sowie detaillierte Architektur- uund Grundrissplanung.
Wir freuen uns darauf, dich beraten zu dürfen!
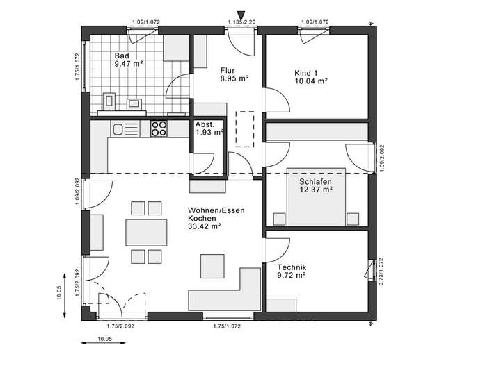
Grundriss
Grundriss EG
>
>
Adresse
49681 Garrel
Interessante Orte
Preis- und Lageinformationen
Preistrend für Bestandsimmobilien in Garrel