Baugenehmigung für zwei Zweifamilienhäuser mit traumhafter Aussicht auf den Chiemsee!
Auch eine individuelle Planung, beispielsweise mit einem Einfamilienhaus ist möglich.
Das Grundstück ist auch teilbar !
Bei diesem exklusiv von uns angebotenem Baugrundstück handelt es sich um eine Rarität süd-westlich des Chiemsees. Das 2.164 m² große, unbebaute Grundstück unweit des Süd-West Ufers bietet einen wunderbar weiten Panoramablick über den Chiemsee.
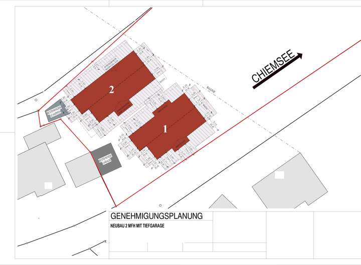
Ein renommiertes Architekturbüro hat Entwürfe erarbeitet, welche die Bebauungsmöglichkeiten dieses Grundstücks mit zwei Liegenschaften mit jeweils zwei großzügigen Wohnungen einschließlich attraktiver Außenanlagen, Sauna, Pool und Tiefgarage aufzeigen.
Eingebettet in idyllische Natur, schmiegt sich Hittenkirchen malerisch in die Natur des Chiemsees und zählt zu den begehrtesten Wohnorten unweit des Seeufers. Dieses Grundstück bietet die absolut seltene Gelegenheit, in Traumlage an einem der schönsten Seen Deutschlands ebenso individuelle wie luxuriöse Wohnvorstellungen zu verwirklichen.
Für dieses Grundstück liegt eine genehmigte Planung vor. Hierbei kann das ca. 2.164 m² große Grundstück mit insgesamt vier Wohnungen, aufgeteilt auf zwei Immobilien bebaut werden. Zudem ist bei der Realisierung eine Tiefgarage mit insgesamt sechs Stellplätzen, sowie drei weiteren Außenstellplätzen vorgesehen. Ein großer Pool und die weitläufige Gartenanlage laden die Bewohner des Hauses zum entspannen ein und runden die Planung ab. Die unten angegebenen Unterlagen liegen uns bereits vor und können von Ihnen gerne angefordert werden, sodass Sie sich ein noch genaueres Bild vom Grundstück und der genehmigten Planung machen können.
Die vorgesehene Wohnfläche teilt sich wie folgt auf:
WE 1.1 - Wohnung Erdgeschoss Wohnfläche: 106,57 m²
WE 1.2 - Wohnung Obergeschoss Wohnfläche: 106,11 m²
WE 2.1 - Wohnung Erdgeschoss Wohnfläche: 119,21 m²
WE 2.2 - Wohnung Obergeschoss Wohnfläche: 108,72 m²
Baugenehmigung für zwei ZFH mit traumhafter Aussicht auf den Chiemsee!
83209 Prien am Chiemsee
Die vollständige Adresse der Immobilie erhalten Sie vom Anbieter.
Auf Karte anzeigen
Die vollständige Adresse der Immobilie erhalten Sie vom Anbieter.
Finanzierungszertifikat
In nur zwei Minuten zu Ihrem persönlichen Finanzierungszertifkat.
Infos
| Vermarktungsart | Kaufen |
|---|---|
| Grundstücksfläche | 2.164 m2 |
Kosten
| Miete pro Jahr |
0 € |
|---|---|
| Provision | Nein |
Finanzierungsrechner:
Kaufpreis:
600.000 €
Eigenkapital:
600.000 €
Monatliche Rate
0 €
Effektiver Jahreszins
0 %
Sollzinsbindung
10 Jahre
Beschreibung des Objekts
Lage
Wenn Sie Erholung und Erlebnisse suchen, einfach mal die Seele baumeln lassen wollen, dann sind Sie in Bernau am Chiemsee genau richtig. Die traumhafte Lage des Ortes zwischen dem Südufer des Chiemsees und dem Hausberg, der Kampenwand (1.669 m), ermöglicht Radtouren, Bergwanderungen, Ausflüge und Wassersport, sowie andere Sportarten wie Golf, Tennis oder Beachvolleyball.
Hier finden Sie alle Geschäfte für den täglichen Bedarf, ebenso wie ein großes Ärztezentrum mit Apotheke und Arztpraxen, eine Grundschule sowie zwei Kindergärten. Weiterführende Schulen (Realschule, Gymnasium oder eine Waldorfschule, auch eine Musikschule) sind im angrenzenden Prien, ebenso die verschiedensten Kliniken.
Der kleine Ortsteil Hittenkirchen hat ca. 400 Einwohner und liegt malerisch auf der westlichen Anhöhe. Er ist nur wenige Minuten vom See entfernt und gilt aufgrund seiner traumhaften Lage ca. 150 Meter über dem Chiemsee als bevorzugter Wohn- und Urlaubsort.
Obstanger prägen das Landschaftsbild. Neue bauliche Erweiterungen sind nicht geplant. Der Autobahnausfahrt Bernau/Prien ist ca. 5 Min., der Flughafen Salzburg nur ca. 40 Minuten, sowie die Münchner Innenstadt ca. 60 Min. entfernt. Der Nachbarort Prien hat Anschluss an das internationale Schienennetz der Deutschen Bahn.
Das exklusive, unverbaubare und uneinsehbare Grundstück mit einer Fläche von ca. 2.163 m2 liegt unmittelbar an der Ortsgrenze von Hittenkirchen. Allein der einmalige, idyllische Blick über den Chiemsee und hinüber zu den Berggipfeln der Chiemgauer Alpen vermittelt endlose Ruhe und Entspannung. Hier können Sie sich abseits vom Seetrubel erholen und gemütlich auf Ihrer Terrasse einen romantischen Sonnenuntergang genießen.