In einer ruhigen und etablierten Wohngegend von Taucha, einer beliebten Kleinstadt direkt vor den Toren Leipzigs, steht dieses attraktive Baugrundstück mit bereits genehmigtem Wohnprojekt zum Verkauf. Das Grundstück umfasst eine Baufläche mit gültiger Baugenehmigung für ein modernes, dreigeschossiges Wohnhaus von rund 86,37 m² Wohnfläche, einen privaten Gartenbereich sowie einen PKW-Außenstellplatz. Das geplante Haus überzeugt durch ein durchdachtes Architekturkonzept, helle, offene Räume und die gelungene Verbindung von Innen- und Außenbereichen.
Dieses Angebot ist provisionsfrei für den Käufer.
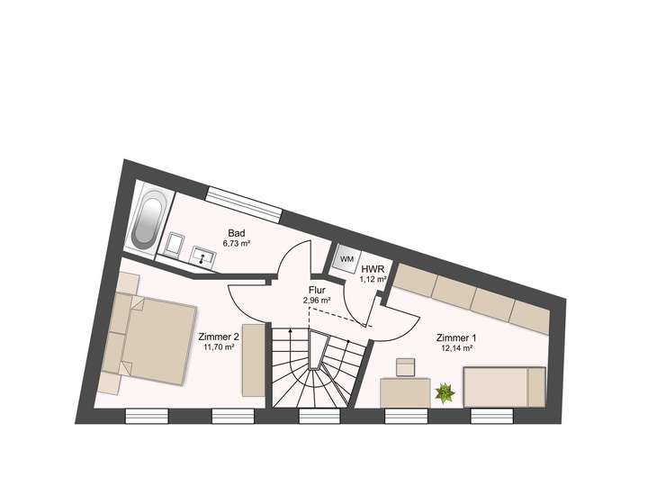
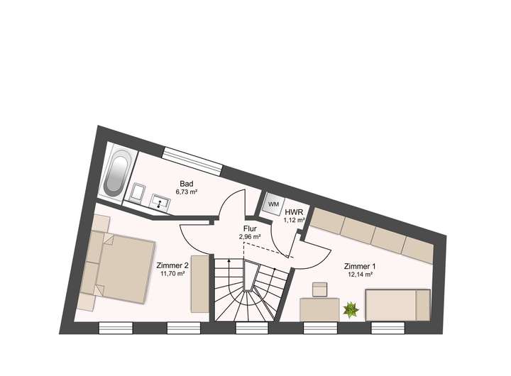
Im Erdgeschoss ist ein großzügiger Wohn- und Essbereich vorgesehen, der direkten Zugang zur Terrasse und zum privaten Garten bietet. Im Obergeschoss sind Schlaf- und Arbeitsräume geplant, während das Dachgeschoss eine weitere Terrasse für entspannte Stunden mit Blick ins Grüne bereithält. Der private Garten bietet zusätzlichen Freiraum und kann ganz nach Ihren Vorstellungen gestaltet werden.
Dank der vorhandenen Baugenehmigung können Sie unmittelbar mit dem Bau Ihres Traumhauses beginnen. Die Lage verbindet ruhiges, naturnahes Wohnen mit einer sehr guten Anbindung an Leipzig. Einkaufsmöglichkeiten, Schulen, Kindergärten und öffentliche Verkehrsmittel sind bequem erreichbar und das Stadtzentrum von Leipzig ist in wenigen Minuten zu erreichen.
Die angebotenen Grundstückseinheiten, bestehend aus Baufläche, Gartenbereich und Stellplatz, werden noch parzelliert. Die Kosten für die Teilung übernimmt der Bauträger.
Dieses Grundstück bietet eine hervorragende Möglichkeit, ein modernes Eigenheim nach genehmigtem Entwurf in einer gefragten Lage zu realisieren.
Attraktives Baugrundstück in Taucha mit Baugenehmigung | Privatgarten | Stellplatz vorhanden
04425 Taucha
Die vollständige Adresse der Immobilie erhalten Sie vom Anbieter.
Auf Karte anzeigen
Die vollständige Adresse der Immobilie erhalten Sie vom Anbieter.
Finanzierungszertifikat
In nur zwei Minuten zu Ihrem persönlichen Finanzierungszertifkat.
Infos
| Vermarktungsart | Kaufen |
|---|---|
| Grundstücksfläche | 320,18 m2 |
| Erschließung | Erschlossen |
| Empfohlene Nutzung | Einfamilienhaus |
Kosten
| Miete pro Jahr |
80.000 € |
|---|---|
| Provision | Nein |
Finanzierungsrechner:
Kaufpreis:
600.000 €
Eigenkapital:
600.000 €
Monatliche Rate
0 €
Effektiver Jahreszins
0 %
Sollzinsbindung
10 Jahre
Beschreibung des Objekts
Lage
Diese schöne Immobilie befindet sich in Taucha – eine Kleinstadt nord-östlich der Messestadt Leipzig gelegen. Taucha überzeugt durch ihre Kombination aus ländlicher Idylle und unmittelbarer Nähe zur City. Geprägt von der einmaligen Flusslandschaft der Parthe wird die Kleinstadt zusätzlich von dem umliegenden Landschaftsschutzgebiet geschmückt. Hier fühlt man sich wohl!
Die Bewohner der Stadt profitieren von einer exzellent entwickelten Infrastruktur. Zur Fahrt ins Zentrum von Leipzig benötigt man lediglich 17 Minuten mit dem Auto, 22 Minuten mit der S-Bahn oder 27 Minuten mit der Straßenbahnlinie 3.
Mehrere Kindertagesstätten, zwei Grundschulen und zwei weiterführende Bildungsstätten befinden sich direkt im Ort. Einkäufe des täglichen Bedarfs sowie auch Arzt- oder Apothekenbesuche können fußläufig erledigt werden. Auch sportlich hat Taucha einiges zu bieten. Während die abwechslungsreiche Umgebung schöne Rad- und Wanderwege, wie den bekannten Lutherweg oder den Parthe-Mulde-Radweg, zu bieten hat, sorgen Tauchas Vereine für ein ausgedehntes Sportangebot. Beliebte Ausflugsziele sind unter anderen das schöne Parthe-Bad, das altertümliche Rittergutsschloss und nicht zuletzt der Aussichtsturm des nahen gelegenen Stadtparks, welcher einen einmaligen Blick über die Stadt verspricht.
Sämtliche Attraktionen können mithilfe mehrerer Bus- und Bahnlinien erreicht werden. Diese ermöglichen nicht nur innerhalb Tauchas eine optimale Beförderung, sondern auch in der Leipziger Stadt.
Sonstige Angaben
Hinweis zur Richtigkeit und Vollständigkeit der Angaben:
Der Makler weist darauf hin, dass die von ihm weitergegebenen Objektinformationen vom Verkäufer bzw. von einem vom Verkäufer beauftragten Dritten stammen und von ihm, dem Makler, auf ihre Richtigkeit nicht überprüft worden sind. Es ist Sache des Kunden, diese Angaben auf ihre Richtigkeit hin zu überprüfen. Der Makler, der diese Informationen nur weitergibt, übernimmt für die Richtigkeit keinerlei Haftung.
Grundriss
Grundriss_EG
>
>
Grundriss_OG
>
>
Grundriss_DG
>
>