Dieses modernisierte Reihenhaus beeindruckt durch elegantes Design, erstklassige Materialien, eine durchdachte Raumaufteilung und hohe Decken. Das Haus wurde vollständig saniert und auf den neuesten Stand gebracht, inklusive komplett erneuerter Bäder, neuer Heizkörper, Fenster, Elektrik und moderner Böden. Liebevoll wurde jedes Detail sorgfältig umgesetzt.
Erdgeschoss - Lichtdurchflutet, großzügig und mit Zugang zum Außenbereich
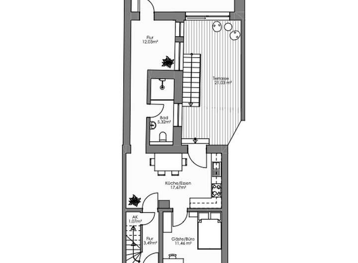
Schon beim Betreten über den einladenden Eingangsbereich spürt man die helle, offene Atmosphäre. Die großzügige Küche bietet genug Platz für kreative Kochideen und einen direkten Zugang zur Terrasse - perfekt, um den Tag im Freien zu beginnen oder ausklingen zu lassen. Ein angrenzendes Büro oder Gästezimmer sorgt für flexible Nutzungsmöglichkeiten.
Über den Flur gelangen Sie zum modern ausgestatteten Badezimmer im ersten Stock sowie in den ruhig gelegenen Wohnbereich. Das Wohnzimmer mit direktem Zugang zur Terrasse bietet einen schönen Blick auf den Innenhof und lädt zum Entspannen ein.
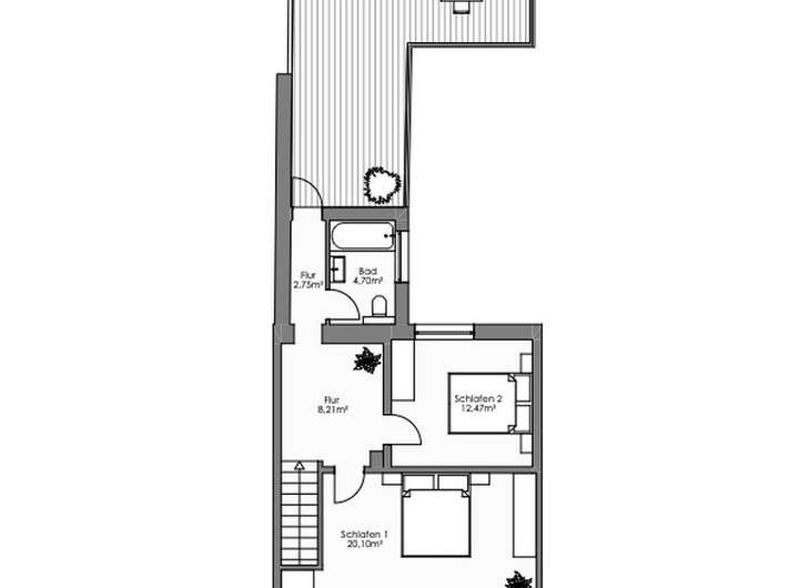
Obergeschoss - Rückzugsmöglichkeiten und eine traumhafte Dachterrasse
Im Obergeschoss erreichen Sie von einem zentralen Flur aus zwei gemütliche Schlafzimmer, die ruhige Rückzugsorte darstellen. Von hier raus kommen Sie ebenfalls zum zweiten Badezimmer, das dank eines Fensters viel Tageslicht erhält und mit moderner Ausstattung begeistert.
Das Highlight dieser Etage ist die großzügige Dachterrasse von etwa 40 m². Ob Sonnenbaden, Grillen oder ein geselliger Abend mit Freunden - dieser Außenbereich ist perfekt für besondere Momente.
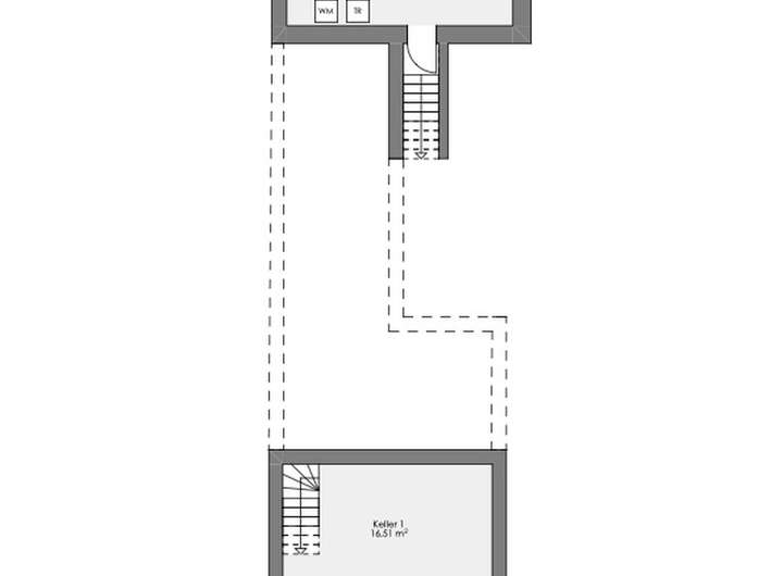
Das Haus verfügt über zwei große, separate Kellerräume, die als Stauraum oder Waschküche genutzt werden können.
Erstbezug: Saniertes Stadthaus im Zentrum von Frechen
50859 Köln
Die vollständige Adresse der Immobilie erhalten Sie vom Anbieter.
Auf Karte anzeigen
Die vollständige Adresse der Immobilie erhalten Sie vom Anbieter.
Finanzierungszertifikat
In nur zwei Minuten zu Ihrem persönlichen Finanzierungszertifkat.
Infos
| Haustyp | Reihenmittelhaus |
|---|---|
| Etagenzahl | 2 |
| Wohnfläche ca. | 155 m2 |
| Nutzfläche | 47 m2 |
| Grundstücksfläche | 140 m2 |
| Bezugsfrei ab | sofort |
| Zimmer | 4 |
| Schlafzimmer | 3 |
| Badezimmer | 2 |
Kosten
| Kaufpreis |
450.000 € |
|---|---|
| Provision | Nein |
Finanzierungsrechner:
Kaufpreis:
600.000 €
Eigenkapital:
600.000 €
Monatliche Rate
0 €
Effektiver Jahreszins
0 %
Sollzinsbindung
10 Jahre
Bausubstanz & Energieausweis
| Baujahr | 1900 |
|---|---|
| Bauphase | Haus fertig gestellt |
| Objektzustand | Erstbezug nach Sanierung |
| Heizungsart | Zentralheizung |
| Wesentliche Energieträger | Gas |
| Energieausweis | liegt vor |
| Energieausweistyp | Bedarfsausweis |
| Energieverbrauchskennwert | 190,0 kWh/(m²*a) |
| Energieeffizienzklasse | F |
190,0
kWh/(m²*a)
Energieeffizienzklasse F
- A+
- A
- B
- C
- D
- E
- F
- G
- H
- 0
- 25
- 50
- 75
- 100
- 125
- 150
- 175
- 200
- 225
- >250
Beschreibung des Objekts
Ausstattung
Balkon, Terrasse, Dachterrasse, Vollbad, Duschbad, Gäste-WC, Fliesen
Bemerkungen:
Das Reihenhaus wurde im November 2025 fertiggestellt. Durch die komplette Sanierung bleiben keine Wünsche mehr offen.
im folgenden wurde erneuert:
- komplette Elektrik
- die ganzen Sanitäreinrichtungen
-Böden
- glatt verputzte Wände
-Türen
-Heizkörper und alle Heiz-/ Wasserleitungen
-Fenster
-Dämmung Dachterrasse
-Neue Brüstungen Dachterrasse
- Eine neue Heizung kann auf Wunsch ebenfalls eingebaut werden.
Lage
Lebensqualität pur - Wohnen im Herzen von Frechen Zentrum
Das frechener Zentrum bietet eine ideale Mischung aus urbanem Komfort, hervorragender Infrastruktur und einer charmanten, familienfreundlichen Atmosphäre. Hier wohnen Sie mitten im Geschehen und genießen gleichzeitig die Vorzüge einer ruhigen und gepflegten Umgebung.
Im Zentrum von Frechen finden Sie alles, was Sie für den Alltag benötigen. Von Supermärkten, Apotheken und Drogerien bis hin zu Banken und Ärzten - alle wichtigen Einrichtungen befinden sich in fußläufiger Nähe. Darüber hinaus laden zahlreiche Cafés, Restaurants und kleine Geschäfte zum Verweilen und Bummeln ein.
Das frechener Zentrum ist verkehrstechnisch hervorragend angebunden. Die Straßenbahnlinie 7 verbindet Sie direkt mit der Kölner Innenstadt, und die Autobahnen A1 und A4 sind nur wenige Minuten entfernt. Auch der öffentliche Nahverkehr innerhalb von Frechen und in die umliegenden Städte ist bestens ausgebaut.
Für Familien bietet Frechen Zentrum zahlreiche Kindergärten, Schulen und Spielplätze, die leicht erreichbar sind. Sport- und Freizeitangebote, wie das Freizeitbad "fresh open", Tennis- und Sportvereine oder der nahegelegene Stadtwald, machen die Lage besonders attraktiv. Egal ob Sie die Natur genießen, sportlich aktiv werden oder entspannen möchten - hier ist alles möglich.
Frechen ist bekannt für seine traditionsreiche Geschichte und die herzliche Nachbarschaft. Regelmäßige Veranstaltungen, wie Straßenfeste oder Märkte, verleihen der Stadt ein lebendiges und einladendes Flair. Historische Gebäude und gepflegte Grünanlagen sorgen für eine besondere Atmosphäre, in der sich jeder wohlfühlt.
Das frechener Zentrum bietet die perfekte Balance aus urbanem Leben und persönlichem Rückzugsort. Ob als Single, Paar oder Familie - hier finden Sie einen Standort, der allen Ansprüchen gerecht.
Sonstige Angaben
Heizungsart: Zentralheizung
Energieträger: Gas
Makleranfragen nicht erwünscht. Nach § 7 UWG sind unaufgeforderte Kontaktaufnahmen durch Makler ohne ausdrückliche Einwilligung des Empfängers verboten!
ohne-makler (OM) ist weder Anbieter noch Vermittler der Immobilie. OM betreibt eine Plattform für Immobilieneigentümer, die unter anderem die gleichzeitige Veröffentlichung einzelner Inserate auf mehreren Immobilienportalen ermöglicht. Die Inhalte dieser Inserate werden ausschließlich von Dritten verantwortet. Für die Richtigkeit, Vollständigkeit oder Rechtmäßigkeit der Angaben übernimmt OM keine Haftung. Hinweise auf mögliche Rechtsverstöße können jederzeit gemeldet werden und werden nach Prüfung umgehend bearbeitet.
Adresse
50859 Köln
Interessante Orte
Preis- und Lageinformationen
Preistrend für Bestandsimmobilien in Lövenich