Dieses freistehende Einfamilienhaus bietet mit ca. 109 m² Wohn- und Nutzfläche Raum für individuelle Gestaltungsideen. Das Haus steht auf einem ca. 350 m² großen Grundstück in ruhiger, idyllischer Lage und überzeugt durch seine gute Anbindung sowie vielfältige Nutzungsmöglichkeiten.
Das Objekt besteht aus einem Hauptgebäude und einem Anbau, die funktional miteinander verbunden sind.
---
Raumaufteilung
Hauptgebäude
Erdgeschoss:
•Eingangsbereich mit Vorbau
•Flur
•Wohnzimmer mit Zugang zur sonnigen Terrasse
•Küche mit angrenzender Speisekammer
Dachgeschoss:
•Drei Zimmer
•Flur mit Ausgang zum Balkon
Anbau (halbversetzt zum Hauptgebäude, Zugang über Treppe von der Küche)
Erdgeschoss:
•Ein Zimmer
•Badezimmer
•Heizungsraum
•Gang und Öllager
Dachgeschoss:
•Dachboden (über eine Leiter vom Öllager aus zugänglich)
---
Außenbereich
Die großzügige Süd-Terrasse bietet einen herrlichen Platz zum Entspannen im Grünen. Zusätzlich ist eine freistehende Garage aus dem Jahr 1958 vorhanden.
---
Zustand
Das Haus steht derzeit leer und befindet sich in einem renovierungsbedürftigen Zustand – ideal für Käufer mit handwerklichem Geschick oder einem Blick für Potenziale.
Ob als Eigenheim oder zur Vermietung: Dieses Haus bietet vielfältige Möglichkeiten zur individuellen Entfaltung.
Es handelt sich um ein Eigentumsgrundstück (kein Erbpacht)!
Seltene Gelegenheit: Einfamilienhaus zum Sanieren in Völksen
Steinhauerstraße 59,
31832 Springe
Auf Karte anzeigen
Finanzierungszertifikat
In nur zwei Minuten zu Ihrem persönlichen Finanzierungszertifkat.
Infos
| Haustyp | Einfamilienhaus |
|---|---|
| Wohnfläche ca. | 109 m2 |
| Grundstücksfläche | 350 m2 |
| Zimmer | 5 |
| Badezimmer | 1 |
Kosten
| Kaufpreis |
115.000 € |
|---|---|
| Provision | Nein |
Finanzierungsrechner:
Kaufpreis:
600.000 €
Eigenkapital:
600.000 €
Monatliche Rate
0 €
Effektiver Jahreszins
0 %
Sollzinsbindung
10 Jahre
Bausubstanz & Energieausweis
| Baujahr | 1936 |
|---|---|
| Objektzustand | Renovierungsbedürftig |
| Wesentliche Energieträger | Öl |
| Energieausweis | liegt vor |
| Energieausweistyp | Bedarfsausweis |
| Energieverbrauchskennwert | 438,8 kWh/(m²*a) |
| Energieeffizienzklasse | H |
438,8
kWh/(m²*a)
Energieeffizienzklasse H
- A+
- A
- B
- C
- D
- E
- F
- G
- H
- 0
- 25
- 50
- 75
- 100
- 125
- 150
- 175
- 200
- 225
- >250
Beschreibung des Objekts
Lage
In einer der charmantesten Lagen des Springer Ortsteils Völksen vereint dieses Einfamilienhaus idyllisches Wohnen mit hervorragender Anbindung. Die Steinhauerstraße ist geprägt von gepflegten Einfamilienhäusern, altem Baumbestand und einer ruhigen Nachbarschaft – ein Rückzugsort mit Charakter.
Nur wenige Minuten entfernt befinden sich Einkaufsmöglichkeiten, Schulen und ärztliche Versorgung. Für Pendler bietet die Nähe zur B217 und die Bahnanbindung nach Hannover ein hohes Maß an Flexibilität.
Die unmittelbare Nähe zum Deister macht das Wohnumfeld besonders attraktiv: Spaziergänge, Radtouren und Naturerlebnisse beginnen quasi vor der Haustür. Völksen selbst lebt von einer lebendigen Dorfgemeinschaft und bietet eine hohe Lebensqualität – perfekt für alle, die naturnahes Wohnen mit urbaner Erreichbarkeit verbinden möchten.
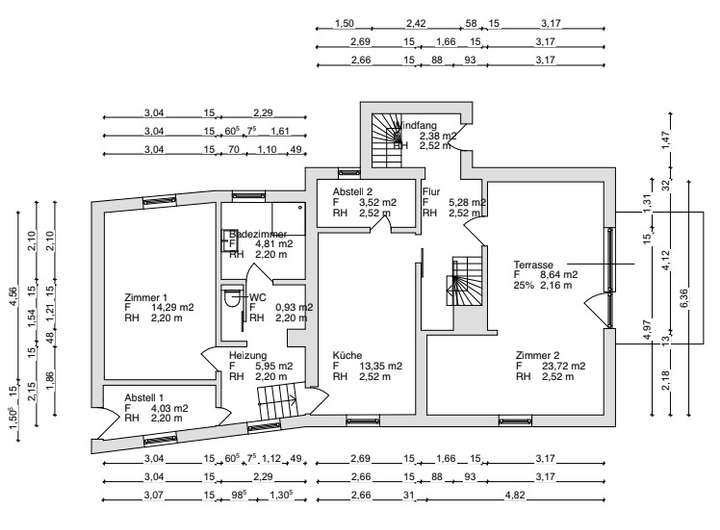
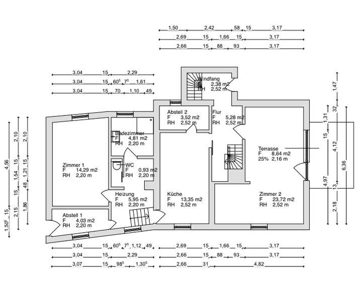
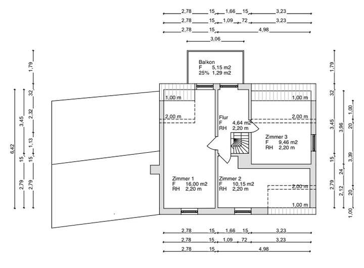
Grundriss
Grundriss EG
>
>
Grundriss DG
>
>
Adresse
Steinhauerstraße 59, 31832 Springe
Interessante Orte
Preis- und Lageinformationen
Preistrend für Bestandsimmobilien in Springe