Preis entspricht
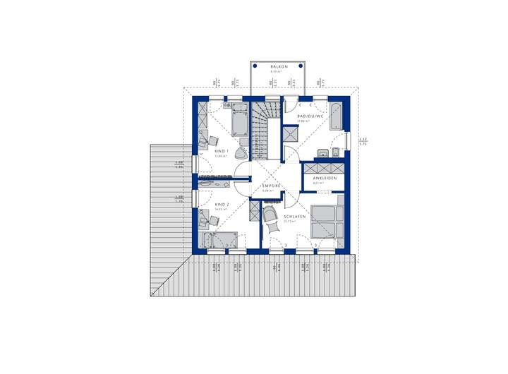
Das projektierte Bien-Zenker Haus, vereint durchdachte Architektur mit einer Vielzahl an Gestaltungsmöglichkeiten und wird ganz nach Ihren Wünschen und Vorstellungen gefertigt. Mit einer Wohnfläche von 150,76 m² und fünf großzügigen Zimmern bietet dieses Haus ausreichend Platz für die ganze Familie. Im Erdgeschoss verschmelzen Wohnen, Essen, Kochen und Arbeiten auf harmonische Weise, während im Obergeschoss drei einladende Schlafzimmer und zwei Badezimmer zum Rückzug und Entspannen einladen. Die durchdachte Aufteilung sorgt für eine ideale Verknüpfung der Räume, die sowohl Familienleben als auch Privatsphäre gewährleistet und somit ein angenehmes Wohngefühl schafft.
Die Komfortdetails dieses Hauses sind beeindruckend. Genießen Sie die frische Luft auf einem der drei Terrassen oder entspannen Sie auf dem Balkon, während Sie die Aussicht auf die Umgebung genießen. Die lichtdurchfluteten Räume werden durch große Fensterfronten perfekt in Szene gesetzt und schaffen eine einladende Atmosphäre. Zudem bieten die verschiedenen Bodenbeläge wie Fliesen, Laminat und Teppichboden eine harmonische und individuelle Gestaltungsmöglichkeit, die Ihren persönlichen Stil unterstreicht und den Alltag angenehm gestaltet.
Die Ausbaustufe ZAF ist perfekt für Bauherren, die aktiv mitgestalten möchten. Sie erhalten ein schlüsselfertiges Haus bis zum Rohbau und technischen Innenausbau, während Sie sich um die Böden, Malerarbeiten und Sanitärinstallationen kümmern. Diese Option ermöglicht es Ihnen, Geld zu sparen und Ihre persönlichen Ideen und handwerklichen Fähigkeiten einzubringen. Der Bauprozess wird so für Sie komfortabel und effizient gestaltet, sodass dem Einzug in Ihr neues Zuhause nichts im Wege steht.
Bei Bien-Zenker ist es nie nur »Haus.« Es ist Zuhause, es ist Ankommen, es ist Familie. Bien-Zenker, das sind 80.000 gebaute Häuser, mehr als 700 Mitarbeitende und über 115 Jahre Erfolgsgeschichte. Der Pionier des Fertighauses mit Sitz im hessischen Schlüchtern zählt zu den größten und erfahrensten Fertighausanbietern Deutschlands. Dank Know-how, Leidenschaft und Einfühlungsvermögen wird jede Baufamilie individuell und kompetent beraten und unterstützt - bis sie den Schlüssel in die Tür des eigenen Heims stecken können. Mit wohngesunden Materialien und zukunftsweisenden Standards ist nicht nur jedes Bien-Zenker Haus für die Zukunft gerüstet, sondern auch jeder Bauherr.
Grundrisse und Abbildungen können Extras zeigen. Flächenangaben nach DIN 277.
Design trifft auf Herz: Stilvolles Wohnen, das Ihre Seele berührt.
63825 Westerngrund
Die vollständige Adresse der Immobilie erhalten Sie vom Anbieter.
Auf Karte anzeigen
Die vollständige Adresse der Immobilie erhalten Sie vom Anbieter.
Finanzierungszertifikat
In nur zwei Minuten zu Ihrem persönlichen Finanzierungszertifkat.
Infos
| Haustyp | Einfamilienhaus |
|---|---|
| Etagenzahl | 2 |
| Wohnfläche ca. | 150 m2 |
| Grundstücksfläche | 1.500 m2 |
| Zimmer | 5,5 |
| Schlafzimmer | 3 |
| Badezimmer | 2 |
Kosten
| Kaufpreis |
832.599 € |
|---|---|
| Provision | Nein |
Finanzierungsrechner:
Kaufpreis:
600.000 €
Eigenkapital:
600.000 €
Monatliche Rate
0 €
Effektiver Jahreszins
0 %
Sollzinsbindung
10 Jahre
Bausubstanz & Energieausweis
| Baujahr | 2025 |
|---|---|
| Bauphase | Haus in Planung (projektiert) |
| Objektzustand | Erstbezug |
| Qualität der Austattung | Gehoben |
| Heizungsart | Wärmepumpe |
Beschreibung des Objekts
Ausstattung
In Krombach erwartet Sie eine attraktive Umgebung mit zahlreichen Möglichkeiten für Bildung, Freizeit und Gesundheit. Schulen, Kindergärten und Einkaufsmöglichkeiten sind bequem und schnell erreichbar. Für Ihre Gesundheitsversorgung stehen Ihnen in der Nähe mehrere Arztpraxen und Apotheken zur Verfügung. Die gute Anbindung an den öffentlichen Nahverkehr und die Autobahn garantiert Ihnen zudem Mobilität und Flexibilität, sodass Sie die Städte der Umgebung mühelos erreichen können. Diese Lage vereint die Vorteile ländlichen Lebens mit der Nähe zu urbanen Zentren und ist somit ideal für Familien und Berufstätige.
Lage
- Großzügige Grundstücksfläche: ca. 1.600 m²
- Sonnige Feldrandlage mit unverbaubarem Blick
- Bebauung nach § 34 BauGB (Umgebungsbebauung) möglich
- Teilerschlossen - alle Versorgungsleitungen liegen straßenseitig an
- Keine Käuferprovision!
Westerngrund-Huckelheim liegt eingebettet in die sanfte Hügellandschaft des bayerischen Spessarts - ein Ort, der Ruhe, Weite und Naturverbundenheit vereint. Hier begegnen sich dörflicher Charme und ein harmonisches Miteinander, das typisch für die Region ist. Wer einen Wohnort sucht, der Geborgenheit und Freiraum zugleich bietet, findet in Huckelheim den idealen Rückzugsort.
Die Umgebung ist geprägt von Feldern, Wäldern und klarer Luft - ein landschaftliches Idyll, das zum Verweilen und Entschleunigen einlädt. Spaziergänge entlang der Feldwege, Radtouren durch die hügelige Umgebung oder ein stiller Abendblick über die Weite - all das ist hier Teil des Alltags.
Gleichzeitig ist Westerngrund verkehrstechnisch angenehm angebunden: In rund 20 bis 25 Minuten erreichen Sie die Städte Aschaffenburg, Alzenau oder Gelnhausen - mit allen Einkaufsmöglichkeiten, Schulen, medizinischer Versorgung und kulturellen Angeboten. Der Anschluss an die A45 sowie die A3 ist schnell erreichbar und sorgt für eine gute Verbindung in Richtung Frankfurt oder Würzburg.
Huckelheim selbst zeichnet sich durch seine ruhige und gepflegte Wohnlage aus. Die Nachbarschaft ist freundlich und familiär, das Ortsbild von liebevoll gepflegten Häusern und weitläufigen Gärten geprägt. Für Familien und naturverbundene Bauherren eröffnet sich hier ein idealer Lebensmittelpunkt: naturnah, sicher und mit Raum für persönliche Gestaltung.
Sonstige Angaben
Wussten Sie, dass Ihr Traumhaus bei Bien-Zenker nicht nur Ihnen ein Zuhause schenkt - sondern auch tausende Bienen? Seit 2017 erhalten Bauherren, die mit uns bauen, eine Bienenpatenschaft, mit der sie gemeinsam mit Bien-Zenker einen Beitrag zum
Bienenschutz leisten.
Direkt auf dem Werksgelände in Schlüchtern wurde ein sogenanntes "Bienen-Begegnungshaus" errichtet - ein speziell konzipiertes Haus für bis zu einer Million Bienen und 18 Bienenvölker. Dort wird sichtbar, wie Bienenvölker gepflegt werden und wie wichtig ihre Bestäubungsleistung für Obst, Wildpflanzen und unser Ökosystem ist - für rund 80 % der heimischen Nutz- und Wildpflanzen spielen Bienen eine zentrale Rolle.
Mit jeder Bienenpatenschaft wächst nicht nur Ihr Traumhaus, sondern auch das Leben um uns herum.
Adresse
63825 Westerngrund
Interessante Orte
Preis- und Lageinformationen
Preistrend für Bestandsimmobilien in Westerngrund