Modernes Wohnen für die ganze Familie auf 124 m²!
Bereits im Kaufpreis enthalten:
- Baugrundstück zuzüglich Grunderwerbsteuer und Notarkosten
- Bodengutachten
- projektiertes Haus als Effizienzhaus 40 'PLUS, "zur Ausstattung fertig" (gerne bieten wir es Ihnen auch "schlüsselfertig" an), zuzüglich regionaler Baunebenkosten (Dies erörtern wir gerne mit Ihnen in einem gemeinsamen Gespräch.)
- innovative Effizienzhaus 40 Wand
- Photovoltaikanlage mit Batteriespeicher
- innovative Effizienzhaus 40 Thermo-Energiesparfenster mit 3-Scheiben-Isolierverglasung für energiebewusstes Wohnen
- Außenfensterbänke, in verschiedenen Farben wählbar
- hochwertige Dacheindeckung mit 30 Jahren Herstellergarantie - moderne Vollholzhaustür mit 5-Punkt-Verriegelung mit Edelstahlgriff
- modernste, effiziente und innovative Heizungstechnik mit unserer Wohlfühlklimaheizung inkl. Kühlfunktion und integriertem Pollenfilter, bestens geeignet für Familien mit Kindern und Allergiker
- ein IPad 64 GB
Bestpreisgarantie bei Bien-Zenker - Lassen Sie uns gemeinsam Ihr Traumhaus planen in Beuren (Hochwal
54413 Beuren (Hochwald)
Die vollständige Adresse der Immobilie erhalten Sie vom Anbieter.
Auf Karte anzeigen
Die vollständige Adresse der Immobilie erhalten Sie vom Anbieter.
Finanzierungszertifikat
In nur zwei Minuten zu Ihrem persönlichen Finanzierungszertifkat.
Infos
| Haustyp | Einfamilienhaus |
|---|---|
| Etagenzahl | 2 |
| Wohnfläche ca. | 124 m2 |
| Grundstücksfläche | 1.000 m2 |
| Zimmer | 4 |
| Schlafzimmer | 3 |
| Badezimmer | 1 |
Kosten
| Kaufpreis |
437.924 € |
|---|---|
| Provision | Nein |
Finanzierungsrechner:
Kaufpreis:
600.000 €
Eigenkapital:
600.000 €
Monatliche Rate
0 €
Effektiver Jahreszins
0 %
Sollzinsbindung
10 Jahre
Bausubstanz & Energieausweis
| Baujahr | unbekannt |
|---|---|
| Qualität der Austattung | Gehoben |
Beschreibung des Objekts
Ausstattung
Gerne planen wir Ihr Haus individuell nach Ihren Wünschen und Vorstellungen!
Das Haus wird Ihnen "zur Ausstattung fertig" angeboten (zAf).
Ihre Eigenleistung beinhaltet den Innenausbau: Fliesen, Böden, Wände, sanitäre Objekte und Innentüren.
Auf Wunsch führen wir Ihnen das Haus auch "schlüsselfertig" aus.
Lage
Beuren (Hochwald) ist eine Ortsgemeinde im Landkreis Trier-Saarburg und gehört zur Verbandsgemeinde Hermeskeil. Mit rund 1.000 Einwohnern liegt der Ort im Naturpark Saar-Hunsrück und bietet eine hohe Lebensqualität in naturnaher Umgebung.
Für Familien stehen in den umliegenden Gemeinden Kindergärten und Schulen zur Verfügung. Einkaufsmöglichkeiten, Ärzte und Apotheken befinden sich in der nahegelegenen Stadt Hermeskeil.
Die Verkehrsanbindung ist durch die Nähe zur B52 gegeben, die eine schnelle Verbindung nach Trier und Luxemburg ermöglicht.
Beuren bietet eine aktive Dorfgemeinschaft mit zahlreichen Vereinen und Freizeitmöglichkeiten in der umliegenden Natur.
Sonstige Angaben
Profitieren Sie von unseren Bien-Zenker Vorteilen:
- 18 Monate Festpreisgarantie
- Baupreis-Index-Sicherung (bei fallenden Baupreisen sinkt auch Ihr Hauspreis)
- Grundstücksservice: Egal, ob es dieses Grundstück oder ein anderes werden soll - wir unterstützen Sie aktiv und kostenfrei bei Ihrer Suche nach einem geeigneten Grundstück für Ihr Zuhause.
- Premium Versicherungspaket inkl.
- KFN und KFN-QNG förderfähige Planung (inkl. Baubegleitung durch eigene Bien-Zenker Sachverständige)
- DGNB-Zertifikat in Gold (der gesamte Lebenszyklus Ihres Bien-Zenker Hauses hat Gold-Standard für höchste ökologische, ökonomische, funktionale und technische Qualität)
- QNG-Zertifizierung (Qualitätssiegel Nachhaltiges Gebäude) für KFN-QNG KFW-Förderung optional
- Bien-Zenker App (direkter Kontakt zu Ansprechpartnern, Überblick Projektfortschritt, Budgetrechner Zugriff auf Bauunterlagen und Inspirations-Pinnwand)
- Baustelleneinrichtung (Abfallcontainer, Baustellen-WC, Montagekran, Montagegerüst)
Wir informieren umgehend über neue Fördermöglichkeiten. Unabhängig davon sind unsere Angebote auch so attraktiv! Überzeugen Sie sich selbst!
Bei dem dargestellten Objekt handelt es sich um eine Projektierung, die im Hinblick auf Kubatur, architektonische Gestaltung und Energieeffizienzklasse an individuelle Anforderungen und Bedürfnisse unserer Bauherren angepasst werden kann. Ein bedarfsbestimmter Energieausweis wird nach endgültiger Planung und unter Berücksichtigung regionaler baurechtlicher Bestimmungen erstellt und an die Bauherren nach Fertigstellung übergeben.
Angebotspreis zuzüglich Grunderwerbs- und Baunebenkosten. Vorbehaltlich Irrtümer und Zwischenverkauf. Abbildungen, Fotos und Grundrisse enthalten Extras. Bitte beachten Sie die Erklärung zur Datenschutzverordnung im Impressum.
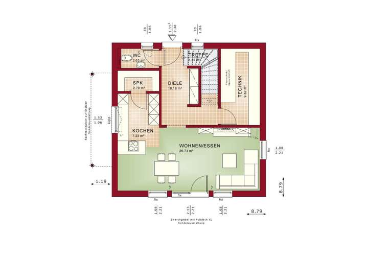
Grundriss
Grundriss Erdgeschoss
>
>
Grundriss Dachgeschoss
>
>
Adresse
54413 Beuren (Hochwald)
Interessante Orte
Preis- und Lageinformationen
Preistrend für Bestandsimmobilien in Beuren (Hochwald)