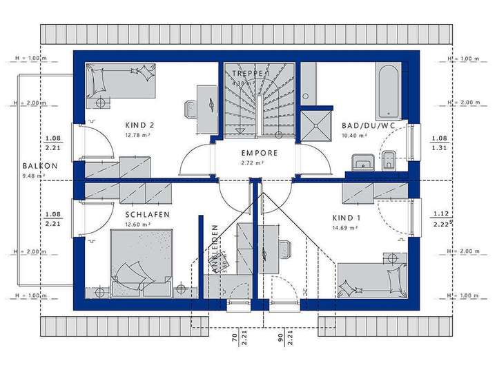
Das Einfamilienhaus mit Satteldach ist nach wie vor der am häufigsten gebaute Haustyp. Kein Wunder, bringt diese Dachform doch zahlreiche Vorteile mit sich: Zum einen ist sie einfach in ihrer Konstruktion, zum anderen nahezu überall baurechtlich umsetzbar. Dabei eröffnet die moderne Satteldacharchitektur einen großen Gestaltungsspielraum. Ob weite Dachüberstände oder ganz ohne, ob steil oder flach geneigt: Stilgerecht erfüllt das Dach die individuellen Ansprüche der Bauherren. Bei diesem Hausentwurf sorgt die flache Neigung im Zusammenspiel mit dem pultdachgekrönten Zwerchgiebel für ein sehr modernes, geradliniges Erscheinungsbild. Weite Dachüberstände und die leuchtend rote Eindeckung knüpfen an die traditionelle Bauweise an. Damit passt sich das Fertighaus auch in gewachsene Baugebiete harmonisch ein. Ein schönes Detail ist der von Stützen getragene Balkon, der das Dachgeschoss um ein sonniges Plätzchen unter freiem Himmel erweitert und die Terrasse zudem vor Regen schützt. Das Innere des Hauses überzeugt mit einem klaren, leicht verständlichen Grundriss, der sich am Alltag einer vierköpfigen Familie orientiert. Empfangen werden die Bewohner und Besucher von einer geräumigen Diele, in der sich auch mehrere Personen gleichzeitig aufhalten können, ohne dass Gedränge entsteht. Rechts schließt sich der Technikraum und links das Gäste-WC an. Über einen offen Durchgang gelangt man von der Diele direkt in den Wohn- und Essbereich, wo man es sich entweder am großen Esstisch oder auf der Couch gemütlich machen kann. Die Küche wurde über Eck halboffen an das Raumensemble angegliedert. So haben Gäste nicht ständig Töpfe und Geschirr im Blick. Vorräte und andere Dinge, die man nicht täglich benötigt, verschwinden ordentlich in der Abstellkammer unter der viertelgewendelten Treppe. Das Dachgeschoss ist für die Privaträume reserviert. Die Wohnfläche teilen sich zwei große Kinderzimmer, der Elternschlafraum sowie ein schönes Familienbad mit ausreichend Platz für eine Wanne und eine bodengleiche Dusche im XL-Format.
2026 in Dresden Weixdorf bauen
01108 Dresden
Die vollständige Adresse der Immobilie erhalten Sie vom Anbieter.
Auf Karte anzeigen
Die vollständige Adresse der Immobilie erhalten Sie vom Anbieter.
Finanzierungszertifikat
In nur zwei Minuten zu Ihrem persönlichen Finanzierungszertifkat.
Infos
| Haustyp | Einfamilienhaus |
|---|---|
| Etagenzahl | 2 |
| Wohnfläche ca. | 135 m2 |
| Grundstücksfläche | 755 m2 |
| Zimmer | 4 |
| Schlafzimmer | 3 |
| Badezimmer | 2 |
| Anzahl Garage/Stellplatz | 4 |
Kosten
| Kaufpreis |
687.000 € |
|---|
Finanzierungsrechner:
Kaufpreis:
600.000 €
Eigenkapital:
600.000 €
Monatliche Rate
0 €
Effektiver Jahreszins
0 %
Sollzinsbindung
10 Jahre
Bausubstanz & Energieausweis
| Baujahr | 2027 |
|---|---|
| Bauphase | Haus in Planung (projektiert) |
| Qualität der Austattung | Gehoben |
Beschreibung des Objekts
Ausstattung
Dieses Angebot beinhaltet folgende Positionen:
- inkl. Schlüsselfertiges Haus auf Bodenplatte
- inkl. Grundstückskaufpreis
- inkl. Architekten- und Vermessungsleistungen
- inkl. kompetenten Beratungs- und individuellen Planungsleistungen
- inkl. durchgängiger persönlicher Begleitung des gesamten Bauvorhabens
- inkl. erstklassige Bemusterungsbetreuung vom Spezialisten
- inkl. Küche und Kamin
- inkl. ausführlicher Finanzierungs- und Fördermittelberatung vor Ort
Der Innenausbau kann sowohl komplett oder teilweise über uns oder Sie selbst erfolgen.
Vereinbaren Sie gerne einen Planungstermin, in dem wir ihr individuelles Angebot erstellen.
Lage
Dresden Weixdorf
Baugrundstück für ein Einfamilienhaus
Sonstige Angaben
Um Angebot und Nachfrage im exklusiven Neubausegment in und um Dresden optimal erfüllen zu können, pflege ich ein erstklassiges Netzwerk.
Sie profitieren von weitreichenden Kontakten zu Architekten, Maklern, Notaren, Sachverständigen sowie zum Garten- und Landschaftsbau.
Die Eigenschaften Diskretion, Seriosität und Zuverlässigkeit kennzeichnen seit jeher meine Arbeit! Wenn Sie sich eine professionelle Beratung wünschen, stehen ich Ihnen als erfahrene Planerin für erstklassige Neubauprojekte jederzeit zur Verfügung.
Ihre Janine Teichmann
Mobil: 0176 /303 727 90
Mail: Janine.Teichmann@bien-zenker.de
Grundriss
csm Bien-Zenker-Haeuser-Einfam
>
>
csm Bien-Zenker-Haeuser-Einfam
>
>
Adresse
01108 Dresden
Interessante Orte
Preis- und Lageinformationen
Preistrend für Bestandsimmobilien in Weixdorf