Zum Verkauf steht ein charmantes Reihenendhaus in Gröbenzell, das mit einem großzügigen Raumangebot und seinem hohem Potenzial im Ausbau begeistert. Das im Jahr 1971 erbaute Haus befindet sich auf einem etwa 550 m² großen Grundstück und bietet eine Wohnfläche von ca. 152 m², die sich auf zwei Etagen und einem ausgebauten Dachgeschoss verteilt.
Das Haus ist voll unterkellert und präsentiert sich zwar in einem renovierungsbedürftigen Zustand, bietet Ihnen aber aufgrund des Grundrisses und der soliden Bauweise die Möglichkeit, es ganz nach Ihren Vorstellungen zu gestalten und damit zu etwas ganz besonderem zu machen. Die große Terrasse mit Garten und Balkon im Obergeschoss erweitern den Wohnkomfort.
Nutzen Sie die Gelegenheit, Ihr zukünftiges Zuhause in einem attraktiven Umfeld zu realisieren und erfahren Sie mehr über dieses Objekt mit großem Potenzial für individuelles Wohnen. Vereinbaren Sie noch heute einen Besichtigungstermin!
Reihenendhaus mit Potenzial in guter Lage von Gröbenzell mit Terrasse u. großem Garten sucht Familie
82194 Gröbenzell
Die vollständige Adresse der Immobilie erhalten Sie vom Anbieter.
Auf Karte anzeigen
Die vollständige Adresse der Immobilie erhalten Sie vom Anbieter.
Finanzierungszertifikat
In nur zwei Minuten zu Ihrem persönlichen Finanzierungszertifkat.
Infos
| Haustyp | Reiheneckhaus |
|---|---|
| Etagenzahl | 2 |
| Wohnfläche ca. | 152 m2 |
| Grundstücksfläche | 550 m2 |
| Bezugsfrei ab | sofort |
| Zimmer | 4 |
| Schlafzimmer | 3 |
| Badezimmer | 1 |
| Garage/Stellplatz | Garage |
| Anzahl Garage/Stellplatz | 1 |
Kosten
| Kaufpreis |
870.000 € |
|---|---|
| Provision |
3,57 % (inkl. 19 % MwSt.) Bitte beachten Sie, dass dieses Angebot nur für Sie persönlich und nicht zur Weitergabe an Dritte bestimmt ist. Die Provision inkl. gesetzl. MwSt. ist nach notarieller Beurkundung verdient und fällig. |
Finanzierungsrechner:
Kaufpreis:
600.000 €
Eigenkapital:
600.000 €
Monatliche Rate
0 €
Effektiver Jahreszins
0 %
Sollzinsbindung
10 Jahre
Bausubstanz & Energieausweis
| Baujahr | 1971 |
|---|---|
| Objektzustand | Renovierungsbedürftig |
| Heizungsart | Öl-Heizung |
| Wesentliche Energieträger | Öl |
| Energieausweis | liegt vor |
| Energieausweistyp | Verbrauchsausweis |
| Energieverbrauchskennwert | 95,9 kWh/(m²*a) |
| Energieeffizienzklasse | C |
95,9
kWh/(m²*a)
Energieeffizienzklasse C
- A+
- A
- B
- C
- D
- E
- F
- G
- H
- 0
- 25
- 50
- 75
- 100
- 125
- 150
- 175
- 200
- 225
- >250
Beschreibung des Objekts
Ausstattung
Diese attraktive Immobilie besticht durch Ihre solide Bauweise. Ein weiteres Highlight ist die großzügige Terrasse und der große Garten, die dazu einladen, entspannte Stunden im Freien zu verbringen. Auch im Obergeschoss bietet der große Balkon einen zusätzlichen Komfort, wenn man sich kurz entspannen möchte oder nachts im Schlafzimmer und evtl. Kinder- oder Arbeitszimmer bei offener Tür schlafen möchte.
Das Objekt überzeugt durch einen voll nutzbaren Keller, der zusätzlichen Stauraum oder eine Möglichkeit zur individuellen Nutzung bietet. Die Heizung erfolgt über eine effiziente Zentralheizung, die mit Öl betrieben wird und für ein angenehmes Raumklima sorgt.
Im Haus wurde 1991 ein Niedertemperatur - Stahlheizkessel von BUDERUS verbaut. Noch kürzlich im Juni wurde die letzte Wartung durchgeführt. Im Jahr 2023 wurde bei den Stahltanks eine neue Tank- Innenbeschichtung - mit 20jähriger Garantie - vom Typ STS Folioplast SR eingebaut.
Lage
Das angebotene Reihenendhaus befindet sich in einer begehrten Wohngegend von Gröbenzell, einer charmanten Gemeinde im Westen von München. Gröbenzell ist bekannt für seine hohe Lebensqualität und seine harmonische Verbindung von urbanem Leben und naturnaher Umgebung.
Das Wohngebiet zeichnet sich durch eine ruhige und familienfreundliche Atmosphäre aus, die von gepflegten Gärten und einer grünen Umgebung geprägt ist.
Die Lage bietet eine ausgezeichnete Anbindung an das Münchner Stadtzentrum, welches in kurzer Zeit mit dem Auto oder den öffentlichen Verkehrsmitteln erreichbar ist. Gröbenzell verfügt über eine eigenständige Infrastruktur mit sämtlichen erforderlichen Einrichtungen des täglichen Bedarfs, darunter Einkaufsmöglichkeiten, Schulen und Kindergärten, die den Wohnkomfort zusätzlich unterstreichen. Freizeitmöglichkeiten wie zahlreiche Sportvereine und Naherholungsgebiete machen die Region besonders attraktiv für Familien und Naturliebhaber.
Zudem profitieren die Bewohner von Gröbenzell von der Nähe zu weitläufigen Grünflächen und Erholungsgebieten, die zu entspannenden Spaziergängen und Fahrradtouren einladen. Durch die harmonische Kombination aus städtischer Nähe und naturnaher Ruhe bietet diese Lage ein ideales Umfeld für ein komfortables und ausgeglichenes Leben im Grünen.
Sonstige Angaben
Gerade für Familien mit Kinder ist dieses ein Objekt, welches man sich auf jeden Fall ansehen sollte. Im großen Garten können die Kinder uneingeschränkt spielen.
Die ruhige Lage, das nachbarschaftliche Umfeld sowie der Blick ins Grüne machen die Immobilie sehr attraktiv. Der Spielplatz am Ascherbach ist in nur wenigen Minuten fussläufig zu erreichen. Die angrenzenden Grünanlagen laden auch dazu ein, den Hund auszuführen. Wenn Sie einen Hund haben sollten, wird er es sicherlich lieben.
Gerade in unserer heutigen, hektischen Zeit mit den täglichen Eindrücken der Großstadt finden Sie hier einen Lebensraum, der Ihnen und Ihren Kindern gut tun wird und wo Sie sich in Ihrer Freizeit erholen können.
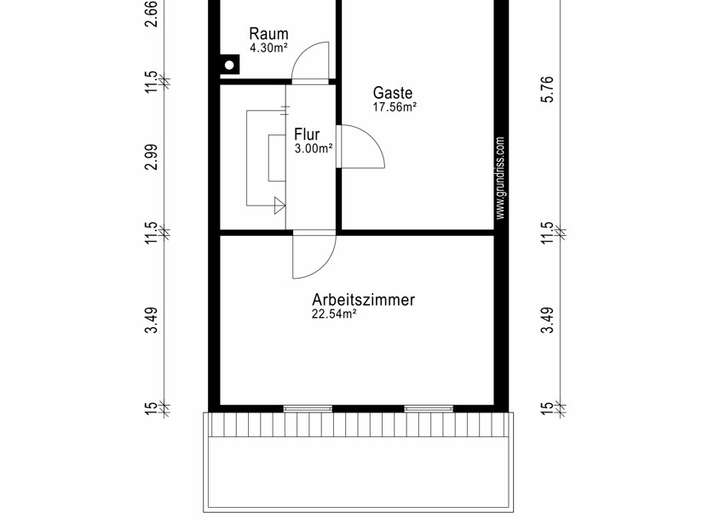
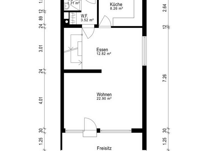
Grundriss
Erdgeschoss
>
>
Obergeschoss
>
>
Dachgeschoss
>
>
Kellergeschoss
>
>
Adresse
82194 Gröbenzell
Interessante Orte
Preis- und Lageinformationen
Preistrend für Bestandsimmobilien in Gröbenzell