In ruhiger und sonniger Südlage von Ammerbuch-Reusten bietet sich hier eine seltene Gelegenheit für Bauträger oder private Investoren. Das ca. 1.014 m² große Grundstück besticht durch seine idyllische Lage direkt am Bachlauf der Ammer und die hervorragende Anbindung an die Metropolregion Stuttgart/Tübingen.
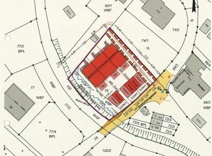
Aktuell ist das Grundstück mit einem ehemaligen landwirtschaftlichen Wohnhaus (Baujahr 1900), Scheune und Schuppen bebaut. Da die wirtschaftliche Nutzung durch einen Abriss und eine Neubebauung sinnvoll ist, wurde bereits Vorarbeit geleistet: Ein positiver Bauvorbescheid vom Landratsamt Tübingen für die Errichtung von 3 modernen Reihenhäusern inklusive Garagen/Carports liegt bereits vor.
Die Highlights auf einen Blick
• Lage: Direkte Bachlage (Ammer), ruhige Anliegerstraße ohne Durchgangsverkehr.
• Ausrichtung: Südausrichtung – ideal für Photovoltaik und sonnige Gärten.
• Planungssicherheit: Bauvorbescheid für 3 Reihenhäuser vorhanden.
• Denkmalschutz: Kein Denkmalschutz vorhanden.
• Altlasten: Keine Altlasten bekannt.
• Erschließung: Voll erschlossen (Wasser, Abwasser, Strom, Telekommunikation).
• Einzel-, Doppel- oder Reihenhausbebauung möglich.
• Zweigeschossige Bauweise möglich.
Ammer-Idylle mit Planungssicherheit: 1.014 m² Baugrundstück am Wasser – Bauvorbescheid vorhanden
72119 Ammerbuch
Die vollständige Adresse der Immobilie erhalten Sie vom Anbieter.
Auf Karte anzeigen
Die vollständige Adresse der Immobilie erhalten Sie vom Anbieter.
Finanzierungszertifikat
In nur zwei Minuten zu Ihrem persönlichen Finanzierungszertifkat.
Infos
| Vermarktungsart | Kaufen |
|---|---|
| Grundstücksfläche | 1.014 m2 |
| Erschließung | Erschlossen |
| Geschossflächenzahl (GFZ) | 2 |
| Bebaubar nach | Bebauungsplan |
| Verfügbar ab | 30.5.2026 |
Kosten
| Miete pro Jahr |
699.000 € |
|---|---|
| Provision | Nein |
Finanzierungsrechner:
Kaufpreis:
600.000 €
Eigenkapital:
600.000 €
Monatliche Rate
0 €
Effektiver Jahreszins
0 %
Sollzinsbindung
10 Jahre
Beschreibung des Objekts
Lage
Das Grundstück befindet sich in der Sommergasse einer ruhigen Anliegerstraße im Ortskern von Reusten.
• Direkte Wasserlage: Der Garten grenzt unmittelbar an die Ammer – Natur pur und absolute Ruhe.
• Ammerbuch vereint ländliche Idylle mit einer ausgezeichneten Infrastruktur und der direkten Nähe zur Universitätsstadt Tübingen. Die Gemeinde bietet ein familienfreundliches Umfeld mit Kindergärten, modernen Krippenplätzen und Grundschulen in den verschiedenen Ortsteilen. Die weiterführende Gemeinschaftsschule in Entringen ermöglicht kurze Schulwege und ein umfassendes Bildungsangebot vor Ort. Ergänzende Kernzeitbetreuung erleichtert Familien die Vereinbarkeit von Beruf und Alltag.
• Dank der hervorragenden Verkehrsanbindung sind Sie bestens vernetzt: Die Ammertalbahn bringt Sie im 30-Minuten-Takt nach Tübingen oder Herrenberg, von wo aus sich weitere Verbindungen Richtung Stuttgart und Bodensee eröffnen. Über die B 296 erreichen Sie schnell die Autobahn A81, Reutlingen oder das Zentrum von Tübingen – und genießen dabei trotzdem die ruhige Wohnlage.
• Auch in puncto Freizeit und Erholung hat Ammerbuch viel zu bieten. Zahlreiche Sportvereine laden zu Aktivitäten wie Fußball, Handball, Tischtennis, oder Volleyball ein, während der nahe Naturpark Schönbuch mit seinen ausgedehnten Rad- und Wanderwegen, Streuobstwiesen und Wäldern zu Erholung und Bewegung in der Natur einlädt. Ein Reiterhof befindet sich nur wenige Meter entfernt. Für ein besonderes Freizeitvergnügen sorgt der nahegelegene Flugplatz mit Segel- und Motorflugangeboten.
• Die Nahversorgung ist ausgezeichnet: Supermärkte, Bäckereien, Metzgereien, Apotheken, Ärzte und weitere Dienstleister befinden sich direkt im Ort. Für ein noch größeres Einkaufs-, Kultur- und Gastronomieangebot erreichen Sie das pulsierende Zentrum von Tübingen in wenigen Minuten – und profitieren so von einer perfekten Kombination aus naturnahem Wohnen und urbaner Lebensqualität.
Sonstige Angaben
• Makrolage: Die Nähe zu Stuttgart, Tübingen, Reutlingen und Herrenberg macht diesen Standort für Pendler äußerst attraktiv. Die Region ist geprägt von einer starken Wirtschaft und namhaften Unternehmen.
• Verkehrsanbindung: Schnelle Anbindung über die B296 nach Herrenberg und zur Autobahn A81 (Richtung Stuttgart/Singen). Gute Verbindungen nach Tübingen, Reutlingen und Ulm.
• ÖPNV: Integriert in den Verkehrsverbund Neckar-Alb-Donau (NALDO) mit direkter Busverbindung.
• Freizeit: Die Schwäbische Alb und der Schwarzwald sind schnell erreichbar und bieten einen hohen Erholungswert direkt vor der Haustür.
Eckdaten zum Altbestand
• Typ: Ehemaliges Bauernhaus mit Scheune.
• Wohnfläche (Bestand): ca. 78,2 m².
• Historie: Baujahr 1900, Anbau 1934, Umbau 1967.
• Zustand: Abrissreif für optimale Grundstücksnutzung.
Sonstiges
Nutzen sie die Gelegenheit, ein genehmigtes Projekt in einer Lage zu erwerben, die so kaum noch auf dem Markt kommt. Wasserlagen sind rar – und solche mit vorliegender Genehmigung noch seltener.
Wir freuen uns auf Ihre Anfrage.
Grundriss
Lageplan
>
>