Dieses großzügige Einfamilienhaus mit separat zugänglicher Einliegerwohnung befindet sich auf einem besonders weitläufigen, nahezu parkähnlichen Grundstück in Obing. Ein Traum für Familien, die viel Platz, Natur und vielseitige Nutzungsmöglichkeiten schätzen. Das Haus wurde 1978 erbaut und zeigt in seiner Grundstruktur eine klassische, sehr funktionale Familienaufteilung.
Wichtig zu erwähnen: Der heute vorgefundene Grundriss wurde im Laufe der Jahre vor Ort teilweise verändert. Für die Vermarktung präsentieren wir Ihnen jedoch bewusst den ursprünglichen Originalgrundriss, da dieser eine stimmige und äußerst sinnvolle Raumaufteilung bietet. Dieser Grundriss lässt sich mit überschaubarem Aufwand wiederherstellen.
Das Gebäude befindet sich insgesamt in einem Zustand, der nach einer Modernisierung verlangt. Energetisch wie auch optisch entspricht es nicht mehr den heutigen Ansprüchen genau dies macht die Immobilie so attraktiv für Käufer, die ihr Zuhause nach eigenen Vorstellungen gestalten möchten. Mit geschickter Renovierung lässt sich das Haus aus seinem Dornröschenschlaf holen und zu einem modernen Familienrefugium entwickeln.
Viel Platz, viel Garten, viel Potenzial – Einfamilienhaus mit 1.700 m² Grundstück in Obing
83119 Obing
Die vollständige Adresse der Immobilie erhalten Sie vom Anbieter.
Auf Karte anzeigen
Die vollständige Adresse der Immobilie erhalten Sie vom Anbieter.
Finanzierungszertifikat
In nur zwei Minuten zu Ihrem persönlichen Finanzierungszertifkat.
Infos
| Haustyp | Einfamilienhaus |
|---|---|
| Etagenzahl | 2 |
| Wohnfläche ca. | 255 m2 |
| Grundstücksfläche | 1.700 m2 |
| Bezugsfrei ab | ab sofort |
| Zimmer | 6 |
| Badezimmer | 3 |
| Anzahl Garage/Stellplatz | 3 |
Kosten
| Kaufpreis |
730.000 € |
|---|---|
| Provision |
3,57 inkl. MwSt. Bis zum Erwerb einer Immobilie arbeitet der Makler für den Kunden kostenfrei. Erst mit notariellem Kaufvertragsabschluss schuldet der Käufer dem Makler für den Nachweis bzw. die Vermittlung eine Maklerprovision in Höhe von 3,57 % inkl. 19 % MwSt. aus dem wirtschaftlichen Gesamtkaufpreis. |
Finanzierungsrechner:
Kaufpreis:
600.000 €
Eigenkapital:
600.000 €
Monatliche Rate
0 €
Effektiver Jahreszins
0 %
Sollzinsbindung
10 Jahre
Bausubstanz & Energieausweis
| Baujahr | 1978 |
|---|---|
| Objektzustand | Renovierungsbedürftig |
| Qualität der Austattung | Normal |
| Heizungsart | Öl-Heizung |
| Wesentliche Energieträger | Öl |
| Energieausweis | liegt vor |
| Energieausweistyp | Verbrauchsausweis |
| Energieverbrauchskennwert | 179,3 kWh/(m²*a) |
| Energieeffizienzklasse | F |
179,3
kWh/(m²*a)
Energieeffizienzklasse F
- A+
- A
- B
- C
- D
- E
- F
- G
- H
- 0
- 25
- 50
- 75
- 100
- 125
- 150
- 175
- 200
- 225
- >250
Beschreibung des Objekts
Ausstattung
• Baujahr 1978
• Ca. 255 m² Wohnfläche
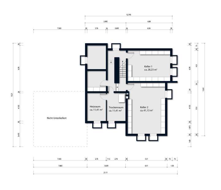
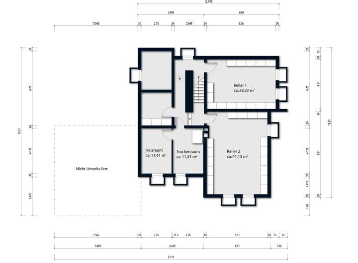
• Ca. 126 m² Kellerfläche
• Großzügiges Grundstück mit ca. 1.700 m²
• Separat zugängliche Einliegerwohnung mit Terrasse
• Doppelgarage mit direktem Haus- und Gartenzugang
• Gepflasterte Einfahrt und überdachter Eingangsbereich
• Zwei Terrassen auf der Südseite
• Balkonzugänge in mehreren Wohn- und Schlafräumen
• Großzügiger Wohnbereich mit Kachelofen
• Küche mit Essbereich auf separater Ebene
• Hauptschlafzimmer mit Ankleide und ensuite Bad
• Badezimmer mit Badewanne, Dusche, WC und Bidet
• Zusätzliches Gäste-WC im Eingangsbereich
• Mehrere flexibel nutzbare Zimmer im Obergeschoss
• Teilweise sichtbare Holzbalken und Holzdecken
• Ölzentralheizung (Baujahr 2004)
• Kunststofffenster (erneuert 2009)
• Voll unterkellert mit vielfältigen Nutzungsmöglichkeiten
• Renovierungs- und modernisierungsbedürftiger Zustand
Lage
Das Einfamilienhaus befindet sich in einer angenehm ruhigen und familienfreundlichen Wohnlage am Ortsrand von Obing. Die Nachbarschaft ist geprägt von gepflegten Einfamilienhäusern, großzügigen Grundstücken und einem harmonischen Wohnumfeld, in dem Kinder sicher spielen können und man sich schnell zuhause fühlt. Durch die leicht zurückgesetzte Position des Hauses entsteht ein wertvolles Maß an Privatsphäre, während alle Einrichtungen des täglichen Bedarfs in kurzer Zeit erreichbar sind.
Obing selbst gilt als attraktive Wohngemeinde im nördlichen Chiemgau. Der Ort verbindet ländliche Ruhe mit einer sehr guten Grundversorgung: Supermärkte, Bäcker, Metzger, Ärzte, Apotheke, Kita und Grundschule befinden sich in direkter Nähe. Darüber hinaus bietet die Umgebung ein vielfältiges Freizeitangebot – vom idyllischen Obinger See über Rad- und Wanderwege bis zu Sportvereinen und kulturellen Veranstaltungen. Die umgebende Seenlandschaft macht Obing zu einem idealen Ausgangspunkt für naturnahe Aktivitäten.
Für Berufspendler ist die Lage ebenfalls attraktiv:
Wasserburg am Inn liegt etwa 23 bis 25 Kilometer entfernt und ist in rund 25 Minuten bequem erreichbar.
Auch Traunstein und der Chiemsee sind gut angebunden und erweitern sowohl das berufliche als auch das private Umfeld um zahlreiche Möglichkeiten.
Die Kombination aus ruhigem Wohnen, naturnaher Umgebung, hoher Lebensqualität und gleichzeitig guter Erreichbarkeit macht diesen Standort besonders interessant für Familien, Naturliebhaber und alle, die ein entspanntes Wohnen abseits des Trubels suchen.
Grundriss
Grundriss EG
>
>
Grundriss OG
>
>
Grundriss Keller
>
>
Adresse
83119 Obing
Interessante Orte
Preis- und Lageinformationen
Preistrend für Bestandsimmobilien in Obing