Willkommen in Ihrer zukünftigen Doppelhaushälfte in Hamm am Rhein! Dieses projektierten Haus bietet Ihnen die Möglichkeit, Ihre Wohnwünsche und Vorstellungen verwirklichen zu können. Mit 4 Zimmern und einer großzügigen Wohnfläche von 129,80 m² haben Sie ausreichend Platz für Ihre Familie und Ihre persönlichen Rückzugsorte. Auf einem 730 m² großen Grundstück erstreckt sich das Haus über zwei Etagen, mit 3 einladenden Schlafzimmern, einem Badezimmer mit Dusche und Wanne sowie einem zusätzlichen Gäste-WC. Hier können Sie Harmonie und Komfort in jeder Ecke erleben!
Ihr individuelles Zuhause in Hamm am Rhein - Doppelhaushälfte nach Maß
67580 Hamm am Rhein
Die vollständige Adresse der Immobilie erhalten Sie vom Anbieter.
Auf Karte anzeigen
Die vollständige Adresse der Immobilie erhalten Sie vom Anbieter.
Finanzierungszertifikat
In nur zwei Minuten zu Ihrem persönlichen Finanzierungszertifkat.
Infos
| Haustyp | Doppelhaushaelfte |
|---|---|
| Etagenzahl | 2 |
| Wohnfläche ca. | 129 m2 |
| Grundstücksfläche | 730 m2 |
| Zimmer | 4 |
| Schlafzimmer | 3 |
| Badezimmer | 1 |
| Garage/Stellplatz | Garage |
| Anzahl Garage/Stellplatz | 1 |
Kosten
| Kaufpreis |
592.269 € |
|---|---|
| Preis für Garage/Stellplatz | 8.000 € |
Finanzierungsrechner:
Kaufpreis:
600.000 €
Eigenkapital:
600.000 €
Monatliche Rate
0 €
Effektiver Jahreszins
0 %
Sollzinsbindung
10 Jahre
Bausubstanz & Energieausweis
| Baujahr | unbekannt |
|---|---|
| Bauphase | Haus in Planung (projektiert) |
| Heizungsart | Wärmepumpe |
Beschreibung des Objekts
Ausstattung
Die Doppelhaushälfte überzeugt durch ihre hochwertigen Bodenbeläge aus Fliesen und Laminat. Die Fliesen sind nicht nur pflegeleicht, sondern auch ideal für das Badezimmer geeignet, während der Laminatboden in den Wohnräumen eine warme und einladende Atmosphäre schafft. Für den effizienten Energieverbrauch sorgt die innovative Wärmepumpe, die nicht nur umweltfreundlich ist, sondern auch Ihre Heizkosten erheblich senken kann. Zudem entspricht das Haus dem KFW55 Standard, was Ihnen nachhaltiges Wohnen und niedrige Energiekosten garantiert.
Lage
Hamm am Rhein besticht durch seine idyllische Lage und eine hervorragende Infrastruktur. Einkaufsmöglichkeiten, Schulen und Freizeitangebote sind in unmittelbarer Nähe und sorgen für eine hohe Lebensqualität. Genießen Sie die Vorzüge der Natur und viele Freizeitmöglichkeiten, die diese Region zu bieten hat, sei es beim Radfahren, Wandern oder einfach nur beim Entspannen am Wasser.
Sonstige Angaben
allkauf steht für maximale Sicherheit, kurze Lieferzeiten und garantierte Fertigstellung. Wir bieten Ihnen ein Rundum-Paket für den Bau Ihres Traumhauses. Zu allen Häusern gehört:
- Energieeffizienzwand
- Echtholztreppe
- Luft-Wasser-Wärmepumpe
- Fußbodenheizung
- Be- und Entlüftungsanlage
- 3-fach verglaste Fenster inklusive Rollläden mit Aluminiumlamellen
- Lichte Raumhöhe 2,75 m
- inkl. erhöhten Fenstern und Türen
- TOXPROOF Gütesiegel - schadstoffgeprüfter Materialien
- Just-in-Time-Lieferungen
- Bemustern im eigenen Bemusterungszentrum mit Markenprodukten
Entscheiden Sie sich für allkauf und genießen Sie unsere zahlreichen Dienstleistungspakete, die Ihnen helfen, die Dinge in die eigenen Hände zu nehmen oder auf unsere Profis zu vertrauen! Vereinbaren Sie noch heute Ihren Termin zur Planung Ihres allkauf Traumhauses.
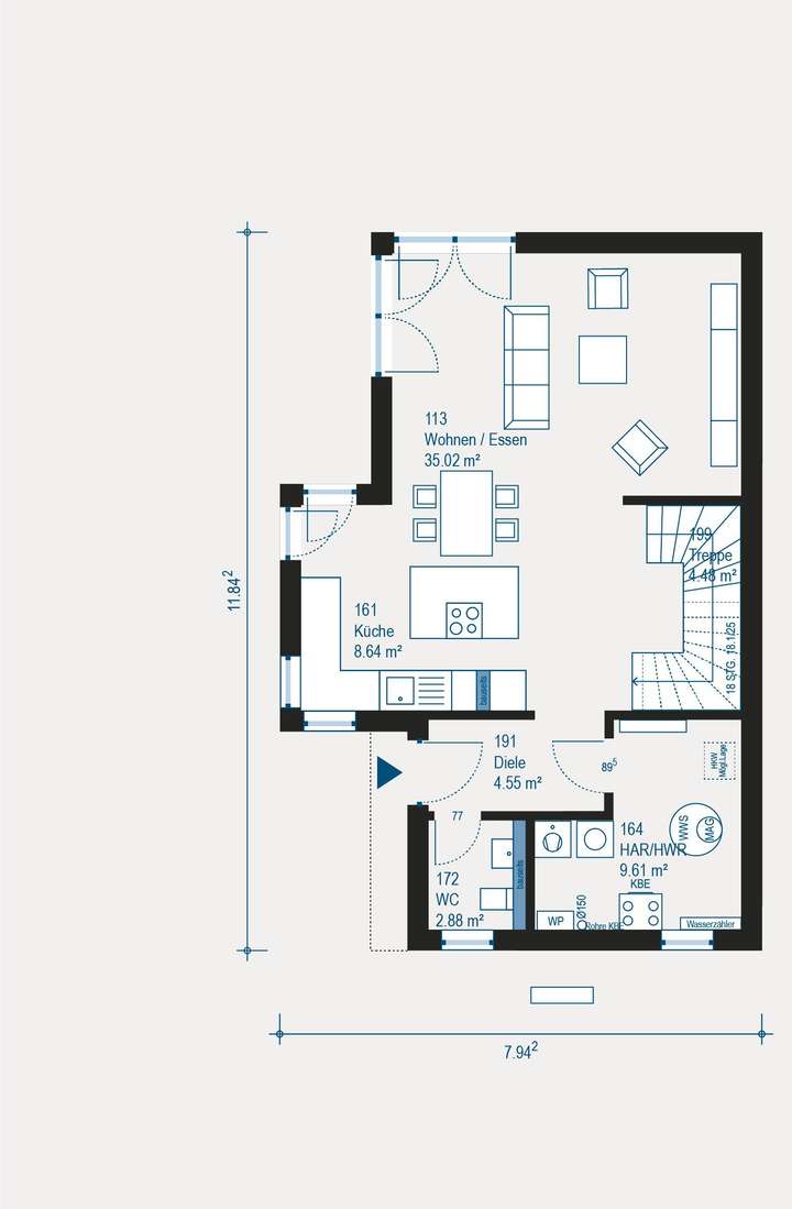
Grundriss
Grundriss
>
>
Grundriss
>
>
Adresse
67580 Hamm am Rhein
Interessante Orte
Preis- und Lageinformationen
Preistrend für Bestandsimmobilien in Hamm am Rhein