Willkommen in Ihrem neuen Zuhause! Diese charmante Doppelhaushälfte wird nach Ihren individuellen Vorstellungen und Wünschen projektiert und bietet Ihnen die Möglichkeit, Ihre Wohnträume Realität werden zu lassen. Mit einer großzügigen Wohnfläche von 127,49 m² und 4.0 Zimmern, verteilt auf zwei Etagen, finden Sie hier ausreichend Platz für Ihre Familie und persönlichen Rückzugsorte. Das Haus verfügt über drei Schlafzimmer, ein modernes Badezimmer mit Dusche und Badewanne sowie ein zusätzliches Gäste-WC, das für zusätzlichen Komfort sorgt. Die Kombination aus Fliesen und Laminat als Bodenbeläge bietet nicht nur eine ansprechende Optik, sondern ist auch pflegeleicht und sorgt für ein angenehmes Wohnklima. Die verwendete Wärmepumpe gewährleistet eine effiziente und umweltfreundliche Beheizung Ihrer neuen Doppelhaushälfte und entspricht dem KFW55 Standard, was Ihnen langfristig Energiekosten spart.
Ihr Traumhaus in Saulheim: Doppelhaushälfte ganz nach Ihren Wünschen
55291 Saulheim
Die vollständige Adresse der Immobilie erhalten Sie vom Anbieter.
Auf Karte anzeigen
Die vollständige Adresse der Immobilie erhalten Sie vom Anbieter.
Finanzierungszertifikat
In nur zwei Minuten zu Ihrem persönlichen Finanzierungszertifkat.
Infos
| Haustyp | Doppelhaushaelfte |
|---|---|
| Etagenzahl | 2 |
| Wohnfläche ca. | 127 m2 |
| Grundstücksfläche | 642 m2 |
| Zimmer | 4 |
| Schlafzimmer | 3 |
| Badezimmer | 1 |
| Garage/Stellplatz | Garage |
| Anzahl Garage/Stellplatz | 1 |
Kosten
| Kaufpreis |
637.299 € |
|---|---|
| Preis für Garage/Stellplatz | 8.000 € |
Finanzierungsrechner:
Kaufpreis:
600.000 €
Eigenkapital:
600.000 €
Monatliche Rate
0 €
Effektiver Jahreszins
0 %
Sollzinsbindung
10 Jahre
Bausubstanz & Energieausweis
| Baujahr | unbekannt |
|---|---|
| Bauphase | Haus in Planung (projektiert) |
| Heizungsart | Wärmepumpe |
Beschreibung des Objekts
Ausstattung
- 4.0 Zimmer für individuelle Gestaltung
- 127,49 m² Wohnfläche auf 642,00 m² Grundstück
- 3 Schlafzimmer für die ganze Familie
- 1 modernes Badezimmer mit Dusche und Wanne
- zusätzliches Gäste-WC
- hochwertige Bodenbeläge (Fliesen und Laminat) für Pflegeleichtigkeit
- umweltfreundliche Wärmepumpe für effiziente Beheizung
- Energieeffizienzwand und Fußbodenheizung für ein angenehmes Raumklima
- 3-fach verglaste Fenster inklusive Rollläden mit Aluminiumlamellen
- TOXPROOF Gütesiegel für schadstoffgeprüfte Materialien
Lage
Saulheim bietet Ihnen eine hervorragende Lage mit einer ausgezeichneten Infrastruktur. Einkaufsmöglichkeiten, Schulen und Ärzte sind in der Nähe und in kurzer Zeit erreichbar. Genießen Sie die Vorzüge einer ruhigen Wohngegend mit gleichzeitig guter Anbindung an die Städte in der Umgebung. Freizeitmöglichkeiten sind ebenfalls zahlreich vorhanden, sodass Sie hier sowohl Entspannung als auch Aktivitäten für die ganze Familie finden.
Sonstige Angaben
allkauf heißt: Maximale Sicherheit, kurze Lieferzeiten, garantierte Fertigstellung. Wir bieten Ihnen: kurze Lieferzeiten, Liefergarantie, garantierte Sicherheit, Festpreisgarantie, Fertigstellungsgarantie.
Zu allen Häusern gehört:
- Energieeffizienzwand
- Echtholztreppe
- Luft-Wasser-Wärmepumpe
- Fußbodenheizung
- Be- und Entlüftungsanlage
- 3-fach verglaste Fenster inklusive Rollläden mit Aluminiumlamellen
- Lichte Raumhöhe 2,75 m
- inkl. erhöhten Fenstern und Türen
- TOXPROOF Gütesiegel - schadstoffgeprüfter Materialien
- Just-in-Time-Lieferungen
- Bemustern im eigenen Bemusterungszentrum mit Markenprodukten
Vereinbaren Sie noch heute Ihren Termin zur Planung Ihres allkauf Traumhauses!
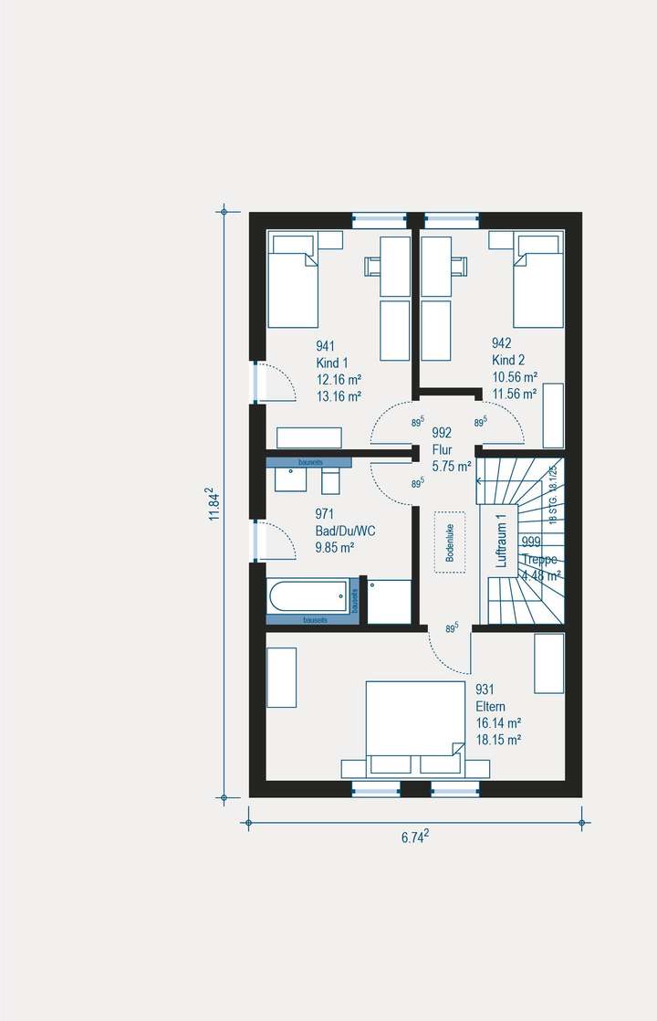
Grundriss
Grundriss
>
>
Grundriss
>
>
Adresse
55291 Saulheim
Interessante Orte
Preis- und Lageinformationen
Preistrend für Bestandsimmobilien in Saulheim