Willkommen in Ihrem neuen Zuhause in Eltville am Rhein! Dieses projektiertes traumhaftes Haus mit 5 Zimmern auf einer großzügigen Wohnfläche von 173,21 m² wurde speziell nach Ihren Wünschen und Vorstellungen gestaltet. Hier genießen Sie modernen Wohnkomfort auf zwei Etagen mit 4 Schlafzimmern, einem stilvollen Badezimmer und einem praktischen Gäste-WC. Die Kombination aus hochwertiger Ausstattung und einem durchdachten Bau-Konzept macht dieses Zuhause zu einem besonderen Rückzugsort für Sie und Ihre Familie.
Mit einer Wärmepumpe als Befeuerungsart profitieren Sie nicht nur von einer umweltfreundlichen Heizlösung, sondern auch von niedrigen Energiekosten. Die Energietypen KFW40 und KFW55 garantieren Ihnen zudem eine hohe Energieeffizienz - ideal für alle, die Wert auf Nachhaltigkeit legen.
Ihr Traumhaus in Eltville am Rhein - individuell geplant und hochwertig ausgestattet
65343 Eltville am Rhein
Die vollständige Adresse der Immobilie erhalten Sie vom Anbieter.
Auf Karte anzeigen
Die vollständige Adresse der Immobilie erhalten Sie vom Anbieter.
Finanzierungszertifikat
In nur zwei Minuten zu Ihrem persönlichen Finanzierungszertifkat.
Infos
| Etagenzahl | 2 |
|---|---|
| Wohnfläche ca. | 173 m2 |
| Grundstücksfläche | 350 m2 |
| Zimmer | 5 |
| Schlafzimmer | 4 |
| Badezimmer | 1 |
| Garage/Stellplatz | Garage |
| Anzahl Garage/Stellplatz | 1 |
Kosten
| Kaufpreis |
690.990 € |
|---|---|
| Preis für Garage/Stellplatz | 8.000 € |
Finanzierungsrechner:
Kaufpreis:
600.000 €
Eigenkapital:
600.000 €
Monatliche Rate
0 €
Effektiver Jahreszins
0 %
Sollzinsbindung
10 Jahre
Bausubstanz & Energieausweis
| Baujahr | 2026 |
|---|---|
| Bauphase | Haus in Planung (projektiert) |
| Qualität der Austattung | Gehoben |
| Heizungsart | Wärmepumpe |
Beschreibung des Objekts
Ausstattung
Die gehobene Ausstattung sorgt für ein komfortables und stilvolles Wohnen. Zu den Highlights gehören:
- Energieeffiziente Luft-Wasser-Wärmepumpe
- Fußbodenheizung für ein angenehmes Raumklima
- 3-fach verglaste Fenster mit Rollläden aus Aluminiumlamellen
- Hochwertige Materialien mit TOXPROOF Gütesiegel
- Lichte Raumhöhe von 2,75 m für ein großzügiges Raumgefühl
Lage
Eltville am Rhein bietet Ihnen eine hervorragende Lage mit idealer Anbindung an die Infrastruktur. Einkaufsmöglichkeiten, Schulen und Freizeitangebote sind in unmittelbarer Nähe. Genießen Sie die reizvolle Umgebung des Rheins mit zahlreichen Freizeitmöglichkeiten, wie Wander- und Radwegen sowie einer Vielzahl von Weingütern und Restaurants, die zum Verweilen einladen.
Sonstige Angaben
allkauf garantiert Ihnen maximale Sicherheit durch kurze Lieferzeiten, Liefergarantie, garantierte Fertigstellung und Festpreisgarantie. Zu allen Häusern gehört:
- Energieeffizienzwand
- Echtholztreppe
- Luft-Wasser-Wärmepumpe
- Fußbodenheizung
- Be- und Entlüftungsanlage
- 3-fach verglaste Fenster inklusive Rollläden mit Aluminiumlamellen
- Lichte Raumhöhe 2,75 m
+ inkl. erhöhten Fenstern und Türen
- TOXPROOF Gütesiegel - schadstoffgeprüfter Materialien
- Just-in-Time-Lieferungen
- Bemustern im eigenen Bemusterungszentrum mit Markenprodukten
Ob Einfamilienhaus, Doppelhaus oder Bungalow - bei allkauf finden Sie Ihr Traumhaus! Vereinbaren Sie noch heute Ihren Termin zur Planung Ihres allkauf Traumhauses.
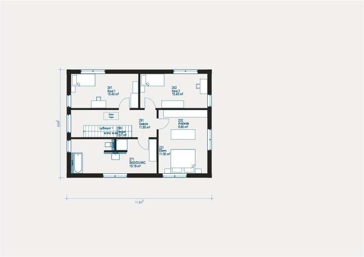
Grundriss
Grundriss
>
>
Grundriss
>
>
Adresse
65343 Eltville am Rhein
Interessante Orte
Preis- und Lageinformationen
Preistrend für Bestandsimmobilien in Eltville am Rhein