Diese beeindruckende Stadtvilla mit coolem Walmdach wurde individuell nach deinen Wünschen und Vorstellungen entworfen. Mit einer großzügigen Wohnfläche von 143 m² und einer Grundstücksgröße von 456 m² bietet dir dieses Fertighaus ausreichend Platz für deine Familie und einen stilvollen Lebensraum. Die zwei Etagen sind optimal aufgeteilt, mit insgesamt vier Zimmern, darunter drei gemütliche Schlafzimmer und zwei moderne Badezimmer.
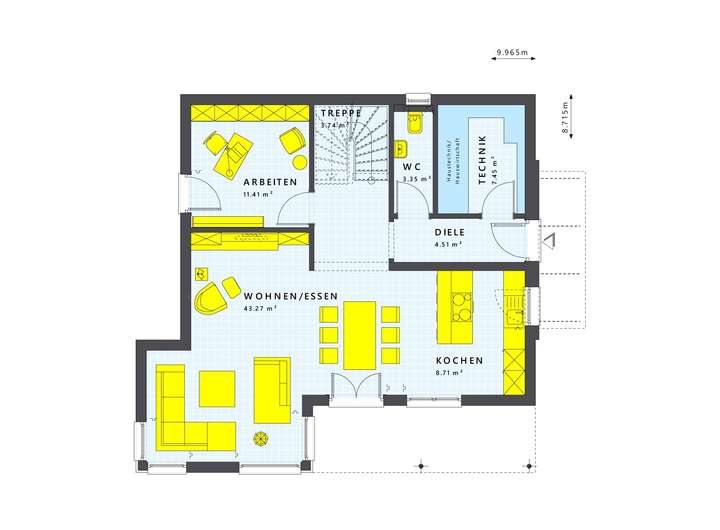
Das Walmdach sorgt für eine volle Deckenhöhe im Obergeschoss und verleiht dem Haus eine elegante Note. Hier hast du Zugang zu einem großen Balkon, der sowohl als schicker Rückzugsort dient als auch als Überdachung für den Freisitz im Erdgeschoss fungiert. Der optisch ansprechend gestaltete Übereck-Erker vergrößert den Wohn- und Essbereich im Erdgeschoss auf über 43 Quadratmeter und schafft so eine einladende Atmosphäre für Familienfeiern und gesellige Abende mit Freunden.
LivingHaus bietet dir zudem eine Vielzahl an exklusiven Leistungen, um dein Traumhaus zu verwirklichen. Die hochwertige Traumküche wird genau auf deinen Grundriss angepasst und kommt mit modernster Technik sowie cleveren Stauraumlösungen. So kannst du direkt nach dem Einzug mit dem Kochen beginnen. Mit dem Living Haus Bau-Cockpit hast du die gesamte Bauphase im Griff - alle wichtigen Informationen sind digital und jederzeit zugänglich.
Das I-KON-Konzept bringt nachhaltiges Bauen in dein Zuhause. Dein Haus wird energieeffizient und umweltfreundlich gestaltet, sodass du auch in Zukunft von niedrigen Energiekosten profitierst. Mit dem Zuhause-Darlehen hast du die Möglichkeit, bis zu 250.000 EUR zu besonders günstigen Konditionen zu finanzieren.
Das Zuhause-Paket bietet dir eine hochwertige Grundausstattung, einschließlich moderner Böden, edler Türen und stilvoller Sanitäranlagen, alles optimal aufeinander abgestimmt und fix und fertig geliefert. Wenn du beim Innenausbau selbst Hand anlegen möchtest, unterstützt dich das DIY-Ausbau-Coaching mit Experten, die dir in nur drei Tagen die besten Tipps geben.
Mit LivingHaus erhältst du ein durchdachtes Konzept, das von der Finanzierung über die Planung bis zur individuellen Ausgestaltung reicht. So wird dein Traumhaus nicht nur sicher, sondern auch perfekt auf deine Bedürfnisse abgestimmt.
LivingHaus: Dein Traumhaus in stilvoller Stadtvilla-Optik
26655 Westerstede
Die vollständige Adresse der Immobilie erhalten Sie vom Anbieter.
Auf Karte anzeigen
Die vollständige Adresse der Immobilie erhalten Sie vom Anbieter.
Finanzierungszertifikat
In nur zwei Minuten zu Ihrem persönlichen Finanzierungszertifkat.
Infos
| Haustyp | Einfamilienhaus |
|---|---|
| Etagenzahl | 2 |
| Wohnfläche ca. | 143 m2 |
| Grundstücksfläche | 422 m2 |
| Zimmer | 4 |
| Schlafzimmer | 3 |
| Badezimmer | 2 |
Kosten
| Kaufpreis |
398.562 € |
|---|---|
| Provision | Nein |
Finanzierungsrechner:
Kaufpreis:
600.000 €
Eigenkapital:
600.000 €
Monatliche Rate
0 €
Effektiver Jahreszins
0 %
Sollzinsbindung
10 Jahre
Bausubstanz & Energieausweis
| Baujahr | 2026 |
|---|---|
| Qualität der Austattung | Gehoben |
Beschreibung des Objekts
Ausstattung
In deinem neuen Zuhause sind zahlreiche hochwertige Ausstattungsmerkmale enthalten. Du erhältst moderne Böden, edle Türen und stilvolle Sanitäranlagen, die allesamt optimal aufeinander abgestimmt sind. Die hochwertige Traumküche ist individuell auf deinen Grundriss zugeschnitten und kommt mit modernster Technik sowie cleveren Stauraumlösungen. Das Zuhause-Paket garantiert dir eine umfassende Grundausstattung, die fix und fertig geliefert wird. Die I-KON-Lösung sorgt für nachhaltiges Bauen und Energieeffizienz. Du profitierst zudem von der Möglichkeit zur individuellen Gestaltung und erhältst Unterstützung durch das DIY-Ausbau-Coaching. So wird dein Zuhause nicht nur ein Ort der Erholung, sondern auch genau so, wie du es dir wünschst - dein "Wie ich es will Fertighaus".
Lage
Die Lage dieser Stadtvilla ist optimal für Familien, Naturliebhaber und Pendler. Du findest dich in einer ruhigen, aber zentralen Umgebung, die eine hervorragende Lebensqualität bietet. In der Nähe gibt es mehrere Kindergärten und Schulen, wie die Grundschule Mustermann und die weiterführende Schule Muster-Gymnasium, die beide für ihre gute Betreuung und Förderung bekannt sind.
Supermärkte wie der Rewe und die Lidl-Filiale sind nur wenige Minuten entfernt, sodass du alle Besorgungen bequem erledigen kannst. Zudem sind zahlreiche Ärzte und Fachärzte in der Umgebung ansässig, darunter die Hausarztpraxis Müller, die für ihre freundlichen Mitarbeiter und kurze Wartezeiten geschätzt wird.
Für die Freizeitgestaltung gibt es zahlreiche Angebote: der nahegelegene Stadtpark lädt zu Spaziergängen und sportlichen Aktivitäten ein, während das Sportzentrum Musterdorf mit diversen Sporteinrichtungen für aktive Familien sorgt. Die gute Anbindung an die Autobahn ermöglicht es dir, schnell in die Stadt zu gelangen, was für Pendler ein großer Vorteil ist.
Hier findest du die perfekte Balance zwischen ruhigem Wohnen und urbanem Leben - ein idealer Ort für dein zukünftiges Zuhause.
Adresse
26655 Westerstede
Interessante Orte
Preis- und Lageinformationen
Preistrend für Bestandsimmobilien in Westerstede