Stell dir vor, du betrittst dein neues Zuhause in Rastede, ein beeindruckendes Fertighaus mit einem stylischen Satteldach und einer Neigung von 25°. Dieses Eigenheim bietet dir auf 215 Quadratmetern Wohnfläche und zwei Etagen ausreichend Platz für deine Familie und Freunde. Der Übereckerker sorgt nicht nur für eine aufregende Fassadengestaltung, sondern schafft auch ein großzügiges Esszimmer, perfekt für gesellige Abende und gemeinsame Mahlzeiten. Jedes Detail deines neuen Zuhauses wurde individuell nach deinen Wünschen und Vorstellungen konzipiert, sodass kein Raum dem anderen gleicht und du dich vom ersten Moment an wohlfühlst.
LivingHaus bietet dir zahlreiche zusätzliche Leistungen, um dein Bauprojekt so reibungslos wie möglich zu gestalten. Mit der hochwertigen Traumküche, die genau auf deinen Grundriss angepasst wird, erhältst du moderne Technik und clevere Stauraumlösungen, die den Kochalltag erleichtern. Dank der Lieferung rechtzeitig zum Einzug kannst du sofort starten. Das LivingHaus Bau-Cockpit hält dich über die Bau-App stets informiert, sodass du jederzeit den Überblick über Zeitplan und Dokumente behältst.
Das Konzept des intelligenten Bauens mit I-KON sorgt dafür, dass dein Zuhause nicht nur nachhaltig, sondern auch energieeffizient ist. Als I-KON Effizienzhaus 40 QNG produziert es sogar regenerativen Strom durch eine integrierte Photovoltaikanlage.
Bei der Finanzierung kannst du von dem Zuhause-Darlehen profitieren, das dir bis zu 250.000 Euro zu besonders günstigen Zinssätzen bietet und staatliche Förderungen in Anspruch nimmt. Das Zuhause-Paket beinhaltet eine hochwertige Grundausstattung, inklusive edler Böden, stilvoller Türen und moderner Sanitäranlagen, alles perfekt aufeinander abgestimmt und fix und fertig geliefert. Für den Innenausbau steht dir das DIY-Ausbau-Coaching zur Verfügung, bei dem dir Experten zeigen, wie du deine Ideen selbst umsetzen kannst - ein aufregendes Projekt, das dir viele Möglichkeiten bietet, dein Zuhause nach deinen Vorstellungen zu gestalten.
Dein individuelles Traumhaus in Rastede - maßgeschneidert von LivingHaus
26427 Rastede
Die vollständige Adresse der Immobilie erhalten Sie vom Anbieter.
Auf Karte anzeigen
Die vollständige Adresse der Immobilie erhalten Sie vom Anbieter.
Finanzierungszertifikat
In nur zwei Minuten zu Ihrem persönlichen Finanzierungszertifkat.
Infos
| Haustyp | Einfamilienhaus |
|---|---|
| Wohnfläche ca. | 210 m2 |
| Grundstücksfläche | 555 m2 |
| Zimmer | 6 |
Kosten
| Kaufpreis |
598.623 € |
|---|
Finanzierungsrechner:
Kaufpreis:
600.000 €
Eigenkapital:
600.000 €
Monatliche Rate
0 €
Effektiver Jahreszins
0 %
Sollzinsbindung
10 Jahre
Bausubstanz & Energieausweis
| Baujahr | unbekannt |
|---|---|
| Qualität der Austattung | Gehoben |
Beschreibung des Objekts
Ausstattung
Die Ausstattung deines neuen Fertighauses ist erstklassig und individuell auf deine Bedürfnisse abgestimmt. Hochwertige Böden in Fliesen und Laminat bieten dir nicht nur eine ansprechende Optik, sondern auch Funktionalität. Edle Türen und stilvolle Sanitäranlagen runden das Gesamtbild ab. Du erhältst ein Zuhause, das nicht nur modern und komfortabel ist, sondern auch höchsten Ansprüchen gerecht wird. Alles ist optimal aufeinander abgestimmt und wird fix und fertig geliefert - so kannst du gleich einziehen und dein neues Leben beginnen. Hier wirst du dein »Wie ich es will Fertighaus« finden.
Lage
Rastede bietet dir eine perfekte Kombination aus ländlichem Charme und urbanem Leben. In unmittelbarer Nähe findest du zahlreiche Bildungseinrichtungen, darunter Kindergärten und Schulen, die für Familien ideal sind. Die Wilhelm-Raabe-Schule und die Grundschule Rastede sind nur einige Beispiele, die von Eltern hoch geschätzt werden.
Für deine täglichen Einkäufe stehen dir verschiedene Supermärkte zur Verfügung, wie Rewe und Aldi, die nur einen kurzen Fußweg entfernt sind. Auch Ärzte und Apotheken befinden sich in der Nähe, sodass du stets gut versorgt bist.
Freizeitangebote in Rastede sind vielfältig: Parks, Sportanlagen und Wanderwege laden dich zum Entspannen und Aktivsein ein. Der nahegelegene Rasteder Wald ist ein beliebtes Ziel für Naturliebhaber und bietet zahlreiche Möglichkeiten für Ausflüge in die Natur. Pendler profitieren von einer guten Anbindung an den öffentlichen Nahverkehr und erreichen die Autobahn A29 in wenigen Minuten. So bist du schnell in Städten wie Oldenburg oder Wilhelmshaven.
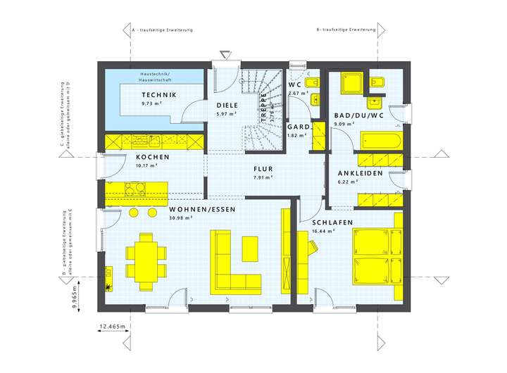
Grundriss
Cleverer Wohnkomfort
>
>
Cleveres Familienhaus-Design
>
>
Adresse
26427 Rastede
Interessante Orte
Preis- und Lageinformationen
Preistrend für Bestandsimmobilien in Rastede