Dieser freistehende Bungalow aus dem Jahr 1972 liegt eingebettet in einer idyllische Waldrandlage, die Ihnen Privatsphäre schenkt und dennoch die Nähe zur Stadt bewahrt.
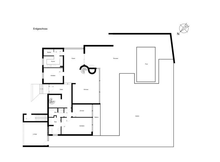
Schon beim Betreten des Hauses spüren Sie die Großzügigkeit. Die Diele bildet den Eingangsbereich und öffnet den Blick zu den zentralen Räumen. Von hier aus erreichen Sie alle wesentlichen Bereiche des Erdgeschosses, was kurze Wege und eine durchdachte Struktur schafft.
Geradeaus führt der Weg in den weitläufigen Wohn- und Essbereich. Große Fensterflächen holen viel Licht in den Raum und öffnen den Blick auf den Garten. Der Kamin gliedert den Bereich und sorgt in den Wintermonaten für angenehme Wärme. Der Essplatz ist so positioniert, dass Sie ihn im Sommer unmittelbar mit der angrenzenden Terrasse und dem Garten verbinden können. Der Blick fällt direkt auf den Pool – ein klarer Mittelpunkt für Freizeit und Erholung.
Links von der Diele befindet sich die Küche. Sie ist funktional angebunden und verfügt über eine Speisekammer, die zusätzlichen Stauraum bietet. Nebenan liegt ein Arbeitszimmer, das sich ideal als Homeoffice oder Gästezimmer nutzen lässt. Die Nähe zur Küche und zum Wohnbereich schafft eine gute Integration, gleichzeitig bleibt die nötige Ruhe gewahrt.
Auf der rechten Seite des Hauses liegen die privaten Räume. Das Elternschlafzimmer und das angrenzende Kinderzimmer sind bewusst zum Garten hin ausgerichtet und profitieren von der ruhigen Lage. Zwei Badezimmer stehen auf dieser Ebene zur Verfügung, eines davon als Ensuite-Bad. Ergänzt wird das Angebot durch ein separates Gäste-WC, das direkt von der Diele aus zugänglich ist.
Von der Diele erreichen Sie die Garderobe sowie die Nebenräume im Untergeschoss.
Im Untergeschoss befinden sich der Heizungsraum und der Hauswirtschaftsraum. Hinzu kommen ein großer Abstellraum sowie ein großzügiger Hobbyraum mit Kamin. Ein weiteres Zimmer eignet sich als Gästezimmer oder Büro. Zwei Badezimmer ergänzen diese Ebene sinnvoll.
Der Zugang zur Einliegerwohnung ist derzeit baulich getrennt. Mit einem kleinen Durchbruch stellen Sie den direkten Zugang vom Haus wieder her. Alternativ nutzen Sie den bestehenden separaten Eingang neben der Garage.
Diese Lösung eignet sich ideal für Familien mit älteren Kindern. Ebenso bietet sie eine attraktive Möglichkeit zur zusätzlichen Einnahme durch Vermietung.
Das Grundstück umfasst ca. 858 m². Der beheizte Pool bildet den Mittelpunkt des Gartens und kann ganzjährig genutzt werden. Im Sommer sorgt er für Abkühlung, in den kühleren Monaten wird er zum besonderen Highlight, das Erholung mit Wellness-Charakter verbindet. Die Gartenanlage ist gepflegt und harmonisch angelegt. Sie bietet Platz für Kinder zum Spielen, für entspannte Stunden im Liegestuhl oder für gesellige Abende mit Freunden und Familie.
Die Doppelgarage sowie zusätzliche Stellflächen vor dem Haus unterstreichen die Alltagstauglichkeit. Ihre Fahrzeuge sind geschützt untergebracht, zugleich bleibt ausreichend Platz für Fahrräder, Gartengeräte oder Hobbyausstattung.
Die Lage am Waldrand verleiht dem Anwesen eine besondere Wohnqualität. Spaziergänge, Joggingrunden oder Fahrradtouren beginnen direkt vor der Haustür. Die Umgebung ist zu jeder Jahreszeit reizvoll und bietet Ihnen einen naturnahen Ausgleich zum Alltag. Trotz der Ruhe erreichen Sie das Zentrum von Neu-Isenburg in wenigen Minuten.
Dieses Haus verbindet Großzügigkeit, Komfort und Lagequalität. Es ist modern ausgestattet, durchdacht geschnitten und bietet Ihnen ein Zuhause, das gleichermaßen Rückzugsort wie Lebensmittelpunkt ist. Hier entscheiden Sie sich für Wohnqualität, die Bestand hat – in einer Immobilie, die alle Voraussetzungen für ein langfristig wertbeständiges Zuhause erfüllt.
Neu-Isenburg Zeppelinheim: Freistehender Bungalow mit Pool und Einliegerwohnung
63263 Neu-Isenburg
Die vollständige Adresse der Immobilie erhalten Sie vom Anbieter.
Auf Karte anzeigen
Die vollständige Adresse der Immobilie erhalten Sie vom Anbieter.
Finanzierungszertifikat
In nur zwei Minuten zu Ihrem persönlichen Finanzierungszertifkat.
Infos
| Haustyp | Bungalow |
|---|---|
| Etagenzahl | 2 |
| Wohnfläche ca. | 201 m2 |
| Grundstücksfläche | 858 m2 |
| Bezugsfrei ab | 2026-03-31 |
| Zimmer | 7 |
| Schlafzimmer | 5 |
| Badezimmer | 5 |
| Garage/Stellplatz | Garage |
| Anzahl Garage/Stellplatz | 2 |
Kosten
| Kaufpreis |
1.150.000 € |
|---|---|
| Provision |
3.57 % inkl. MwSt. Bei Abschluss eines notariellen Kaufvertrages ist eine Käuferprovision vom Käufer in Höhe von 3.57 % inkl. MwSt. aus dem Kaufpreis fällig. |
Finanzierungsrechner:
Kaufpreis:
600.000 €
Eigenkapital:
600.000 €
Monatliche Rate
0 €
Effektiver Jahreszins
0 %
Sollzinsbindung
10 Jahre
Bausubstanz & Energieausweis
| Baujahr | 1972 |
|---|---|
| Letzte Sanierung | 2020 |
| Objektzustand | Gepflegt |
| Qualität der Austattung | Normal |
| Heizungsart | Gas-Heizung |
| Wesentliche Energieträger | Gas |
| Energieausweis | liegt vor |
| Energieausweistyp | Bedarfsausweis |
| Energieverbrauchskennwert | 278,7 kWh/(m²*a) |
| Energieeffizienzklasse | H |
278,7
kWh/(m²*a)
Energieeffizienzklasse H
- A+
- A
- B
- C
- D
- E
- F
- G
- H
- 0
- 25
- 50
- 75
- 100
- 125
- 150
- 175
- 200
- 225
- >250
Beschreibung des Objekts
Ausstattung
- Teilweise neue Bäder
- Neue Küche
- Kamin
- Einliegerwohnung
- Beheizbarer Pool
- Waldrandlage
- Garage
Lage
Die Immobilie liegt im Neu-Isenburger Stadtteil Zeppelinheim, einer ruhigen und naturnahen Wohnlage mit hohem Freizeitwert. Die Umgebung ist geprägt von gewachsenen Straßen, großzügigen Grundstücken und direkter Nähe zum Stadtwald. Hier genießen Sie Privatsphäre und Natur, ohne auf die Nähe zur Stadt verzichten zu müssen.
Kleinere Geschäfte und Dienstleister befinden sich direkt im Stadtteil, das Neu-Isenburger Zentrum mit dem Isenburg-Zentrum erreichen Sie in wenigen Minuten mit dem Auto oder mit dem Bus. Kindergärten, Schulen und ärztliche Versorgung sind ebenfalls in kurzer Distanz vorhanden.
Die Anbindung an den öffentlichen Nahverkehr ist bequem. Nur wenige Gehminuten entfernt befindet sich die Bushaltestelle, an der die Linie OF-52 Zeppelinheim mit dem Zentrum von Neu-Isenburg verbindet. Von hier erreichen Sie das Isenburg-Zentrum in rund 20 Minuten Fahrzeit. Über den Bahnhof Neu-Isenburg haben Sie Anschluss an weitere Regional- und S-Bahn-Linien in Richtung Frankfurt und Darmstadt. Der Bahnhof Zeppelinheim selbst, etwa zehn Minuten zu Fuß oder wenige Minuten mit dem Fahrrad erreichbar, wird von der S-Bahn-Linie S7 bedient und bringt Sie in kurzer Zeit direkt nach Frankfurt am Main. Trotz der Nähe zum Flughafen wohnen Sie hier ohne Fluglärm – ein klarer Vorteil dieser Lage.
Für Autofahrer sind die Anbindungen über die A5 und die B44 optimal. Frankfurt oder auch Darmstadt sind in kürzester Zeit erreichbar.
Auch Freizeitmöglichkeiten sind vielfältig. Direkt vor der Haustür beginnt der Stadtwald mit seinen Wegen für Spaziergänge, Jogging oder Fahrradtouren. In Zeppelinheim selbst gibt es Tennisplätze, Sportvereine und Reitmöglichkeiten. In wenigen Minuten erreichen Sie außerdem das Waldschwimmbad Neu-Isenburg, den Golfclub Neuhof sowie zahlreiche weitere Sport- und Freizeitangebote im Rhein-Main-Gebiet.
Zeppelinheim vereint naturnahes Wohnen mit bester Infrastruktur und zählt deshalb seit Jahren zu den gefragtesten Wohnlagen südlich von Frankfurt.
Grundriss
Erdgeschoss
>
>
Untergeschoss
>
>
Adresse
63263 Neu-Isenburg
Interessante Orte
Preis- und Lageinformationen
Preistrend für Bestandsimmobilien in Neu-Isenburg