Zum Hauptinhalt springen

Danhaus, der einzige Fertighausanbieter, der die gemauerte Klinkerwand ohne Aufpreis im Standard hat

49699 Lindern (Oldenburg)
Die vollständige Adresse der Immobilie erhalten Sie vom Anbieter.
Auf Karte anzeigen
Logo ImmoScout24 Logo ImmoScout24
PDF Finanzierungszertifikat

Finanzierungszertifikat

In nur zwei Minuten zu Ihrem persönlichen Finanzierungszertifkat.

  • Zur Vorlage beim Makler oder Verkäufer
  • Vorteile gegenüber anderen Kaufinteressenten
  • Kostenlos und unverbindlich
Finanzierungszertifikat anfragen

Infos

Haustyp Einfamilienhaus
Wohnfläche ca. 124 m2
Nutzfläche 0 m2
Grundstücksfläche 740 m2
Zimmer 4
Schlafzimmer 3
Badezimmer 2
Anzahl Garage/Stellplatz 0

Kosten

Kaufpreis 325.999 €
Provision Nein

Finanzierungsrechner:

Kaufpreis: 600.000 €

Eigenkapital: 600.000 €
Monatliche Rate 0 €
Effektiver Jahreszins 0 %
Sollzinsbindung 10 Jahre

Bausubstanz & Energieausweis

Baujahr 2026
Bauphase Haus in Planung (projektiert)
Qualität der Austattung Gehoben
Heizungsart Wärmepumpe

Beschreibung des Objekts

                Mit den Danhaus Ausbauhäusern sparen Sie viel, viel Geld! Eigenleistung lohnt sich und Danhaus hilft Ihnen bis zum Einzug!
            

Ausstattung

                Der Gesamtpreis beinhaltet das preislich gemittelte Grundstück, (ortsübliche Grundstückswerte) und die Ausbaustufe "Ausbauhaus". Geld sparen durch Eigenleistung.
               

Lage

                Die Grundstücke sind über die Gemeinde Lindern zu erwerben
                

Sonstige Angaben

                Sie bestimmen die Energie-Effizienzklasse, von KfW 55 bis KfF 40+ und QNG.

Anbauteile, Carport, Garage und Keller können Extras sein, die als Sonderausstattung angeboten werden. Abbildungen, Grundrisse und Flächenangaben sind beispielhaft und können Extras zeigen. Flächenangaben nach DIN 277.
           

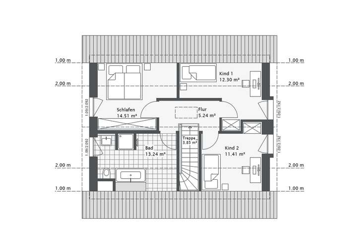
Grundriss

DreamLine-E-123 E1 EG DreamLine-E-123 E1 EG >
DreamLine-E-123 E1 OG DreamLine-E-123 E1 OG >

Adresse

49699 Lindern (Oldenburg)

Interessante Orte

Bäckereien
Schulen
Ärzte

Preis- und Lageinformationen

Preistrend für Bestandsimmobilien in Lindern (Oldenburg)
Sept. 2022 Sept. 2023 Sept. 2024 Sept. 2025 2.174,54 €/m² 2.053,94 €/m² -5,55 % -0,22 %

Dieser Zeitraum ist nur für eingeloggte User sichtbar.

Jetzt einloggen

Ansprechpartner