EVOLUTION 122 hat viele unterschiedliche Gesichter. Ganz modern ausgeführt in einer Variante mit hohem Kniestock,
25° Satteldach und vielen Fensterflächen oder ebenfalls zeitgemäß interpretiert als Flachdach-Planungsvorschlag mit
einem Querhauselement und Terrassenbalkon. Es geht allerdings auch anders: mediterran mit Querhaus, Balkon und Erker.
Ganz nach Ihrem Geschmack und in vielen weiteren Varianten. Denn auch mit einem Walmdach macht EVOLUTION 122
eine klasse Figur.
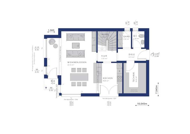
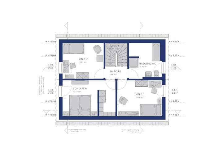
Der intelligente Grundriss bietet auf 122 Quadratmetern alles für das perfekte Wohnerlebnis. Im Erdgeschoss dient der großzügige
Wohn-/Essbereich mit angeschlossener Küche als Lebensmittelpunkt für die Bewohner. Dank großzügiger Fensterflächen
sind alle Räume hell und lichtdurchflutet und bieten gleichzeitig ausreichend Stellfläche. Durch die platzsparende
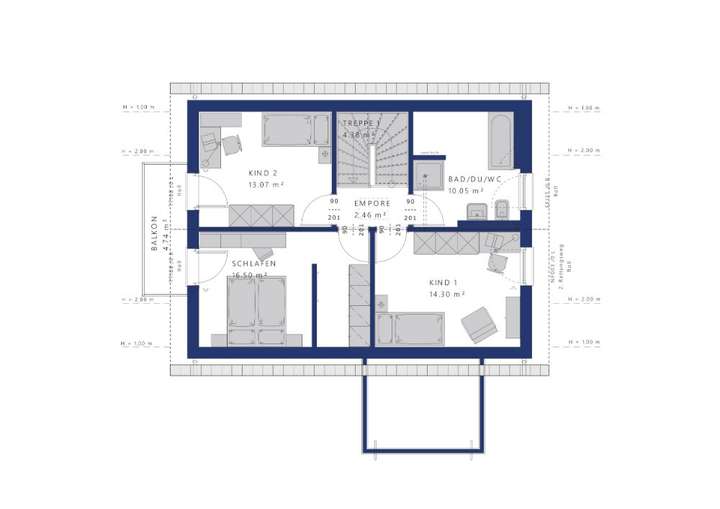
integrierte Treppe, die sowohl im Erd- als auch im Obergeschoss Basis für eine intelligente Raumaufteilung ist, erschließen
sich die drei Schlafzimmer und das große Wellness-Bad im Obergeschoss. Auch hier begeistern große und lichtdurchflutete
Zimmer.
EInfach mal Abhängen !
07318 Saalfeld/Saale
Die vollständige Adresse der Immobilie erhalten Sie vom Anbieter.
Auf Karte anzeigen
Die vollständige Adresse der Immobilie erhalten Sie vom Anbieter.
Finanzierungszertifikat
In nur zwei Minuten zu Ihrem persönlichen Finanzierungszertifkat.
Infos
| Haustyp | Einfamilienhaus |
|---|---|
| Etagenzahl | 2 |
| Wohnfläche ca. | 122 m2 |
| Grundstücksfläche | 700 m2 |
| Zimmer | 4 |
| Schlafzimmer | 3 |
| Badezimmer | 2 |
Kosten
| Kaufpreis |
504.807 € |
|---|
Finanzierungsrechner:
Kaufpreis:
600.000 €
Eigenkapital:
600.000 €
Monatliche Rate
0 €
Effektiver Jahreszins
0 %
Sollzinsbindung
10 Jahre
Bausubstanz & Energieausweis
| Baujahr | unbekannt |
|---|---|
| Bauphase | Haus in Planung (projektiert) |
| Heizungsart | Wärmepumpe |
Beschreibung des Objekts
Ausstattung
Es wurde ein Effizienzhaus 40+ "Schlüsselfertig" gerechnet, inkl. Bodenplatte, Grundinstallation, Architekt und Wohlfühl-Klima-Heizung+ mit kontrollierter Wohnraumbe- und Entlüftung.
In diesem Preis sind enthalten:
Das Bien-Zenker-Haus außen fertig mit Haustür und Fenstern sowie innen mit Treppe
Rollläden mit stabilen Aluminium-Lamellen
die Bodenplatte gemäß aktueller Bau- und Leistungsbeschreibung
30 Jahre Gewährleistung auf die Grundkonstruktion Ihres Bien-Zenker Hauses -5 Jahre Gewährleistung nach BGB auf die übrigen Bauleistungen Ihres Bien-Zenker-Hauses
Dämmpaket KFW40+ und Beplankung für Außenwände, Innenwände, Dach im ausgebauten Bereich und oberste Geschossdecke
Elektroinstallation mit Schaltern und Steckdosen
Sanitär-Rohinstallation in den Wänden
Heizungsanlage Wohlfühl-Klima-Heizung
PV-Anlage mind. 6,48 kWp
und PV-Batterie Varta pulse neo 6 (6,5)
Loxone-Energiepaket
Lüftungsanlage als kontrollierte Wohnraum Be- und Entlüftung inklusive Wärmerückgewinnung
Sanitär-Zwischenverrohrung bis zum Technikraum
Der Estrich
Lage
Das Grundstück für dieses Hausprojekt befindet sich in Saalfeld, angenehm und ruhig gelegen. Einkaufsmöglichkeiten, soziale Einrichtungen und öffentlicher Verkehr sind ortsüblich erreichbar.
Doch nicht ganz Ihre Wunschlage? Das ist aber kein Problem. Wir sollten uns einfach über Ihre Wünsche unterhalten. Zurzeit verfüge ich über weitere Grundstücke in der Region.
Sie haben bereits ein eigenes Baugrundstück? Glückwunsch! Natürlich baue ich mit Ihnen auch auf Ihrem eigenen Grundstück Ihr Traumhaus.
Also, einfach anrufen unter 0170 / 3548602 - es gibt für fast alles eine überzeugende Lösung.
Jedoch bitte ich Sie zu berücksichtigen:
Ich bin kein Makler und trete auch nicht als ein solcher auf, sondern baue mit sehr viel Herz und Kompetenz Häuser. Im Interesse der jeweiligen Grundstückseigentümer sowie meiner Bauherren werde ich also ohne ein persönliches Gespräch zum Thema Hausbau nie irgendwelche Grundstücksdaten weiterleiten. Keine Ausnahmen an dieser Stelle.
Meine Angebote erfolgen freibleibend und unverbindlich. Irrtum und Zwischenverkauf bleiben vorbehalten. Den auf die einzelnen Grundstücke bezogenen Angaben liegen die mir gegenüber erteilten Auskünften und Informationen zugrunde. Trotz sorgfältiger Prüfung kann ich daher eine Haftung für deren Richtigkeit und Vollständigkeit nicht übernehmen.
Und... natürlich ist es mir selbst mit bestem Willen nicht möglich, eine dauerhafte Verfügbarkeit der Grundstücke zu garantieren. Es gibt jedes Grundstück halt nur einmal. Leider. "
Sonstige Angaben
Das Grundstück ist im obigen Preis eingerechnet, es wird ohne zusätzliche Provision an einen Bien-Zenker Bauherren bereitgestellt.
Zusätzliche Baunebenkosten müssen noch hinzugerechnet werden, hierüber berate ich Sie gern.
Wir bieten Ihnen interessante Finanzierungsmöglichkeiten inklusive Beantragung aller Fördermittel!
Die Hausabbildungen zeigen teilweise Sonderausstattungen, die nicht im Preis enthalten sind.
Sie möchten dieses Haus besichtigen: Rufen Sie mich an und zufriedene Kunden zeigen ihnen gern ihr Haus!
Gute Beratung ist der Anfang von Allem.
Deshalb analysiere ich gemeinsam mit Ihnen Ihre Vorstellungen, Wünsche und Bedürfnisse und finden so das für Sie und Ihre Familie passende BIEN ZENKER Haus.
Interessiert? Rufen Sie mich gleich an und vereinbaren Sie noch heute einen kostenlosen und unverbindlichen Beratungstermin.
Grundriss
Evolution 122 EG
>
>
Evolution 122 DG
>
>
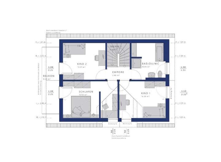
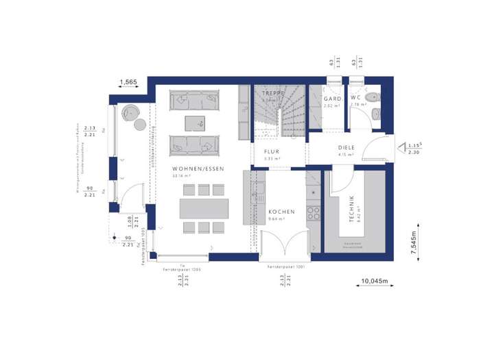
Evolution 122 V2 EG
>
>
Evolution 122 V2 DG
>
>
Evolution 122 V3 EG
>
>
Evolution 122 V3 DG
>
>
Adresse
07318 Saalfeld/Saale
Interessante Orte
Preis- und Lageinformationen
Preistrend für Bestandsimmobilien in Saalfeld/Saale