Das Haus ist auf einem realen Baugrundstück im Baugebiet Zschauitzer Landstraße geplant. Das Baugebiet umfasst 15 Grundstücke, hier ist beispielhaft eines mit 660m² beplant worden. Weitere Grundstücksgrößen bis 1.200 m² stehen zur Wahl. Die Grundstücke werden erschlossen verkauft, die Bebauung erfolgt nach Bebauungsplan. Ob Bungalow, 1,5-Geschosser oder Stadtvilla - Sie können hier nach Ihren Wünschen bauen.
Die Bilder zeigen ggf. Extras, die im Rahmen des Bebauungsplans noch geprüft werden müssen.
Doch nicht ganz Ihre Wunschlage? Gern sind wir bei der Wahl Ihres Traumgrundstückes behilflich! Sie haben bereits ein eigenes Baugrundstück? Glückwunsch! Natürlich können wir Ihr Haus auch auf Ihrem Grundstück planen und bauen.
Ein neues Zuhause für 2026
01558 Großenhain
Die vollständige Adresse der Immobilie erhalten Sie vom Anbieter.
Auf Karte anzeigen
Die vollständige Adresse der Immobilie erhalten Sie vom Anbieter.
Finanzierungszertifikat
In nur zwei Minuten zu Ihrem persönlichen Finanzierungszertifkat.
Infos
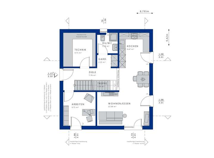
| Haustyp | Einfamilienhaus |
|---|---|
| Wohnfläche ca. | 144 m2 |
| Grundstücksfläche | 710 m2 |
| Zimmer | 5 |
Kosten
| Kaufpreis |
498.900 € |
|---|
Finanzierungsrechner:
Kaufpreis:
600.000 €
Eigenkapital:
600.000 €
Monatliche Rate
0 €
Effektiver Jahreszins
0 %
Sollzinsbindung
10 Jahre
Bausubstanz & Energieausweis
| Baujahr | unbekannt |
|---|---|
| Bauphase | Haus in Planung (projektiert) |
| Qualität der Austattung | Gehoben |
Beschreibung des Objekts
Ausstattung
BAUEN SIE ENTSPANNT MIT UNSERER FESTPREISGARANTIE!
So einzigartig wie unsere Baufamilien sind auch unsere Häuser. Mit Bien-Zenker entwerfen Sie Ihr individuelles Haus genau nach Ihren Vorstellungen und Wünschen.
Bei BIEN-ZENKER bereits INKLUSIVE:
* Bodenplatte
* Baugrundgutachten
* innovative Effizienzhaus-40-Wand
* Wärmepumpe mit Kühlfunktion
* PV-Anlage und Batteriespeicher
* HighEnd-Thermo-Energiesparfenster mit 3-fach-Isolierverglasung
* Hochwertige Einbauküche
* Premium-Versicherungspaket rund um das Thema Hausbau
* Energieberater und KfW-Begleitung
Malerarbeiten, Bodenbeläge und Innentüren sowie sanitäre Objekte erfolgen in Eigenregie. Gern bieten wir Ihnen auf Wunsch auch eine schlüsselfertige Ausführung an.
Lage
Die Stadt Großenhain liegt in der landschaftlich reizvollen - Großenhainer Pflege - im nordöstlichen Teil des Freistaates Sachsen. Sie bietet alle Vorteile einer Stadt, gut ausgebaute Infrastruktur sichert das alltägliche Leben, garantiert schnelle Verbindungen nach Dresden, Riesa etc.. I
Von zahlreichen Kindereinrichtungen, kulinarischen und medizinischen Einrichtungen sowie einem großen Freizeitangebot werden nicht nur Ihre Kinder profitieren. Auch das Bauernmuseum und der Barockgarten Zabeltitz sind z.B. lohnende Ausflugsziele.
Sonstige Angaben
Ankommen - Wohlfühlen - Zuhause sein! Ein Haus ist mehr als ein Ort zum Wohnen: Mit Bien-Zenker bauen Sie fürs Leben. Denn das eigene Haus macht glücklich!
Wenn Sie uns und unsere Häuser kennenlernen möchten, dann kommen Sie gerne in unser Musterhaus (Zur Kuhbrücke 11, 01458 Ottendorf-Okrilla) oder melden sich direkt bei mir: Ich freue mich auf Sie!
Tina Hollbauer
+49 171 269 2 294
tina.hollbauer@bien-zenker.de.
Adresse
01558 Großenhain
Interessante Orte
Preis- und Lageinformationen
Preistrend für Bestandsimmobilien in Großenhain