Träumen Sie noch - oder wohnen Sie schon?
Ihr neues Zuhause wartet!
Ich bin Ihr Ansprechpartner für moderne, energieeffiziente Fertighäuser in jeder Wohnform - individuell geplant, nachhaltig gebaut und schlüsselfertig übergeben.
📞 Greifen Sie jetzt zum Telefon und sichern Sie sich Ihr Beratungsgespräch in unserem brandneuen Musterhaus.
Tel.: 0172 819 65 32 oder
E-Mail: elena.hoffmann@massa-haus.de
Ich freue mich auf Sie!
Elena Hoffmann
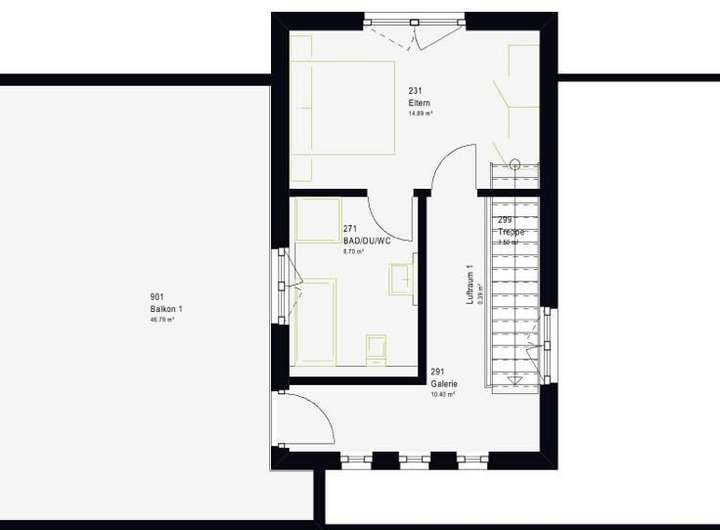
Durch seine abwechslungsreiche Geometrie gewinnt das LifeStyle 19.04 F einen extravaganten Charme: Drei versetzt nebeneinander gestellte Flachdächer in unterschiedlichen Höhen formen dieses außergewöhnliche Einfamilienhaus. Mit seinen großzügigen 194 m² Nettogrundfläche (nach DIN 277) bietet das LifeStyle 19.04 F Familien mit Platzbedarf viel Raum zum Wohnen: Auf das Erdgeschoss mit 109 m² (nach DIN 277) verteilen sich in ansprechender Aufteilung zwei Kinderzimmer, der Wohn- und Essbereich mit offener Küche, eine Speisekammer, ein Duschbad, das Gäste-WC sowie Flur und Hauswirtschaftsraum. Der leicht zurückversetzte Hauseingangsbereich schützt zugleich vor Wind und Wetter. Das Obergeschoss nimmt das Elternschlafzimmer, das zweite Bad sowie den Flur auf - und besticht durch den fast 46 m² (nach DIN 277) großen Balkon, der das Gefühl von purem Luxus erzeugt. Die Flachdachkonstruktion des Einfamilienhauses LifeStyle 19.04 F macht’s möglich. Die besondere Architektursprache der drei Flachdächer überzeugt auch durch die Wahl der Fensterformen: Schmale Elemente wechseln sich mit breiten Doppelflügeln ab, sehr viele Fenster sind bodentief ausgeführt - für eine wohngesunde Raumatmosphäre mit viel Licht, gebaut in nachhaltiger Weise.
Smart Living - stilvoll & effizient
06886 Lutherstadt Wittenberg
Die vollständige Adresse der Immobilie erhalten Sie vom Anbieter.
Auf Karte anzeigen
Die vollständige Adresse der Immobilie erhalten Sie vom Anbieter.
Finanzierungszertifikat
In nur zwei Minuten zu Ihrem persönlichen Finanzierungszertifkat.
Infos
| Etagenzahl | 2 |
|---|---|
| Wohnfläche ca. | 194 m2 |
| Nutzfläche | 194 m2 |
| Grundstücksfläche | 760 m2 |
| Zimmer | 4 |
| Schlafzimmer | 4 |
| Badezimmer | 3 |
Kosten
| Kaufpreis |
859.999 € |
|---|
Finanzierungsrechner:
Kaufpreis:
600.000 €
Eigenkapital:
600.000 €
Monatliche Rate
0 €
Effektiver Jahreszins
0 %
Sollzinsbindung
10 Jahre
Bausubstanz & Energieausweis
| Baujahr | unbekannt |
|---|
Beschreibung des Objekts
Ausstattung
Erleben Sie puren Luxus - ein architektonisches Meisterwerk, das modernste Technik mit nachhaltiger Energieeffizienz vereint: inklusive eigener Photovoltaik-Anlage und komfortabler E-Ladestation für Ihr Elektrofahrzeug.
Folgendes ist in diesem Angebot bereits enthalten:
- der Grundstückskaufpreis
- modernes Niedrigenergie-Ausbauhaus
- 3-fach verglaste Wärmeschutzfenster
- Aluminium-Rollläden
- FREIRAUM-Deckenhöhe 2,75m
- Holztreppe
- modernes Haustürelement
- mineralischer Struktur-Außenputz
- Dacheindeckung in versch. Farben zur Auswahl
- Bodenplatte (mit Baugrunduntersuchung und Bodengutachten)
- Baukran und Baugerüst
- Luft-Wasser Wärmepumpe inkl. Fußbodenheizung
- integrierte Be- und Entlüftungsanlage
- Elektroinstallation im Haus
- Sanitär
- Dämm- und Beplankungsmaterial (inkl. Bodentreppe)
- Architektenleistung (Genehmigungsplanung und Bauantrag)
- Versicherungspaket (für 1 Jahr)
- Materialien für den Innenausbau (Böden, Türen, Fliesen, Sanitärobjekte usw.)
- Innen-Ausbau (Trockenbau, Malerarbeiten, Fliesen- und Fußböden usw.)
- Baustelleneinrichtung
- Hausanschlusskosten
- Erdarbeiten
- Außenanlage
Lage
Das exklusive Baugrundstück befindet sich in attraktiver Wohnlage der Lutherstadt Wittenberg und vereint ruhiges, gehobenes Wohnen mit einer hervorragenden städtischen Anbindung. Die historische Altstadt mit ihren kulturellen Highlights, gehobenen Restaurants und vielfältigen Einkaufsmöglichkeiten ist in kurzer Zeit erreichbar und verleiht dem Standort einen besonderen Charme.
Die Umgebung ist geprägt von gepflegter Wohnbebauung, viel Grün und einer angenehmen Nachbarschaft - ideal für anspruchsvolles Wohnen mit hoher Lebensqualität. Schulen, Kindergärten, medizinische Versorgung sowie Freizeit- und Sportangebote befinden sich in komfortabler Nähe.
Dank der guten Verkehrsanbindung sind sowohl das Stadtzentrum als auch überregionale Ziele schnell erreichbar. Die naturnahe Umgebung entlang der Elbe bietet zudem zahlreiche Möglichkeiten zur Erholung, für Spaziergänge, Radfahren und Freizeitaktivitäten.
Diese Lage verbindet historische Bedeutung, moderne Infrastruktur und exklusives Wohnen - ein idealer Ort zur Verwirklichung individueller Wohnträume.
Sonstige Angaben
Wir bei massa haus sind Deutschlands Ausbauhaus-Pioniere mit über 40 Jahre Hausbau-Erfahrung.
Bei uns bekommen Sie:
+ 15 Monate Festpreisgarantie
+ Montage innerhalb von 2-4 Tagen
+ Nachhaltige Qualität zu einem Top-Preis-Leistungsverhältnis
+ Unterstützung bis zum Einzug
+ Energieeffizientes Bauen im KfW-Standard
+ Auswahl aus über 100 verschiedene Haustypen und noch einiges mehr!
WICHTIGE INFO FÜR ALLE INTERESSENTEN
Kontaktaufnahmen, Rückrufe oder Terminvereinbarungen erfolgen grundsätzlich nur mit Interessenten deren korrekte und vollständige Kontaktdaten mir vorliegen. Nutzen Sie dafür bitte das Online-Kontaktformular in diesem Angebot, ich melde mich umgehend bei Ihnen.
Angebot freibleibend. Irrtum, Änderungen und alle Rechte vorbehalten.
Adresse
06886 Lutherstadt Wittenberg
Interessante Orte
Preis- und Lageinformationen
Preistrend für Bestandsimmobilien in Lutherstadt Wittenberg