Dieses freistehende Einfamilienhaus aus dem Jahr 1972 befindet sich in Rümmelsheim in einer ruhigen Wohngegend und bietet auf ca. 280 m² Wohnfläche und 55 m²Nutzfläche auf einem 614 m² Grundstück viel Platz für die ganze Familie. Das Haus ist in einem gepflegten Zustand und verfügt über 8,5 Zimmer, 2 Badezimmer und 3 WCs. Die Gasheizung sorgt für wohlige Wärme. Eine PV-Anlage liefert selbst erzeugten Strom.
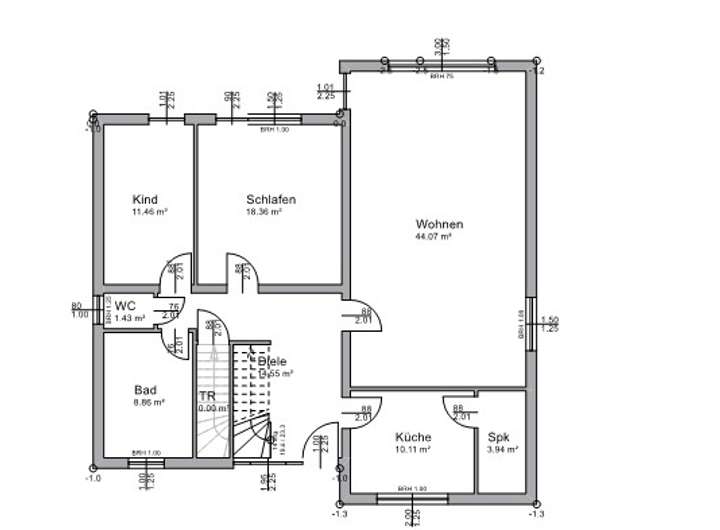
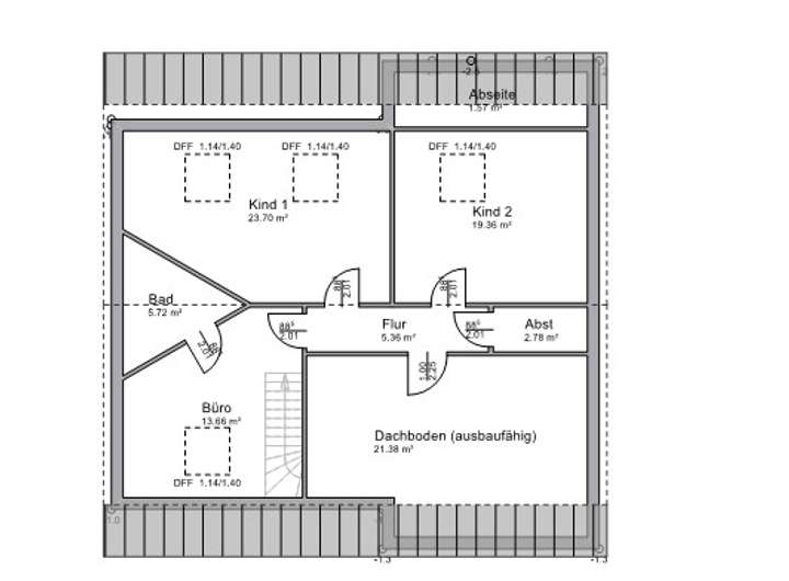
Auf einer Ebene im Erdgeschoss befindet das große Wohn-/Esszimmer und die Küche mit Speisekammer, sowie Schlaf- und 1 Kinderzimmer und Bad / WC. Das Dachgeschoss ist voll ausgebaut und verfügt über 1 Bad, Abstellraum, Galerie und 2 weitere große Kinderzimmer, sowie einem weiteren Raum als Ausbaureserve.
Der Keller bietet einen großen Hobbyraum, Hauswirtschaftsraum, eine Sauna, Werkstatt und weitere Kellerräume.
Weiterhin gibt es 2 Garagen zum Abstellen ihrer Fahrzeuge und einen gepflegten Garten, der viel Gestaltungsspielraum bietet.
Das Haus ist frei und kann nach Absprache gerne besichtigt werden.
Großes, gepflegtes Einfamilienhaus mit viel Stauraum und 2 Garagen in Rümmelsheim
Jakob-Diel-Straße 5,
55452 Rümmelsheim
Auf Karte anzeigen
Finanzierungszertifikat
In nur zwei Minuten zu Ihrem persönlichen Finanzierungszertifkat.
Infos
| Haustyp | Einfamilienhaus |
|---|---|
| Etagenzahl | 3 |
| Wohnfläche ca. | 280 m2 |
| Nutzfläche | 55 m2 |
| Grundstücksfläche | 614 m2 |
| Zimmer | 7,5 |
| Schlafzimmer | 4 |
| Badezimmer | 2 |
| Garage/Stellplatz | Garage |
| Anzahl Garage/Stellplatz | 2 |
Kosten
| Kaufpreis |
515.000 € |
|---|---|
| Provision | Nein |
Finanzierungsrechner:
Kaufpreis:
600.000 €
Eigenkapital:
600.000 €
Monatliche Rate
0 €
Effektiver Jahreszins
0 %
Sollzinsbindung
10 Jahre
Bausubstanz & Energieausweis
| Baujahr | 1972 |
|---|---|
| Bauphase | Haus fertig gestellt |
| Objektzustand | Gepflegt |
| Qualität der Austattung | Normal |
| Heizungsart | Gas-Heizung |
| Wesentliche Energieträger | Gas |
| Energieausweis | liegt vor |
| Energieausweistyp | Bedarfsausweis |
| Energieverbrauchskennwert | 242,6 kWh/(m²*a) |
| Energieeffizienzklasse | G |
242,6
kWh/(m²*a)
Energieeffizienzklasse G
- A+
- A
- B
- C
- D
- E
- F
- G
- H
- 0
- 25
- 50
- 75
- 100
- 125
- 150
- 175
- 200
- 225
- >250
Beschreibung des Objekts
Lage
Rümmelsheim ist eine charmante Weinbaugemeinde, die eine gute Anbindung an die umliegenden Region bietet. Die Lage ermöglicht sowohl eine ruhige Wohnatmosphäre, als auch eine gute Erreichbarkeit von Einkaufsmöglichkeiten für den täglichen Bedarf sowie ärztliche Versorgung. Die Umgebung lädt zu Spaziergängen in den Weinbergen und Aktivitäten in der Natur ein. Die gute Verkehrsanbindung ermöglicht ein schnelles Erreichen von größeren Städten und wichtigen Verkehrswegen. Rümmelsheim verfügt über eine Grundschule mit Ganztagsbetreuung, sowie einer Kindertagesstätte und ein vielseitige Vereinsleben, sowie ausgezeichnete Winzerbetriebe.
Grundriss
EG
>
>
DG
>
>
UG
>
>
Adresse
Jakob-Diel-Straße 5, 55452 Rümmelsheim
Interessante Orte
Preis- und Lageinformationen
Preistrend für Bestandsimmobilien in Rümmelsheim