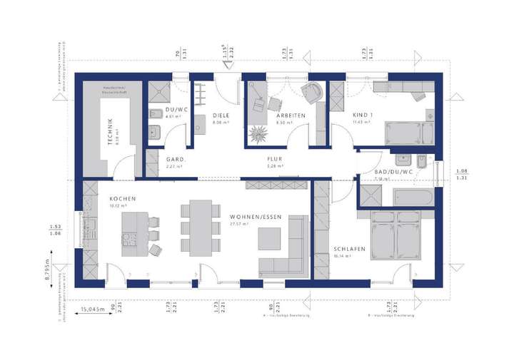
Praktische Diele mit Garderobe, offener, lichtdurchfluteter Wohnbereich, ein zusätzliches Arbeits- und ein separates Gäste- oder Kinderzimmer mit Dusch-WC: Wer sagt denn, dass ein Bungalow nicht ein absolut vollwertiges Eigenheim für zwei bis drei Personen ist? Der Entwurf "Ambience 111" überzeugt sowohl mit seinem wohldurchdachten Grundrisskonzept als auch
mit überaus ansprechender Architektur. Neben tollen Erkerlösungen, die noch mehr Wohnraum und einladende Terrassensituationen schaffen, lassen sich mit diversen Architektur-Bauteilen vielfältige architektonische Stile verwirklichen. Und zwar entweder mit Sattel-, Walm- oder Flachdach. Alle Grundrissvarianten dieses Eingeschossers funktionieren ohne Keller.
In diesem optionalen Untergeschoss kann man seine Hobbys pflegen oder man schafft hier zusätzlichen Wohn- bzw. Stauraum.
Statt Technikraum gibt´s im Erdgeschoss dann einen Abstellraum.
Bestpreisgarantie bei Bien-Zenker - Der zuverlässige Partner an Ihrer Seite
55765 Birkenfeld
Die vollständige Adresse der Immobilie erhalten Sie vom Anbieter.
Auf Karte anzeigen
Die vollständige Adresse der Immobilie erhalten Sie vom Anbieter.
Finanzierungszertifikat
In nur zwei Minuten zu Ihrem persönlichen Finanzierungszertifkat.
Infos
| Haustyp | Bungalow |
|---|---|
| Etagenzahl | 1 |
| Wohnfläche ca. | 110 m2 |
| Grundstücksfläche | 551 m2 |
| Zimmer | 4 |
| Schlafzimmer | 2 |
| Badezimmer | 2 |
Kosten
| Kaufpreis |
375.031 € |
|---|---|
| Provision | Nein |
Finanzierungsrechner:
Kaufpreis:
600.000 €
Eigenkapital:
600.000 €
Monatliche Rate
0 €
Effektiver Jahreszins
0 %
Sollzinsbindung
10 Jahre
Bausubstanz & Energieausweis
| Baujahr | unbekannt |
|---|---|
| Bauphase | Haus in Planung (projektiert) |
| Qualität der Austattung | Gehoben |
Beschreibung des Objekts
Ausstattung
Bereits im Kaufpreis enthalten:
-Baugrundstück
-Bodengutachten
-projektiertes Haus "zur Ausstattung fertig", gerne bieten wir es Ihnen auch bezugsfertig an!
-innovative Effizienzhaus 40 Wand
-innovative Effizienzhaus 40 Thermo- Energiesparfenster mit 3 Scheiben Isolierverglasung für
energiebewusstes Wohnen
-Außenfensterbänke, in verschieden Farben wählbar
-hochwertige Dacheindeckung, mit 30 Jahren Herstellergarantie
-Moderne Vollholzhaustür mit 5-Punkt-Verriegelung mit Edelstahlgriff
-Modernste, effiziente und innovative Heizungstechnik mit unserer Wohlfühlklimaheizung
inkl. Kühlfunktion und integriertem Pollenfilter, bestens geeignet für Familien mit
Kindern und Allergiker.
Auch Sie und Ihre Familie begleiten wir gerne zuverlässig und persönlich auf dem Weg zu Ihrem eigenen Bien-Zenker Traumhaus.
Lage
Die Stadt Birkenfeld liegt im Südwesten von Rheinland-Pfalz und ist Kreisstadt des gleichnamigen Landkreises. Eingebettet in die schöne Mittelgebirgslandschaft des Hunsrücks, bietet Birkenfeld eine reizvolle Kombination aus Natur, guter Infrastruktur und hoher Lebensqualität.
Vor Ort finden sich alle Einrichtungen des täglichen Bedarfs: Supermärkte, Schulen, Kindergärten, Ärzte, Apotheken sowie ein Krankenhaus. Auch kulturelle Angebote, Sporteinrichtungen und gastronomische Betriebe sind vielfältig vorhanden.
Dank der guten Anbindung an die B41 und die A62 ist Birkenfeld verkehrstechnisch günstig gelegen. Die Städte Idar-Oberstein, Trier und Kaiserslautern sind gut erreichbar.
Sonstige Angaben
Angebotspreis zuzüglich Grunderwerb- und Baunebenkosten.
Vorbehaltlich Irrtümer und Zwischenverkauf.
Abbildungen, Fotos und Grundrisse können Extras enthalten.
Bei dem dargestellten Objekt handelt es sich um eine Projektierung,
die im Hinblick auf Kubatur, architektonischer Gestaltung und Energieeffizienzklasse an individuelle Anforderungen und Bedürfnisse unserer Bauherren angepasst werden kann.
Ein bedarfsbasierter Energieausweis wird nach endgültiger Planung und unter Berücksichtigung regionaler baurechtlicher Bestimmungen erstellt und an die Bauherren nach Fertigstellung übergeben.
Bitte beachten Sie die Erklärung zur Datenschutzverordnung im Impressum.
Grundriss
EG
>
>
Adresse
55765 Birkenfeld
Interessante Orte
Preis- und Lageinformationen
Preistrend für Bestandsimmobilien in Birkenfeld