Zum Hauptinhalt springen

Grundstück für "Wolkenkuckuckshaus"

Am Friedenshang 4, 32312 Lübbecke
Auf Karte anzeigen
Logo ImmoScout24 Logo ImmoScout24
PDF Finanzierungszertifikat

Finanzierungszertifikat

In nur zwei Minuten zu Ihrem persönlichen Finanzierungszertifkat.

  • Zur Vorlage beim Makler oder Verkäufer
  • Vorteile gegenüber anderen Kaufinteressenten
  • Kostenlos und unverbindlich
Finanzierungszertifikat anfragen

Infos

Vermarktungsart Kaufen
Grundstücksfläche 657 m2
Erschließung Erschlossen
Grundflächenzahl (GRZ) 0.4
Bebaubar nach Bebauungsplan
Verfügbar ab 6.1.2026

Kosten

Miete pro Jahr 125.000 €
Provision Nein

Finanzierungsrechner:

Kaufpreis: 600.000 €

Eigenkapital: 600.000 €
Monatliche Rate 0 €
Effektiver Jahreszins 0 %
Sollzinsbindung 10 Jahre

Beschreibung des Objekts

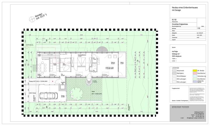
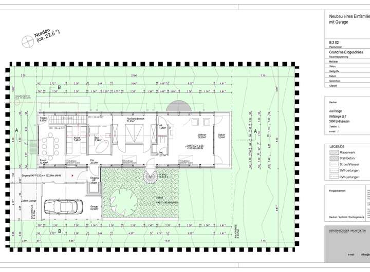
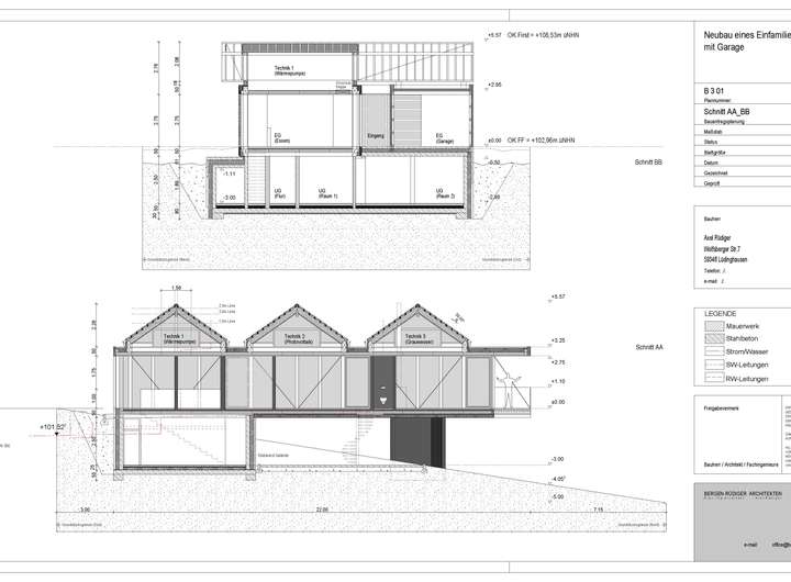
                Grundstück am Nordhang des Wiehengebirges mit genehmigter (Baugenehmigung liegt vor) Projektplanung für ein Einfamilienwohnhaus mit Carport und Einliegerwohnung.
            

Lage

                Hochgelegen mit Panoramablick auf das große Torfmoor und den Stemwederberg 
                

Grundriss

2 02 Grundriss Erdgeschoss M 1 2 02 Grundriss Erdgeschoss M 1 >
2 01 Grundriss Kellergeschoss 2 01 Grundriss Kellergeschoss >

Adresse

Am Friedenshang 4, 32312 Lübbecke

Interessante Orte

Bäckereien
Schulen
Ärzte

Ansprechpartner