Zum Verkauf steht ein unbebautes Grundstück mit einer Fläche von 382 m² in Waltersdorf, in einem gewerblichen Gebiet mit bestehendem Bebauungsplan. Das Grundstück ist bereits
mit einer fertigen Baugenehmigung für ein modernes Bürogebäude ausgestattet, sodass der Bau schnell umgesetzt werden kann.
Das geplante Bürogebäude umfasst vier vollständige Etagen
mit einer Gesamtbürofläche von ca. 436 m², die vielfältige
Nutzungsmöglichkeiten bieten:
Obergeschoss: ca. 109,7 m²
Obergeschoss: ca. 109,7 m²
Obergeschoss: ca. 109,7 m²
Obergeschoss: ca. 106,9 m²
Das Gebäude wird mit einem geplanten Fahrstuhl ausgestattet, der den barrierefreien Zugang zu allen Etagen ermöglicht. Im Erdgeschoss sind 7 Parkplätze vorgesehen, die bequem
für Mitarbeiter und Besucher zur Verfügung stehen. Das Treppenhaus sorgt für eine einfache und sichere Erschließung der Etagen.
Auf dem Grundstück wurde bereits mit der ersten Erdschicht
für das Fundament begonnen. Diese vorbereitende Maßnahme kann vom Käufer genutzt oder bei Bedarf erneuert
werden.
Ein besonderes Highlight ist, dass das Grundstück auch im
Rahmen eines Share-Deals erworben werden kann. Diese
Möglichkeit bietet Investoren eine flexible und attraktive Option, um in dieses Projekt zu investieren.
Dieses Grundstück bietet eine hervorragende Gelegenheit für
Unternehmen, die eine moderne Immobilie in einer gut erschlossenen Lage realisieren möchten. Die Nähe zu Verkehrswegen und die Lage im Gewerbegebiet machen es zu
einer attraktiven Investition.
Für weitere Informationen oder eine Besichtigung stehen wir
Ihnen gerne zur Verfügung!
--------------------------------------------------------------------------------------
For sale is an undeveloped plot of land with a size of 382 m²
in Waltersdorf, located in a commercial area with an existing
development plan. The property already comes with a finali
zed building permit for a modern office building, allowing
construction to begin quickly.
The planned office building comprises four full floors with a
total office space of approx. 436 m², offering a wide range of
usage possibilities:
Upper floor: approx. 109.7 m²
Upper floor: approx. 109.7 m²
Upper floor: approx. 109.7 m²
Upper floor: approx. 106.9 m²
The building is planned to include an elevator, ensuring bar
rier-free access to all levels. On the ground floor, 7 parking
spaces are provided for employees and visitors. A central
staircase guarantees simple and secure access to all floors.
Initial excavation work for the first soil layer of the foundation
has already been started on the property. This preparatory
work may either be used by the buyer or renewed if desired.
A particular highlight is that the property can also be acquired through a share deal. This option offers investors a flexible and attractive way to participate in the project.
This plot represents an excellent opportunity for companies
looking to realize a modern property in a well-developed location. The proximity to transport connections and the setting
within a commercial area make it a highly attractive investment.
For further information or to arrange a viewing, please feel
free to contact us!
Attraktives unbebautes Grundstück mit Baugenehmigung in Waltersdorf – ideal für Bürogebäude
12529 Schönefeld
Die vollständige Adresse der Immobilie erhalten Sie vom Anbieter.
Auf Karte anzeigen
Die vollständige Adresse der Immobilie erhalten Sie vom Anbieter.
Finanzierungszertifikat
In nur zwei Minuten zu Ihrem persönlichen Finanzierungszertifkat.
Infos
| Vermarktungsart | Kaufen |
|---|---|
| Grundstücksfläche | 382 m2 |
| Erschließung | Erschlossen |
| Grundflächenzahl (GRZ) | 0.8 |
| Bebaubar nach | Bebauungsplan |
Kosten
| Miete pro Jahr |
299.000 € |
|---|---|
| Provision |
3,57% inkl. MwSt. vom Käufer auf den Kaufpreis zu zahlen. Gesamt 10.674,30 EUR 3,57 % Käuferprovision inkl. MwSt., verdient und fällig mit Beurkundung des notariellen Kaufvertrages. Der Immobilienmakler hat einen provisionspflichtigen Maklervertrag mit dem Verkäufer in gleicher Höhe abgeschlossen. |
Finanzierungsrechner:
Kaufpreis:
600.000 €
Eigenkapital:
600.000 €
Monatliche Rate
0 €
Effektiver Jahreszins
0 %
Sollzinsbindung
10 Jahre
Beschreibung des Objekts
Lage
Das Gewerbegrundstück befindet sich in Schönefeld
Waltersdorf, einer Ortschaft in der Nähe von Berlin. Die Lage
ist verkehrsgünstig, mit guten Anbindungen an die umliegenden
Städte und Autobahnen. Die Umgebung besteht aus einer
Mischung von gewerblichen Flächen und ländlichen Gebieten,
was die Gegend sowohl für Unternehmen als auch für andere
Nutzungen attraktiv macht.
--------------------------------------------------------------------------------------
The commercial property is located in Schönefeld Walters
dorf, a village near Berlin. The location is well-connected, with good
access to surrounding cities and highways. The area consists of a
mix of commercial spaces and rural regions, making it attractive
for both businesses and other uses.
Sonstige Angaben
Falls wir Ihr Interesse geweckt haben sollten, würden wir uns
freuen, Ihnen das Grundstück mit weiteren Informationen
oder auch einen Besichtigungstermin vorzustellen. Erreichbar sind wir unter der Rufnummer 030 516 974 12 oder direkt mit dem Ansprechpartner Herrn Hackenberg, Rufnummer 0178 210 34 50.
Die Informationen sind Informationen des Verkäufers. Trotz
gewissenhafter Erstellung des Exposés können Irrtümer
vorkommen. Wir möchten Sie darauf hinweisen, dass wir eine
Haftung ausdrücklich ausschließen.
Wir freuen uns über Ihre Kontaktaufnahme!
++++ Gern verkaufen wir auch Ihre Immobilie ++++ Sprechen
Sie uns einfach an ++++
--------------------------------------------------------------------------------------
If we have piqued your interest, we would be pleased to pre
sent the property to you along with additional information or ar
range a viewing appointment. You can reach us at the phone number
030 516 974 12 or directly contact our representative,
Mr. Hackenberg, at 0178 210 34 50.
Please note that the information provided is from the seller.
Despite careful preparation of the exposé, errors may occur.
We explicitly exclude any liability.
We look forward to hearing from you!
++++ We are also happy to sell your property ++++ Just get in
touch with us ++++
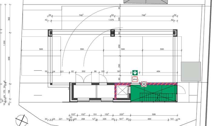
Grundriss
Grundriss 1 u 2 OG
>
>
Grundriss 3 OG
>
>
Grundriss 4 OG
>
>
Grundriss EG
>
>