Via-Intelli® präsentiert Ihnen das moderne Familienhaus als einzugsfertige Variante in einem ansprechenden Bauensemble, das zeitlose Architektur mit innovativer Technik vereint. Das Einfamilienhaus wird einzugsfertig zum Festpreis und ohne Maklerprovision gebaut – mit garantiertem Fertigstellungstermin.
Als KfW 40 Niedrigenergiehaus bietet diese Immobilie nachhaltiges Wohnen dank einer eigenen Wärmepumpe mit Fußbodenheizung und einer Photovoltaikanlage, die im Preis enthalten ist. Profitieren Sie zudem von einem vergünstigten KfW 40-Kredit. Unsere Finanzexperten beraten Sie gerne.
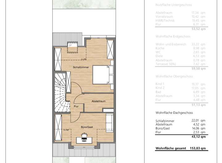
Das Haus befindet sich in einer familienfreundlichen Wohngegend und bietet auf drei Etagen über 154 m² Wohnfläche. Der voll unterkellerte Bereich bietet zusätzlichen Stauraum und vielseitige Nutzungsmöglichkeiten.
Im lichtdurchfluteten, offenen Wohnbereich auf über 42 m² können Sie entspannen und genießen. Die großzügige Terrasse und der Garten mit unverbaubarem Blick in den Wald bieten Ruhe und Erholung. Die Küchen-Elektroplanung wird kostenfrei nach Ihren Wünschen angepasst. Zudem haben Sie die Möglichkeit, Ihre Küche mit einer raumhohen Ganzglastür zu individualisieren. Ein Gäste-WC sowie ein Abstellraum runden die Planung des Erdgeschosses ab.
Im Obergeschoss erwarten Sie zwei gemütliche Schlafzimmer und ein großzügiges Badezimmer mit moderner Dusche und Badewanne. Die großformatigen Fliesen im Bad sind aus unserer großen Farbauswahl frei wählbar. Selbstverständlich sind Fliesen, hochwertiger Parkettboden und Glattvlies inkl. Malerarbeiten bereits im Festpreis enthalten.
Das Dachgeschoss umfasst ein großzügiges Elternschlafzimmer und ein weiteres Zimmer mit lichtdurchfluteter Gaube, ideal als Gästezimmer, Kinderzimmer Homeoffice zu nutzen. Zusätzlichen Komfort bietet der Abstellraum.
Der voll unterkellerte Bereich rundet dieses exklusive Angebot ab: Hier finden Sie ausreichend Platz für einen Abstellraum, einen Hauswirtschaftsraum und einen Vorratsraum. Vervollständigt wird Ihr neues Zuhause mit einem Stellplatz vor dem Haus, der optional mit einer E-Vorrüstung ausgestattet werden kann – perfekt für zukunftsorientierte und umweltbewusste Mobilität.
Nutzen Sie die Gelegenheit, Ihr Traumhaus in einer familienfreundlichen Umgebung zu verwirklichen.
Vereinbaren Sie noch heute einen Beratungstermin – Via-Intelli® begleitet Sie auf dem Weg zu Ihrem neuen Zuhause.
Bereits im Frühling einzugsfertig: Viel Platz für Familie und Homeoffice - alles unter einem Dach!
50126 Bergheim
Die vollständige Adresse der Immobilie erhalten Sie vom Anbieter.
Auf Karte anzeigen
Die vollständige Adresse der Immobilie erhalten Sie vom Anbieter.
Finanzierungszertifikat
In nur zwei Minuten zu Ihrem persönlichen Finanzierungszertifkat.
Infos
| Haustyp | Reihenmittelhaus |
|---|---|
| Etagenzahl | 3 |
| Wohnfläche ca. | 154 m2 |
| Nutzfläche | 53 m2 |
| Grundstücksfläche | 200 m2 |
| Bezugsfrei ab | 28.02.2026 |
| Zimmer | 5 |
| Schlafzimmer | 5 |
| Badezimmer | 2 |
| Garage/Stellplatz | Außenstellplatz |
| Anzahl Garage/Stellplatz | 1 |
Kosten
| Kaufpreis |
633.900 € |
|---|---|
| Preis für Garage/Stellplatz | 11.800 € |
| Provision | Nein |
Finanzierungsrechner:
Kaufpreis:
600.000 €
Eigenkapital:
600.000 €
Monatliche Rate
0 €
Effektiver Jahreszins
0 %
Sollzinsbindung
10 Jahre
Bausubstanz & Energieausweis
| Baujahr | 2025 |
|---|---|
| Bauphase | Haus im Bau |
| Objektzustand | Erstbezug |
| Qualität der Austattung | Gehoben |
| Heizungsart | Wärmepumpe |
| Wesentliche Energieträger | Strom |
| Energieausweis | liegt vor |
| Energieausweistyp | Bedarfsausweis |
| Energieverbrauchskennwert | 14,5 kWh/(m²*a) |
| Energieeffizienzklasse | A+ |
14,5
kWh/(m²*a)
Energieeffizienzklasse A+
- A+
- A
- B
- C
- D
- E
- F
- G
- H
- 0
- 25
- 50
- 75
- 100
- 125
- 150
- 175
- 200
- 225
- >250
Beschreibung des Objekts
Ausstattung
Überzeugen Sie sich selbst von unserer hochwertigen Bauqualität:
• energieeffizient Wohnen im KFW40-Haus,
• zukunftsorientierte Wärmepumpe inkl. einer Photovoltaikanlage,
• fix und fertige Herstellung der Außenanlage,
• solide Massivbauweise Stein auf Stein,
• Fußbodenheizung regelbar in jedem Raum,
• Panoramafenster abschließbar und gegen Einbruch geschützt,
• großzügige Elektroausstattung,
• elektrischen Rollläden an allen Fenstern,
• edle Malerarbeiten, futuristisches Glattvlies auf Dickputzgrundlage,
• hochwertige Eiche-Massivholz-Diele,
• SAT-Anlage, sowie LAN-Paket mit Netzwerkdosen in jedem Raum,
• Haustür mit 5-fach-Verriegelung,
• hochwertige Türen und Türbeschläge,
• Bäder inklusive aller Einrichtungsgegenstände und Badaccessoires,
• hochwertiges Natursteinzeug in den Bädern,
• nur Verwendung von Markenfabrikaten,
• inklusive aller Baunebenkosten, einschließlich der Herstellung aller Erschließungsanlagen,
• zu der hochwertigen Ausstattung Individualisierung möglich …
… demnach ist Ihre Immobilie einzugsfertig und mit sehr hochwertigen Materialien ausgestattet.
Lage
Bergheim bietet Menschen Heimat, die die Nähe zur Großstadt Köln ebenso zu schätzen wissen, wie einen Ausflug in die Natur. Sie wohnen in direkter Waldrandlage und doch zentrumsnah. Die Lage bietet den perfekten Mix aus Natur, Erholung und Urbanität. Fußläufig erreichen Sie das Stadtzentrum und alle Dinge des täglichen Bedarfs. Kindergärten, Grundschulen und weiterführende Schulen befinden sich ebenso in unmittelbarer Nähe. Die Kölner Innenstadt erreichen Sie mit der Regionalbahn RB 38 oder dem Auto in rund 30 Minuten.
Grundriss
Erdgeschoss
>
>
Obergeschoss
>
>
Dachgeschoss
>
>
Kellergeschoss
>
>
Adresse
50126 Bergheim
Interessante Orte
Preis- und Lageinformationen
Preistrend für Bestandsimmobilien in Bergheim