"Willkommen in Goddelau, dem kleinen Paradies in Riedstadt! 🌳🏠
Mit etwa 6.000 Einwohnern ist Goddelau die perfekte Mischung aus Ruhe und Action. Hier findet ihr:
- *Schulen*: Grundschule um die Ecke, Realschule und Gymnasium in Riedstadt
- *Kindergärten*: Mehrere tolle Einrichtungen für eure kleinen Schätze
- *Ärzte & Gesundheit*: Mehrere Hausärzte, Zahnärzte und Fachärzte im Ort
- *Krankenhaus*: Kreiskrankenhaus Groß-Gerau (ca. 5 km)
- *Autobahn*: A67 direkt vor der Tür - Pendeln mit öffentlichen Verkehrsmitteln oder dem PKW nach Frankfurt, Mannheim, Darmstadt oder Groß-Gerau leicht gemacht!
-Mit dem Regionalexpress sind Sie beispielsweise in 10 Minuten in Groß-Gerau, und in 30 Minuten direkt am Frankfurter Hauptbahnhof.
Das Highlight:
- *Eingefriedetes angelegtes Gartengrundstück*: Privat und kinderfreundlich
- *Swimmingpool*: Für sommerliche Abkühlung garantiert
- *Grillhütte in Holzblockbauweise*: Perfekt für BBQ-Abende mit Freunden
- *Doppelgarage & Fahrrad-Abstellraum*: Platz für Auto und Bike
- *Vorschlag für die Nutzung einer Maisonette-Wohnung mit Wintergärten und Balkon*: Wohnen wie im Urlaub!
Im Vergleich zu umliegenden Gemeinden und Städten (wie Groß-Gerau, Griesheim oder Darmstadt) punktet Goddelau mit:
-Günstiger Infrastruktur mit Regional- & S-Bahnhof in ca. 500 m Entfernung, Sitz der Verbandsgemeine, Lebensmittel/ Getränkemärkte in Laufnähe, Baumarkt, Apotheken, Metzger, Restaurants und div. weiteren Geschäften des täglichen Bedarfs.
- Einer entspannten Atmosphäre
- Kurzen Wegen in die Natur
- Guter Anbindung an die Region
Kurz: Die Immobilie ist ein echter Glücksgriff für Familien, auch mit Haustieren🏠👪 Wollt ihr es sehen? 😊"
Manchmal sind es nur Details, die das Besondere eines
Gebäudes ausmachen. Sie schaffen Atmosphäre und tragen
wesentlich zur Gestaltung von Haus und Wohnraum und Garten bei.
Jedes Gebäude erzählt eine einzigartige Geschichte.
Wir laden Sie ein zu einer Entdeckungsreise ein.
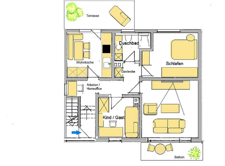
Dieses perfekte Zweifamilienhaus, welches jetzt Komplett frei geworden ist, bietet eine ideale Kombination aus großzügigem Wohnraum und einer familienfreundlichen Umgebung. Mit einer Grundstücksfläche von ca 700 m² und einer Wohnfläche von insgesamt ca. 264 m² bietet dieses Anwesen ausreichend Platz für zwei Familien. Das Haus besteht aus zwei großzügigen Wohnungen, jeweils mit 3 Zimmern, einer Küche und einem Badezimmer. Beide Wohnungen verfügen zusammen über 3 große Sonnenbalkone und einen Wintergarten im Erdgeschoß, die zum Entspannen einladen. Die 98 m² große Wohnung im Erdgeschoss sowie die 84 m² große Wohnung im Obergeschoss ist sofort bezugsfertig. Beide Wohnungen beeindrucken sowohl mit einerm Wintergarten und Balkon im EG sowie einer großzügigen Gartenterrasse und einem Balkon.
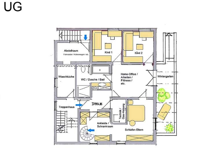
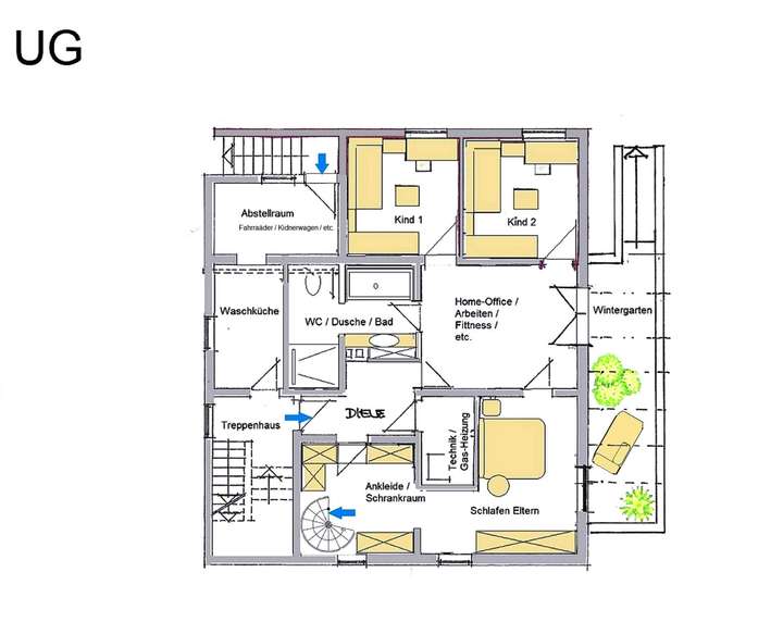
Eine weitere 3. jedoch nicht genehmigte Wohneinheit mit Küche, Bad, 4 weiteren Zimmern und einem Wintergarten befinden sich im Souterrain des Hauses.
WOHNHAUS MIT 2 bzw. 3 EINHEITEN
64560 Riedstadt
Die vollständige Adresse der Immobilie erhalten Sie vom Anbieter.
Auf Karte anzeigen
Die vollständige Adresse der Immobilie erhalten Sie vom Anbieter.
Finanzierungszertifikat
In nur zwei Minuten zu Ihrem persönlichen Finanzierungszertifkat.
Infos
| Haustyp | Mehrfamilienhaus |
|---|---|
| Etagenzahl | 2 |
| Wohnfläche ca. | 264 m2 |
| Nutzfläche | 25 m2 |
| Grundstücksfläche | 700 m2 |
| Bezugsfrei ab | ab 01.03.2026 |
| Zimmer | 9 |
| Schlafzimmer | 6 |
| Badezimmer | 3 |
| Garage/Stellplatz | Garage |
| Anzahl Garage/Stellplatz | 2 |
Kosten
| Kaufpreis |
795.000 € |
|---|---|
| Provision |
je 3,57% für Käufer & Verkäufer |
Finanzierungsrechner:
Kaufpreis:
600.000 €
Eigenkapital:
600.000 €
Monatliche Rate
0 €
Effektiver Jahreszins
0 %
Sollzinsbindung
10 Jahre
Bausubstanz & Energieausweis
| Baujahr | 1971 |
|---|---|
| Letzte Sanierung | 2020 |
| Bauphase | Haus fertig gestellt |
| Objektzustand | Gepflegt |
| Qualität der Austattung | Normal |
| Heizungsart | Zentralheizung |
| Wesentliche Energieträger | Gas |
| Energieausweis | liegt zur Besichtigung vor |
Beschreibung des Objekts
Ausstattung
Highlights dieser Immobilie sind die zentrale Lage in einer ruhigen Seitenstraße, der gepflegte Zustand des Hauses, eine neuwertige Heizungsanlage sowie der großzügige Garten mit Gestaltungspotenzial. Zwei Garagen ergänzen das Angebot und sorgen für komfortablen Fahrzeug- oder Stauraum. In der Garage mit einem 4,50m breitem und 2,12m hohen Sektionaltor. Für den Kfz-Hobby-Mechaniker ist sogar eine Montagegrube vorhanden.
Durch die flexiblen Nutzungsmöglichkeiten (Eigennutzung einer Einheit, Vermietung der anderen zwei Einheiten zur Eigen-Nutzung oder einer Großfamilienlösung, siehe hierzu die Grundrisse der Nutzungsvorschläge) bietet dieses Objekt attraktive Perspektiven für Selbstnutzer und Kapitalanleger gleichermaßen. Die Grundrisskonzepte für einen Umgestaltungs-Vorschlag in eine Gross-Wohnung sind ideal für die Grossfamilie.
Mit seiner attraktiven Raumaufteilung, dem schönen Grundstück und dem Fernblick bietet es eine einmalige Gelegenheit für eine individuelle Gestaltung.
Lage
Die umliegende Bebauung besteht überwiegend aus Einfamilien- und 2-Familienhäusern, was eine angenehme Wohnatmosphäre in Form einer Oase schafft. In kurzer Entfernung von ca 200 m befinden sich gepflegte Wanderwege die Feld und Flur durchkreuzen. Ein ideales Abenteuer- und Jogging-Paradies !!!
Sonstige Angaben
Haben wir Ihr Interesse geweckt? Dann freuen wir uns auf Ihren Rückmeldung per Mail über den Button von IMMOSCOUT24 .
Wir bitten um Verständnis, dass Kontaktaufnahmen
ausschliesslich über das Kontaktformular von ImmoScout mit Ihrem Namen, Anschrift und Telefon-Nummer oder Ihre Daten über unsere e-mail-Kontaktadresse: behnke.gmbh@web.de bzw. an unsere oben angegebene Postanschrift zu stellen sind.
Hinweis: Anrufe sowie Anonyme Anfragen ohne Bekanntgabe von Namen und Anschrift-Daten des Interessenten werden nicht bearbeitet! Vorliegendes Angebot ist freibleibend und unverbindlich. Das Expose wurde mit bestem Wissen nach den Angaben des Verkäufers erstellt. Eine Haftung unsererseits für die Richtigkeit und Vollständigkeit dieser Angaben kann daher leider nicht übernommen werden. Individuelle Einzelbesichtigungstermine bzgl. dieses Objektes bitten wir rechtzeitig mit uns zu vereinbaren, damit eine seriöse und vertrauensvolle Beratung und Abwicklung dem Kunden gegenüber gewährleistet ist.
Aus Diskretionsgründen wird Ihnen die Objekt-Adresse erst nach Ihrem näheren Interesse der schriftlichen Kontaktaufnahme zu einem vereinbarten Gesamt-Besichtigungs-Termin mitgeteilt!
Zögern Sie nicht, kontaktieren Sie uns und vereinbaren Sie einen Besichtigungstermin, um dieses Potenzial zu entdecken und sich von den Möglichkeiten dieses Hauses zu überzeugen.
Grundriss
Souterrain-Konzept
>
>
Adresse
64560 Riedstadt
Interessante Orte
Preis- und Lageinformationen
Preistrend für Bestandsimmobilien in Riedstadt