In einem ruhigen Wohngebiet von Eppertshausen erwartet Sie ein außerordentlich gepflegtes Mehrfamilienhaus, das Ruhe, Raum und Substanz elegant verbindet.
Auf einem großzügigen Grundstück von ca. 944 m² erstrecken sich insgesamt ca. 275 m² Wohnfläche, verteilt auf drei eigenständige Wohneinheiten – jeweils mit Einbauküche, durchdachten Grundrissen und charmantem Ambiente.
Das Haus wurde fortlaufend modernisiert und präsentiert sich in einem sehr gepflegten, guten Zustand. Es wird leerstehend übergeben und ist somit unmittelbar bezugsbereit – ideal für Eigennutzer mit Platzbedarf, Mehrgenerationen oder als solide Kapitalanlage mit flexiblen Vermietungsperspektiven.
Der Außenbereich ist ein kleines Refugium: Ein liebevoll angelegter Garten mit Teich bildet das Herzstück, flankiert von einer einladenden Outdoor-Lounge sowie mehreren Terrassenflächen und Überdachungen – Orte, die den Tagesrhythmus begleiten, vom ersten Kaffee bis zum späten Sommerabend.
Eine Garage sowie mehrere Außenstellplätze am Haus ergänzen das Angebot und unterstreichen den praktischen Anspruch der Liegenschaft.
Eppertshausen steht für entspannte Nachbarschaft und kurze Wege: grün genug, um durchzuatmen, und zugleich im Rhein-Main-Gefüge gut angebunden. Hier wohnt man gelassen – und kommt trotzdem zügig überall hin. Dieses Haus vereint genau das, was heute zählt: gepflegte Substanz, stimmige Aufteilung und ein Garten, der mehr ist als Kulisse – er ist Lebensqualität.
Top-Gepflegtes Mehrfamilienhaus mit Garage in Eppertshausen – Großes Grundstück, großes Potenzial
64859 Eppertshausen
Die vollständige Adresse der Immobilie erhalten Sie vom Anbieter.
Auf Karte anzeigen
Die vollständige Adresse der Immobilie erhalten Sie vom Anbieter.
Finanzierungszertifikat
In nur zwei Minuten zu Ihrem persönlichen Finanzierungszertifkat.
Infos
| Haustyp | Mehrfamilienhaus |
|---|---|
| Etagenzahl | 2 |
| Wohnfläche ca. | 274 m2 |
| Nutzfläche | 120 m2 |
| Grundstücksfläche | 944 m2 |
| Zimmer | 12 |
| Schlafzimmer | 8 |
| Badezimmer | 3 |
| Garage/Stellplatz | Garage |
| Anzahl Garage/Stellplatz | 1 |
Kosten
| Kaufpreis |
764.000 € |
|---|---|
| Provision |
5,95 % inkl. MwSt. Die Provision ist nach Vertragsunterzeichnung verdient und fällig. |
Finanzierungsrechner:
Kaufpreis:
600.000 €
Eigenkapital:
600.000 €
Monatliche Rate
0 €
Effektiver Jahreszins
0 %
Sollzinsbindung
10 Jahre
Bausubstanz & Energieausweis
| Baujahr | 1960 |
|---|---|
| Objektzustand | Gepflegt |
| Heizungsart | Zentralheizung |
| Wesentliche Energieträger | Strom |
| Energieausweis | liegt vor |
| Energieausweistyp | Bedarfsausweis |
| Energieverbrauchskennwert | 147,9 kWh/(m²*a) |
| Energieeffizienzklasse | E |
147,9
kWh/(m²*a)
Energieeffizienzklasse E
- A+
- A
- B
- C
- D
- E
- F
- G
- H
- 0
- 25
- 50
- 75
- 100
- 125
- 150
- 175
- 200
- 225
- >250
Beschreibung des Objekts
Ausstattung
++ Aufstockung in 1991
++ Top-Gepflegt + Regelmäßig Modernisiert
z.B. - Badezimmer in 2012
- Kachelofen (Brunner) in 2024
- Fenster (Kunststoff, doppelverglast) in 1991
- Wohnungseingangstüren teilweise aus 2020
- Elektrisches Heizungssystem in 2012
- Einbauküchen in 2005, 2019 & teilweise ganz neue elektr. Geräte
++ Leerstehend & Einzugsbereit
++ Großzügige Aufteilung auf drei Ebenen
++ Weitläufiges Grundstück mit wundervoll angelegtem Garten
— Gartenhütte, Outdoor-Lounge, Hobby-(Abstell-)Lager, Terrassendecke am Teich, Holzlager, verschiedenen Überdachungen und vielem mehr..
++ 3 Einbauküchen, 3 Tageslichtbäder
++ 2 Balkone (im EG und im OG) in Richtung Garten
++ Vollunterkellert
Lage
Die Gemeinde Eppertshausen mit rund 6.400 Einwohnern liegt etwa 15 km nordöstlich von Darmstadt und rund 34 km südlich von Frankfurt am Main. Sie gehört zum Landkreis Darmstadt-Dieburg und verbindet ländliche Ruhe mit der Nähe zu den wirtschaftlich starken Zentren des Rhein-Main-Gebiets.
Die Immobilie befindet sich in einer sehr ruhigen und familienfreundlichen Lage. Das Umfeld ist geprägt von gepflegten Ein- und kleineren Mehrfamilienhäusern – ein Wohngebiet mit angenehmer Nachbarschaft und hoher Lebensqualität. Einrichtungen des täglichen Bedarfs wie Supermärkte, Bäckereien, Apotheken, Ärzte sowie Cafés und Restaurants sind bequem fußläufig erreichbar.
Eppertshausen bietet eine ausgewogene Infrastruktur mit mehreren Kindertagesstätten, einer Grundschule und ergänzenden Betreuungsangeboten – ideal für Familien. Ein aktives Vereinsleben, kulturelle Veranstaltungen und ein vielfältiges gastronomisches Angebot prägen das soziale Miteinander und verleihen dem Ort eine lebendige, zugleich bodenständige Atmosphäre.
Die Verkehrsanbindung ist hervorragend: Über die B45 und B486 sowie die Autobahnen A3, A5 und A661 sind umliegende Städte wie Darmstadt, Frankfurt, Offenbach und Aschaffenburg in etwa 25 bis 40 Minuten erreichbar. Der Bahnhof Eppertshausen bietet regelmäßige Regionalverbindungen Richtung Frankfurt und Dieburg und bindet den Ort optimal an das Netz des Rhein-Main-Verkehrsverbundes an – besonders attraktiv für Pendler.
Umgeben von abwechslungsreicher, naturnaher Landschaft verfügt Eppertshausen über einen hohen Freizeit- und Erholungswert. Spazier- und Radwege führen durch Felder und Wälder, etwa zum Naturschutzgebiet „Rallenteich“ oder in die idyllische Umgebung von Rödermark-Urberach.
Die Kombination aus Natur, Infrastruktur und guter Lage macht Eppertshausen zu einem attraktiven Wohnort für alle, die Ruhe, Komfort und Nähe zur Metropolregion schätzen.
Sonstige Angaben
Wichtiger Hinweis zum Geldwäschegesetz (GWG)! Gemäß nach § 2 Abs. 1 Nr. 14 und § 11 Abs. 1, 2 Geldwäschegesetz ist jeder Immobilienmakler verpflichtet, bei Kontaktaufnahme die Identität des Kunden festzustellen. Hierzu müssen von jedem Interessenten die persönlichen Daten sowie die Kontaktdaten aufgenommen und überprüft werden.
Bitte bringen Sie zur Besichtigung ein gültiges Ausweisdokument mit. Bei juristischen Personen und Personengesellschaften ist ein Handelsregisterauszug notwendig. Für weitere Informationen stehen wir Ihnen gern zur Verfügung.
Immobilienkontor42 KG hat die an den Kunden weitergegebenen Angaben nicht auf deren Vollständigkeit und Richtigkeit geprüft. Er hat die Angaben weitergegeben, die er vom Verkäufer oder Vermieter oder einem beauftragten Dritten erhalten hat. Es ist daher Aufgabe des Kunden, die Angaben zu überprüfen. Für die Richtigkeit der Angaben übernimmt Immobilienkontor42 KG keine Haftung. Die Haftung des Maklers ist auf grob fahrlässiges oder vorsätzliches Verhalten begrenzt.
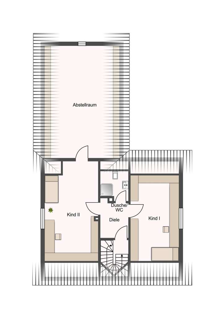
Grundriss
EG
>
>
OG
>
>
DG
>
>
UG
>
>
Adresse
64859 Eppertshausen
Interessante Orte
Preis- und Lageinformationen
Preistrend für Bestandsimmobilien in Eppertshausen