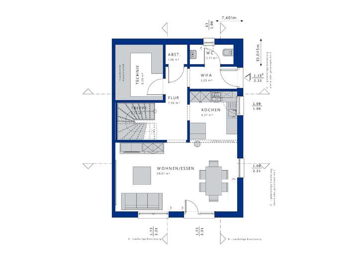
Das Bien-Zenker CELEBRATION 122 ist nicht nur ein Haus, sondern ein Raumwunder, das auf die persönlichen Wünsche und Vorstellungen seiner Bewohner abgestimmt wird. Mit einer großzügigen Wohnfläche von 172 m² und einer durchdachten Aufteilung auf zwei Etagen bietet dieses Fertighaus Platz für die ganze Familie. Im Erdgeschoss erwartet Sie ein offener Wohnbereich, der durch viel Licht und eine einladende Atmosphäre besticht. Hier können Sie unvergessliche Momente mit Ihren Liebsten verbringen. Im Obergeschoss befinden sich drei gemütliche Schlafzimmer, die Rückzugsmöglichkeiten bieten und für eine harmonische Privatsphäre sorgen. Das Badezimmer ist funktional und modern gestaltet, während die optionale Gestaltung eines dritten Geschosses Ihnen noch mehr Flexibilität und Raum für Ihre individuellen Ideen bietet.
Ein weiteres Highlight des CELEBRATION 122 ist die einladende Terrasse, die den Wohnraum nach außen erweitert und Ihnen die Möglichkeit gibt, entspannte Sommertage im Freien zu genießen. Die durchdachte Bauweise sorgt zudem für lichtdurchflutete Räume, die eine angenehme Wohnatmosphäre schaffen. Ob für gesellige Abende oder ruhige Momente, dieses Haus passt sich perfekt an Ihre Lebensweise an. Die verschiedenen Dachformen und Architekturdetails verleihen dem Haus einen einzigartigen Charakter und machen es zu einem echten Hingucker in der Nachbarschaft.
Die Ausbaustufe "Schlüsselfertig" garantiert Ihnen einen stressfreien Bauprozess. Bien-Zenker übernimmt für Sie den kompletten Hausbau samt Innenausbau - vom Fundament bis zur letzten Schraube. Sie müssen sich um nichts kümmern und können einfach einziehen, sobald alles fertig ist. Diese Rundum-Betreuung spart Ihnen Zeit und Nerven und lässt Sie die Vorfreude auf Ihr neues Zuhause in vollen Zügen genießen. Bei Bien-Zenker sind Sie in besten Händen, denn der Fokus liegt auf Ihrer Zufriedenheit und einem harmonischen Bauablauf.
Grundrisse und Abbildungen können Extras zeigen. Flächenangaben nach DIN 277.
Genau mein Haus: individuell und zukunftssicher
88138 Weißensberg
Die vollständige Adresse der Immobilie erhalten Sie vom Anbieter.
Auf Karte anzeigen
Die vollständige Adresse der Immobilie erhalten Sie vom Anbieter.
Finanzierungszertifikat
In nur zwei Minuten zu Ihrem persönlichen Finanzierungszertifkat.
Infos
| Etagenzahl | 2 |
|---|---|
| Wohnfläche ca. | 124 m2 |
| Nutzfläche | 10 m2 |
| Grundstücksfläche | 220 m2 |
| Zimmer | 4 |
| Schlafzimmer | 3 |
| Badezimmer | 1 |
Kosten
| Kaufpreis |
592.200 € |
|---|
Finanzierungsrechner:
Kaufpreis:
600.000 €
Eigenkapital:
600.000 €
Monatliche Rate
0 €
Effektiver Jahreszins
0 %
Sollzinsbindung
10 Jahre
Bausubstanz & Energieausweis
| Baujahr | unbekannt |
|---|---|
| Bauphase | Haus in Planung (projektiert) |
| Qualität der Austattung | Gehoben |
Beschreibung des Objekts
Ausstattung
Der Grundriss des CELEBRATION 122 ist durchdacht und optimal auf die Bedürfnisse von Familien ausgerichtet. Mit insgesamt vier Zimmern bietet Ihr zukünftiges Zuhause ausreichend Platz für individuelle Entfaltung. Die drei Schlafzimmer im Obergeschoss sind ideal für eine Familie, während der offene Wohnbereich im Erdgeschoss zum Verweilen und Kommunizieren einlädt. Hier entsteht eine harmonische Verbindung zwischen den einzelnen Räumen, die sowohl für gesellige Abende als auch für entspannende Rückzüge sorgt.
Besonders hervorzuheben sind die lichtdurchfluteten Räume, die dank großer Fensterfronten eine angenehme Atmosphäre schaffen. Die Terrasse eröffnet Ihnen zudem die Möglichkeit, die Natur direkt vor der Haustür zu genießen. Ob für ein gemütliches Frühstück im Freien oder gesellige Grillabende mit Freunden - dieser Außenbereich wird zu einem beliebten Rückzugsort. Zusätzlich sorgt ein praktischer Abstellraum für Ordnung und Stauraum, während Sie sich in den hellen Wohnräumen entspannen können.
Mit der Ausbaustufe "Schlüsselfertig" genießen Sie den Komfort, dass alles für Sie erledigt wird. Von der ersten Planung bis zum letzten Schliff im Innenausbau wird Ihr neues Zuhause nach Ihren Vorstellungen gestaltet. Im Preis sind sämtliche Leistungen enthalten, sodass Sie sich ganz auf das Einrichten und Gestalten Ihres neuen Heims konzentrieren können. Diese stressfreie Herangehensweise ermöglicht es Ihnen, die Vorfreude auf Ihr neues Zuhause in vollen Zügen zu genießen, ohne sich um Bauangelegenheiten kümmern zu müssen.
Lage
Weißensberg bietet Ihnen eine hervorragende Lebensqualität mit einer Vielzahl von Möglichkeiten für Bildung, Gesundheit, Einkauf und Freizeit. In unmittelbarer Nähe finden Sie mehrere Schulen und Kindergärten, die eine solide Bildung für Ihre Kinder gewährleisten. Auch medizinische Einrichtungen sind schnell erreichbar, sodass Sie im Bedarfsfall auf eine gute Gesundheitsversorgung zählen können.
Das Einkaufszentrum in der Umgebung hält ein breites Angebot an Geschäften und Dienstleistern für Sie bereit. Von Supermärkten bis hin zu Boutiquen - alles ist bequem in kurzer Zeit zu erreichen. Die Freizeitmöglichkeiten sind ebenso vielfältig: Ob Sie Spaziergänge in der Natur, Sport oder kulturelle Veranstaltungen bevorzugen, hier ist für jeden Geschmack etwas dabei.
Die Verkehrsanbindung ist optimal, mit einem gut ausgebauten öffentlichen Nahverkehr und der Nähe zur Autobahn. So gelangen Sie schnell und unkompliziert in die umliegenden Städte und Regionen. Diese perfekte Kombination aus ruhigem Wohnen und guter Erreichbarkeit macht Weißensberg zu einem idealen Standort für Ihr neues Zuhause.
Sonstige Angaben
Ich bin seit über 20 Jahren im Neubau- und Projektgeschäft tätig und durfte in dieser Zeit zahlreiche Bauherren persönlich auf dem Weg zu ihrem neuen Zuhause begleiten. Meine Erfahrung und individuelle Betreuung stehen dabei stets im Mittelpunkt.
Bien-Zenker blickt auf eine über 100-jährige Unternehmensgeschichte zurück und steht seit Generationen für Qualität, Innovation und nachhaltigen Hausbau.
Bei Fragen oder zur Vereinbarung eines persönlichen Beratungstermins stehe ich Ihnen jederzeit gerne per E-Mail oder telefonisch zur Verfügung. Weitere Informationen finden Sie auch auf der Homepage www.bien-zenker.de
.
Weitere Dokumente
LageplanAdresse
88138 Weißensberg
Interessante Orte
Preis- und Lageinformationen
Preistrend für Bestandsimmobilien in Weißensberg