Noch auf der Suche nach einem Haus für die ganze Familie im Berliner Umland?
Dann haben wir genau das Richtige für Sie!
Dieses gepflegte Einfamilienhaus aus dem Jahr 2001 bietet mit rund 139 m² Wohnfläche und 4,5 Zimmern ein durchdachtes Raumkonzept, das sowohl für Familien als auch für Paare bestens geeignet ist. Die Immobilie wurde fortlaufend modernisiert und präsentiert sich heute in einem zeitgemäßen und äußerst gepflegten Zustand. Ein heller Wohn- und Essbereich, eine moderne Küche, zwei voll ausgestattete Bäder, ein gepflegter Garten und die ruhige Lage in Brieselang machen dieses Haus zu einem Zuhause zum Wohlfühlen.
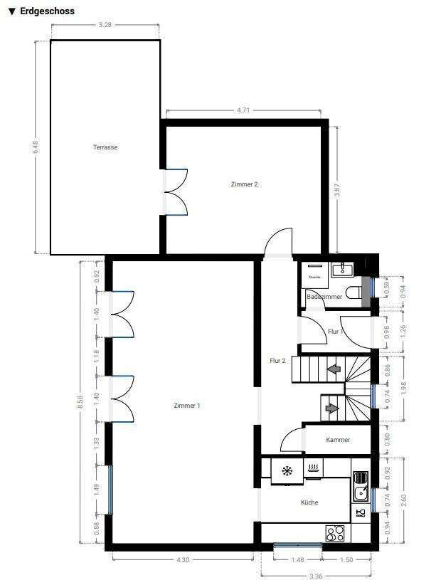
Schon der Eingangsbereich überzeugt mit einem praktischen Windfang, der zuverlässig vor Kälte schützt und für eine klare Trennung zwischen Innen- und Außenbereich sorgt. Herzstück des Hauses ist der großzügige, lichtdurchflutete Wohn- und Essbereich mit direktem Zugang zur Terrasse und zum Garten. Die offene Raumgestaltung schafft ein angenehmes Wohngefühl und verbindet den Wohnbereich nahtlos mit der Küche.
Die angrenzende, moderne Einbauküche wurde erst 2022 erneuert und fügt sich mit hochwertigen Geräten und stilvollem Design perfekt in das Gesamtkonzept ein. Ebenfalls 2022 wurde das Badezimmer im Erdgeschoss umfassend modernisiert – es verfügt über eine bodentiefe Dusche, elegante Fliesen und zeitgemäße Sanitärausstattung.
Besonders angenehm: Das Schlafzimmer im Erdgeschoss ermöglicht Wohnen auf einer Ebene – eine wertvolle Option für späte
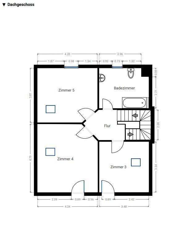
Die drei Zimmer im Dachgeschoss bieten vielfältige Nutzungsmöglichkeiten. Zwei vollwertige, helle Zimmer eignen sich ideal als Kinderzimmer und bieten ausreichend Platz zum Spielen, Lernen oder Zurückziehen. Das kleinere Zimmer lässt sich hervorragend als Arbeitszimmer, Gästezimmer oder zusätzliches Kinderzimmer nutzen – je nach individuellem Bedarf.
Alle Räume im Dachgeschoss sind mit pflegeleichtem Laminatboden ausgestattet und freundlich gestrichen. Das großzügige Badezimmer mit Badewanne runden das Raumangebot im Dachgeschoss ab – es bietet viel Platz und Potenzial für eine moderne Neugestaltung ganz nach eigenen Vorstellungen.
Der Dachboden bietet praktischen Stauraum für alles, was nicht täglich benötigt wird – die Einschubtreppe bedarf derzeit jedoch einer Reparatur.
Wir haben Ihr Interessen geweckt? Dann fragen Sie jetzt das Exposé an.
Wir freuen uns, Sie im Zuge einer Besichtigung persönlich kennenzulernen.
Neuwertige Heizung + Solaranlage - modernes Wohnen vor den Toren Berlins
14656 Brieselang
Die vollständige Adresse der Immobilie erhalten Sie vom Anbieter.
Auf Karte anzeigen
Die vollständige Adresse der Immobilie erhalten Sie vom Anbieter.
Finanzierungszertifikat
In nur zwei Minuten zu Ihrem persönlichen Finanzierungszertifkat.
Infos
| Haustyp | Einfamilienhaus |
|---|---|
| Etagenzahl | 1 |
| Wohnfläche ca. | 139 m2 |
| Grundstücksfläche | 412 m2 |
| Bezugsfrei ab | sofort |
| Zimmer | 4,5 |
| Schlafzimmer | 4 |
| Badezimmer | 2 |
Kosten
| Kaufpreis |
450.000 € |
|---|---|
| Provision |
3,57 % inkl. 19 % MwSt. Der Immobilienmakler ist im beidseitigen Interesse für den Verkäufer und den Kaufinteressenten tätig (Doppeltätigkeit). Die Käuferprovision beträgt 3,57 % inkl. 19 % MwSt. und ist verdient und fällig mit Beurkundung des notariellen Kaufvertrages. Der Immobilienmakler hat ebenfalls einen provisionspflichtigen Maklervertrag mit dem Verkäufer in gleichlautender Höhe abgeschlossen. |
Finanzierungsrechner:
Kaufpreis:
600.000 €
Eigenkapital:
600.000 €
Monatliche Rate
0 €
Effektiver Jahreszins
0 %
Sollzinsbindung
10 Jahre
Bausubstanz & Energieausweis
| Baujahr | 2001 |
|---|---|
| Letzte Sanierung | 2023 |
| Objektzustand | Modernisiert |
| Wesentliche Energieträger | Gas |
| Energieausweis | liegt vor |
| Energieausweistyp | Verbrauchsausweis |
| Energieverbrauchskennwert | 122,9 kWh/(m²*a) |
| Energieeffizienzklasse | D |
122,9
kWh/(m²*a)
Energieeffizienzklasse D
- A+
- A
- B
- C
- D
- E
- F
- G
- H
- 0
- 25
- 50
- 75
- 100
- 125
- 150
- 175
- 200
- 225
- >250
Beschreibung des Objekts
Ausstattung
Das Haus wurde fortlaufend modernisierte und befindet sich in einem zeitgemäßen Zustand.
Lage
Diese attraktive Immobilie befindet in der Gemeinde Brieselang im Havelland und zeichnet sich durch eine naturnahe und dennoch verkehrsgünstig Lage aus. Brieselang kombiniert eine ruhige Wohnatmosphäre mit einer hervorragenden Anbindung an die Berliner City.
Die direkte Erreichbarkeit an Berlin erfolgt bequem über die Regionalbahn, die Sie über den Bahnhof Spandau direkt in die Berliner City bringt. Zusätzlich profitiert Brieselang von einer optimalen Anbindung an den westlichen Berliner Ring, der eine schnelle Erreichbarkeit der umliegenden Regionen sowie die großen Autobahnen nach Süd, Nord und West ermöglicht.
Brieselang hat sich in den letzten Jahren sehr positiv entwickelt - Einkaufsmöglichkeiten, Schulen und Freizeitangebote sind in unmittelbarer Nähe vorhanden.
Wer es etwas größer mag, fahrt ein paar Minuten weiter in das beliebte B5 Outlet-Center oder den Havelpark.
Genießen Sie die Vorzüge der Natur und die Nähe zur pulsierenden Metropole – Brieselang ist der ideale Ort für alle, die das Beste aus beiden Welten suchen.
Sonstige Angaben
Unser Internetauftritt stellt lediglich eine erste Information für Sie dar. Diese Form haben wir bewusst gewählt, um Ihnen zunächst einen kurzen Überblick der wichtigsten Eckdaten zu vermitteln. Sollten Sie Interesse an weiteren Informationen zu dieser Immobilie haben, fordern Sie einfach unser aussagekräftiges Exposé ab, welches Ihnen neben anschaulichen Bildern auch weitere wichtige Daten und Fakten zu diesem Angebot liefert.
Bitte haben Sie Verständnis dafür, dass wir Ihre Anfrage nur bei Übermittlung Ihrer VOLLSTÄNDIGEN Kontakt-/ Adressdaten schnellstmöglich beantworten können und Ihnen erst im Rahmen unserer Exposézusendung die genaue Objektadresse benennen. Für einen gewünschten Besichtigungstermin stehen wir Ihnen bei weiterem Interesse dann selbstverständlich gerne zur Verfügung.
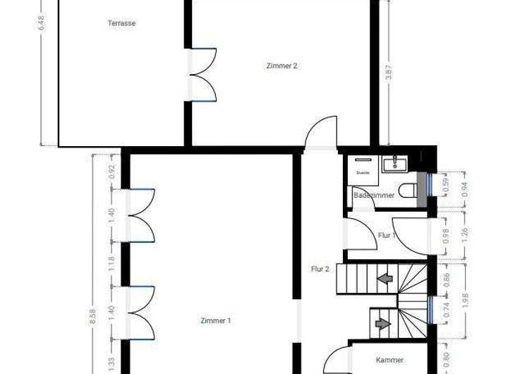
Grundriss
Grundriss EG
>
>
Grundriss DG
>
>
Adresse
14656 Brieselang
Interessante Orte
Preis- und Lageinformationen
Preistrend für Bestandsimmobilien in Brieselang