Reihenmittelhaus in bester Wohnlage in Hattersheim.
Sehr heller Wohn. -Essbereich mit 50 m² und großem Kamin.
Ruhig gelegen in einer Sackgasse.
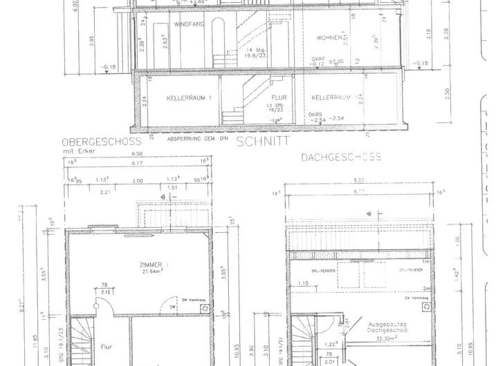
4 Schlafzimmer, das Dachgeschoss wurde 2012 umgebaut.
Supermärkte, Ärzte Schulen, Kindergarten zu Fuss in unter 10 min. erreichbar.
Flughafen ca. 20 min. mit dem Auto.
Zwei Bäder plus Gäste WC.
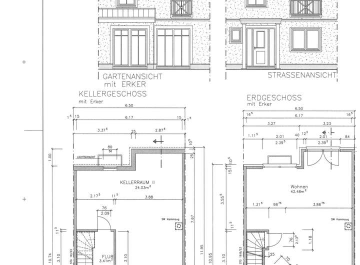
Über 60 m² Kellerraum.
Erdgeschoss und Keller Fliesen, OG und DG Parkett.
EG mit Fussbodenheizung, OG und DG Heizkörper
Schöner eingewachsener Garten und nette Nachbarschaft runden das Profil ab.
Finanzierungszertifikat
In nur zwei Minuten zu Ihrem persönlichen Finanzierungszertifkat.
Infos
| Haustyp | Reihenmittelhaus |
|---|---|
| Etagenzahl | 3 |
| Wohnfläche ca. | 155 m2 |
| Nutzfläche | 62 m2 |
| Grundstücksfläche | 175 m2 |
| Bezugsfrei ab | 1.7.2026 |
| Zimmer | 5 |
| Schlafzimmer | 4 |
| Badezimmer | 3 |
| Garage/Stellplatz | Außenstellplatz |
| Anzahl Garage/Stellplatz | 2 |
Kosten
| Kaufpreis |
795.000 € |
|---|---|
| Provision | Nein |
Finanzierungsrechner:
Kaufpreis:
600.000 €
Eigenkapital:
600.000 €
Monatliche Rate
0 €
Effektiver Jahreszins
0 %
Sollzinsbindung
10 Jahre
Bausubstanz & Energieausweis
| Baujahr | 2005 |
|---|---|
| Letzte Sanierung | 2012 |
| Bauphase | Haus fertig gestellt |
| Objektzustand | Neuwertig |
| Qualität der Austattung | Gehoben |
| Heizungsart | Fernwärme |
| Wesentliche Energieträger | Gas |
| Energieausweis | liegt vor |
| Energieausweistyp | Verbrauchsausweis |
| Energieverbrauchskennwert | 68,9 kWh/(m²*a) |
| Energieeffizienzklasse | B |
68,9
kWh/(m²*a)
Energieeffizienzklasse B
- A+
- A
- B
- C
- D
- E
- F
- G
- H
- 0
- 25
- 50
- 75
- 100
- 125
- 150
- 175
- 200
- 225
- >250
Beschreibung des Objekts
Lage
Hattersheim am Main ist eine charmante Stadt mit guter Infrastruktur. Die Lage bietet eine gute Anbindung an öffentliche Verkehrsmittel sowie Einkaufsmöglichkeiten für den täglichen Bedarf. Nahegelegene Grünflächen und Freizeitmöglichkeiten laden zur Erholung ein. Die gute Verkehrsanbindung ermöglicht schnelle Wege in die umliegenden Städte und Metropolregionen.
Grundriss
OGDG
>
>
Adresse
Ida-Kerkovius-Platz 17, 65795 Hattersheim am Main
Interessante Orte
Preis- und Lageinformationen
Preistrend für Bestandsimmobilien in Hattersheim am Main