Wenn Du Bauherr werden möchtest und handwerklich geschickt bist, bietet unser Ausbauhaus die ideale Lösung für Dich. Mit einem klaren Fokus auf Eigenverantwortung und Kostenkontrolle kannst Du dein Traumhaus nach deinen Vorstellungen gestalten. Unser Konzept richtet sich an Macher, die bereit sind, sich aktiv einzubringen und die Herausforderungen des Hausbaus anzunehmen. Nutze deine Fähigkeiten, um ein individuelles Zuhause zu schaffen, das sowohl funktional als auch ästhetisch überzeugt. Investiere deine Energie und Kreativität, um aus einem soliden Rohbau ein einzigartiges Wohnambiente zu schaffen.
KfW Förderung schon ab Energiestandard 55 möglich, bis 100.000,-€ , zu sehr günstigen Konditionen
49762 Lathen
Die vollständige Adresse der Immobilie erhalten Sie vom Anbieter.
Auf Karte anzeigen
Die vollständige Adresse der Immobilie erhalten Sie vom Anbieter.
Finanzierungszertifikat
In nur zwei Minuten zu Ihrem persönlichen Finanzierungszertifkat.
Infos
| Haustyp | Einfamilienhaus |
|---|---|
| Wohnfläche ca. | 140 m2 |
| Nutzfläche | 0 m2 |
| Grundstücksfläche | 610 m2 |
| Zimmer | 4 |
| Schlafzimmer | 3 |
| Badezimmer | 1 |
| Anzahl Garage/Stellplatz | 0 |
Kosten
| Kaufpreis |
216.000 € |
|---|---|
| Provision | Nein |
Finanzierungsrechner:
Kaufpreis:
600.000 €
Eigenkapital:
600.000 €
Monatliche Rate
0 €
Effektiver Jahreszins
0 %
Sollzinsbindung
10 Jahre
Bausubstanz & Energieausweis
| Baujahr | 2026 |
|---|---|
| Bauphase | Haus in Planung (projektiert) |
| Qualität der Austattung | Gehoben |
| Heizungsart | Wärmepumpe |
Beschreibung des Objekts
Ausstattung
THINK WHITE – Do it yourself.
- Fertige Gebäudehülle – du entscheidest über den Innenausbau
- Maximale Individualität – für kreative Köpfe & Macher
- Ideal für Eigenleistung – handwerkliches Geschick spart bares Geld
- Optimierte Grundrisse – smarte Wohnkonzepte für flexible Gestaltung
- Hochwertige Bauweise – modern, nachhaltig & energieeffizient
- Zugang zu staatlichen Förderprogrammen – clever finanzieren & sparen
Für alle, die ihr Zuhause selbst gestalten wollen!
Lage
Lathen Neubaugebiet
Sonstige Angaben
5 Zimmer + offener Wohn-/Essbereich
Flexible Grundrisse für Eure Lebenssituation
Energiesparend & nachhaltig (Alle KfW-Standards möglich)
Kurze Bauzeit
Festpreisgarantie
Persönliche Betreuung von Anfang an
Jetzt Beratungstermin sichern!
Lasst Euch unverbindlich beraten und entdeckt, wie einfach der Weg in Euer Eigenheim sein kann.
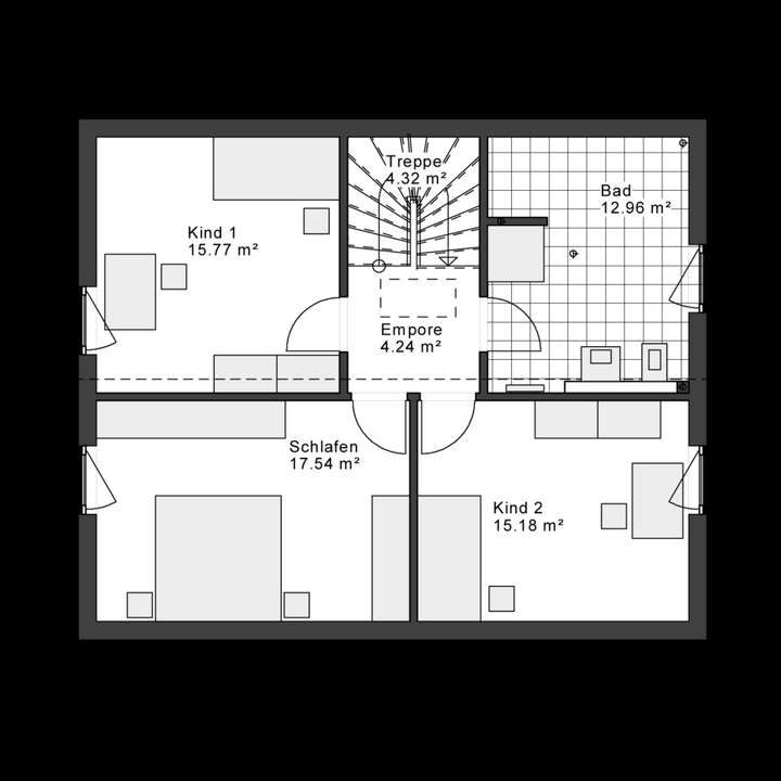
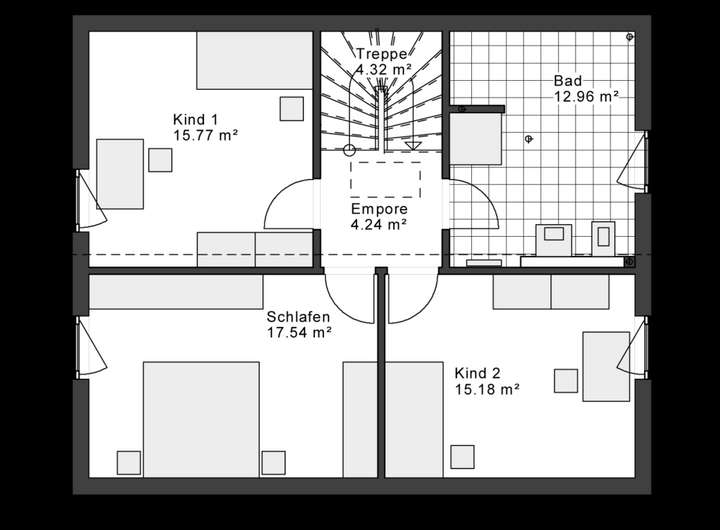
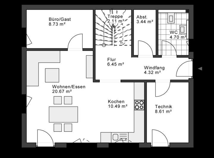
Grundriss
Grundriss EG
>
>
Grundriss OG
>
>
Adresse
49762 Lathen
Interessante Orte
Preis- und Lageinformationen
Preistrend für Bestandsimmobilien in Lathen