Diese Immobilie befindet sich in einer bevorzugten ruhigen Lage in Reinbek. Das Grundstück umfasst ca. 1.372 m² und ist aktuell mit einem kleinen Bungalow bebaut. Der Bungalow wurde 1957 erbaut und 1962 erweitert. Er bietet derzeit eine Wohnfläche von ca. 79 m² zuzüglich Teilkeller. Für die weitere Nutzung des vorhandenen Hauses sind umfangreiche Modernisierungsarbeiten erforderlich.
Das Grundstück ist gemäß §34 BauGB (sognanntes "Nachbarschaftsbaurecht") bebaubar. In der näheren Umgebung befinden sich Ein- bis Zweifamilienhäuser in eingeschossiger Bauweise. Auch die Bebauung mit zwei Gebäuden ist hier vorzufinden. Eine Bauvoranfrage für die Bebauung ist käuferseitig zu stellen.
Vereinbaren Sie gerne einen Besichtigungstermin, um sich von der schönen Lage dieser Immobilie zu überzeugen.
Baugrundstück mit Altbestand!
21465 Reinbek
Die vollständige Adresse der Immobilie erhalten Sie vom Anbieter.
Auf Karte anzeigen
Die vollständige Adresse der Immobilie erhalten Sie vom Anbieter.
Finanzierungszertifikat
In nur zwei Minuten zu Ihrem persönlichen Finanzierungszertifkat.
Infos
| Vermarktungsart | Kaufen |
|---|---|
| Grundstücksfläche | 1.372 m2 |
| Erschließung | Erschlossen |
Kosten
| Miete pro Jahr |
498.000 € |
|---|---|
| Provision |
3,57 % inkl. ges. MwSt. |
Finanzierungsrechner:
Kaufpreis:
600.000 €
Eigenkapital:
600.000 €
Monatliche Rate
0 €
Effektiver Jahreszins
0 %
Sollzinsbindung
10 Jahre
Beschreibung des Objekts
Lage
Reinbek, eine charmante Mittelstadt im Süden Schleswig-Holsteins, bietet eine ideale Balance zwischen Ruhe und Anbindung an die Metropolregion Hamburg. Unser Bungalow befindet sich nur 1,7 km nordöstlich vom Stadtzentrum. In der Nähe finden Sie eine Vielzahl an Einkaufsmöglichkeiten, Bildungseinrichtungen und Gesundheitsdienstleistungen, die alle mit dem Fahrrad oder zu Fuß erreichbar sind. Darüber hinaus bietet die Umgebung verschiedene Freizeitaktivitäten, wie Parks, Theater, Kunstzentrum, Fitnessstudios und gastronomische Angebote. Golfplätze in benachbarten Glinde und in Wentorf bei Hamburg sowie ein reichhaltiges Angebot für Reitsportfreunde sind ebenso vorhanden wie ein großes Angebot an Rad- und Wanderwegen. Mit einer Bushaltestelle in 600 m Entfernung und einer Autobahnauffahrt in 4,5 km Entfernung ist unsere Immobilie auch verkehrstechnisch gut angebunden. Die nächste S-Bahnstation ist in wenigen Minuten zu erreichen.
Sonstige Angaben
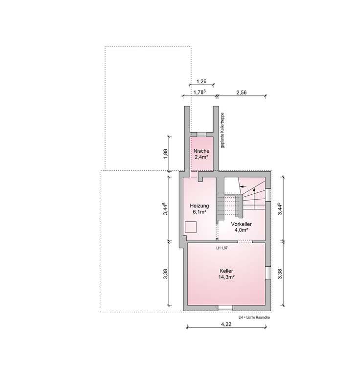
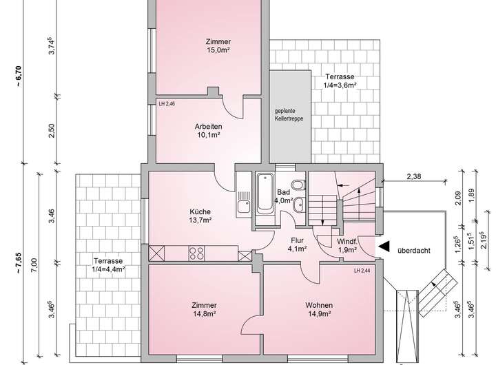
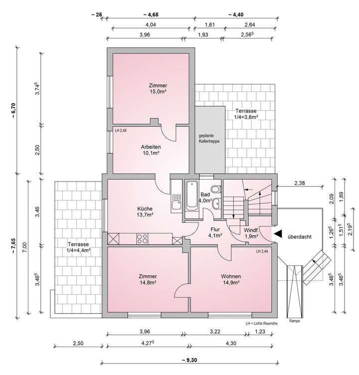
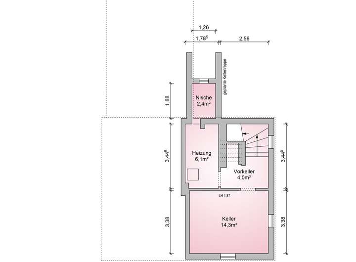
Die Grundrisse wurden von uns gefertigt. Sie dienen lediglich der Orientierung. Für die Richtigkeit der Anordnung der Räume und der Maße übernehmen wir keine Gewähr.
Grundriss
Grundriss EG
>
>
Grundriss KG
>
>