Zum Verkauf steht eine Projektgesellschaft, die wahlweise im Rahmen eines Share Deals oder eines Asset Deals übernommen werden kann.
Bestandteil der Gesellschaft ist ein rund 1.327 m² großes Grundstück mit bestehendem Altbestand in attraktiver Lage.
Für das Grundstück liegt bereits ein positiver Vorbescheid vor, die rechtskräftige Baugenehmigung wird in Kürze erwartet.
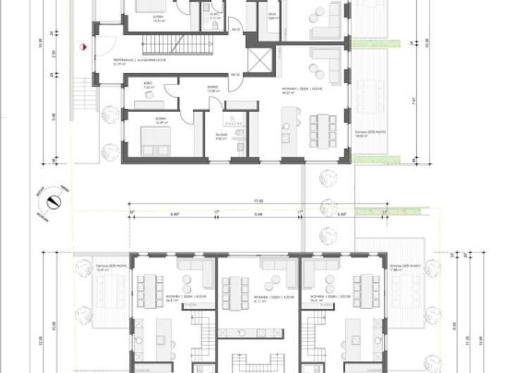
Geplant ist die Entwicklung eines modernen Wohnbauprojekts mit einer erzielbaren Wohnfläche von ca. 1.062 m² sowie zusätzlichen Zubehörflächen von rund 500 m².
Das Konzept sieht ein 6-Parteien-Mehrfamilienhaus und drei Townhouses mit einer gemeinsamen Tiefgarage auf über 300 m² Fläche vor, die insgesamt 11 Stellplätze umfasst.
Besonders hervorzuheben ist die Möglichkeit, die entsprechenden Aufteilungen insbesondere die beiden Wohnungen im Dachgeschoss zu einer großzügigen Penthouse-Einheit mit ca. 180 m² Wohnfläche zusammenzulegen. Ideal für bereits vorliegende Interessenten mit gehobenem Anspruch zur exklusiven Vermarktung.
Ergänzt wird das Vorhaben durch die Errichtung von drei Reihenhäusern mit separaten Eingängen und eigenem Gartenanteil, was insbesondere für Familien eine attraktive Wohnform darstellt.
Die bereits vorliegende planungsrechtliche Zustimmung sowie die klare bauliche Struktur ermöglichen einen zeitnahen Projektstart. Die Gesellschaft bietet somit eine hervorragende Grundlage für Investoren oder Bauträger, die ein modernes, renditestarkes Wohnbauprojekt in marktfähiger Lage realisieren möchten – mit flexibler Erwerbsstruktur und solidem Wertentwicklungspotenzial.
Bei der Projektplanung ist der bestehende Altbestand auf dem Grundstück zu berücksichtigen, der vor Baubeginn fachgerecht zurückgebaut und entsorgt werden muss. Der Abriss ist im Gesamtkonzept eingeplant, sodass ein planmäßiger Baubeginn ab dem Jahr 2025 möglich ist.
Wohnbauprojekt in Top-Lage: 1.062m² geplante Wohnfläche in Meerbusch-Büderich
40667 Meerbusch
Die vollständige Adresse der Immobilie erhalten Sie vom Anbieter.
Auf Karte anzeigen
Die vollständige Adresse der Immobilie erhalten Sie vom Anbieter.
Finanzierungszertifikat
In nur zwei Minuten zu Ihrem persönlichen Finanzierungszertifkat.
Infos
| Vermarktungsart | Kaufen |
|---|---|
| Grundstücksfläche | 1.330 m2 |
Kosten
| Miete pro Jahr |
1.690.000 € |
|---|---|
| Provision |
3,57% inkl. ges. MwSt. vom beurkundeten Kaufpreis |
Finanzierungsrechner:
Kaufpreis:
600.000 €
Eigenkapital:
600.000 €
Monatliche Rate
0 €
Effektiver Jahreszins
0 %
Sollzinsbindung
10 Jahre
Beschreibung des Objekts
Lage
Die angebotene Immobilie liegt in einer sehr begehrten Wohnlage von Meerbusch-Büderich.
Unweit finden Sie die bekannte "Dorfstrasse" und das "Deutsche Eck" mit sämtlichen Geschäften für den täglichen Bedarf, einer abwechslungsreichen Gastronomie und einer umfassenden medizinischen Versorgung.
Der Stadtteil "Büderich" - bekannt durch seine Kapelle und den Dyckhof - ist eine der begehrtesten Wohnlagen von Meerbusch. Familien schätzen die unmittelbare Nähe zum Matarè Gymnasium und zur Maria Montessori Gesamtschule, die beide einen sehr guten Ruf genießen. Zudem grenzt der Stadtteil an die Rheinauen und bietet somit neben dem Erholungswert zahlreiche Sport- und Freizeitmöglichkeiten. Mehrere Reitställe, der Meerbuscher Wald und 2 namhafte Golfplätze finden Sie hier ebenfalls.
Meerbusch-Büderich grenzt unmittelbar an Düsseldorf und verfügt neben der sehr guten und autarken Infrastruktur über eine gute öffentliche Verkehrsanbindung zur Landeshauptstadt Düsseldorf, deren Innenstadt in ca. 15 Minuten zu erreichen ist. Auch der Internationale Flughafen und das Messegelände sind ähnlich schnell erreichbar, die Anbindung an die Autobahnen A 52 / A57 und A 44 ist vorbildlich.
Sonstige Angaben
Gerne senden wir Ihnen ein ausführliches Exposé sowie weiteren Informationen zu und/oder vereinbaren einen Besichtigungstermin mit Ihnen.
Das Team von Fohrer-Immobilien freut sich auf Ihren Anruf.
Tel.: 02132 - 13 69 0
Weitere interessante Angebote finden Sie auf unserer Homepage: http://www.fohrer-immobilien.de/