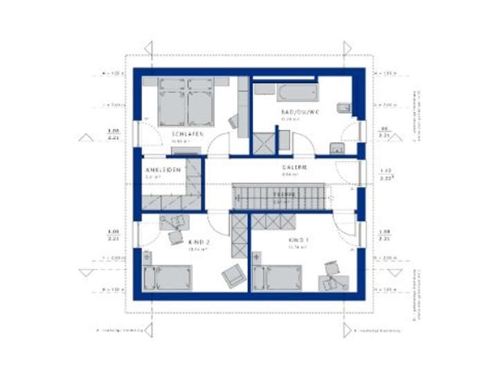
Mit seinem eleganten, unaufdringlichen Erscheinungsbild passt das EDITION 145 sowohl in ländliche als auch in urbane Wohngebiete ein. Das Innere des Hauses überzeugt mit einem durchdachten Raumkonzept und jeder Menge Wohnkomfort. Vom offenen Wohn-, Ess- und Kochbereich im Erdgeschoss bis hin zu den gemütlichen Privaträumen im Obergeschoss: Hier findet garantiert jeder Bewohner seinen persönlichen Lieblingsplatz. Ergänzt wird das Raumangebot von einem hellen Homeoffice, das optimale Bedingungen für konzentriertes Arbeiten schafft. Dieses Fertighaus ist nicht nur ein Ort zum Leben, sondern ein Raum für Ihre Träume und Vorstellungen. Der großzügige Grundriss mit 145 m² Wohnfläche und 6 Zimmern bietet genügend Platz für die ganze Familie. Die drei Schlafzimmer sind ideal für erholsame Nächte und das Badezimmer punktet mit Funktionalität und Stil. Die durchdachte Aufteilung sorgt für Privatsphäre sowie harmonische Gemeinschaftsbereiche und schafft eine Atmosphäre, in der sich jeder wohlfühlt.
Das Angebot beinhaltet eine umfassende Ausbaustufe, in der wir den kompletten Hausbau samt Innenausbau für Sie übernehmen - vom Rohbau bis zur letzten Fliese. Dabei werden alle Anforderungen des staatlichen Qualitätssiegels für Nachhaltigkeit erfüllt. Damit profitieren Sie nicht nur von maximalem Komfort, sondern sichern sich auch attraktive Förderungen über die KfW. Dies bedeutet für Sie eine stressfreie Bauphase, in der Sie sich auf Ihre Wünsche konzentrieren können, während wir alles für Sie planen und umsetzen. So wird Ihr Traumhaus nicht nur Realität, sondern auch ein Ort, an dem Sie langfristig glücklich wohnen können.
Bei Bien-Zenker ist es nie nur »Haus.« Es ist Zuhause, es ist Ankommen, es ist Familie. Bien-Zenker, das sind 80.000 gebaute Häuser, mehr als 700 Mitarbeitende und über 115 Jahre Erfolgsgeschichte. Der Pionier des Fertighauses mit Sitz im hessischen Schlüchtern zählt zu den größten und erfahrensten Fertighausanbietern Deutschlands. Dank Know-how, Leidenschaft und Einfühlungsvermögen wird jede Baufamilie individuell und kompetent beraten und unterstützt - bis sie den Schlüssel in die Tür des eigenen Heims stecken können. Mit wohngesunden Materialien und zukunftsweisenden Standards ist nicht nur jedes Bien-Zenker Haus für die Zukunft gerüstet, sondern auch jeder Bauherr.
Grundrisse und Abbildungen können Extras zeigen. Flächenangaben nach DIN 277.
Bien-Zenker EDITION 145 - Ihr individuelles Zuhause in Celle
29229 Celle
Die vollständige Adresse der Immobilie erhalten Sie vom Anbieter.
Auf Karte anzeigen
Die vollständige Adresse der Immobilie erhalten Sie vom Anbieter.
Finanzierungszertifikat
In nur zwei Minuten zu Ihrem persönlichen Finanzierungszertifkat.
Infos
| Haustyp | Einfamilienhaus |
|---|---|
| Etagenzahl | 2 |
| Wohnfläche ca. | 145 m2 |
| Grundstücksfläche | 604 m2 |
| Zimmer | 6 |
| Schlafzimmer | 3 |
| Badezimmer | 1 |
Kosten
| Kaufpreis |
499.345 € |
|---|
Finanzierungsrechner:
Kaufpreis:
600.000 €
Eigenkapital:
600.000 €
Monatliche Rate
0 €
Effektiver Jahreszins
0 %
Sollzinsbindung
10 Jahre
Bausubstanz & Energieausweis
| Baujahr | 2026 |
|---|---|
| Qualität der Austattung | Gehoben |
| Heizungsart | Wärmepumpe |
Beschreibung des Objekts
Ausstattung
Die Aufteilung des EDITION 145 ermöglicht es Ihnen, Ihr Zuhause ganz nach Ihren Bedürfnissen zu gestalten. Mit 6 Zimmern, darunter 3 großzügige Schlafzimmer, bietet dieses Haus ausreichend Raum für Familien und Freunde. Der offene Wohn-, Ess- und Kochbereich im Erdgeschoss ist das Herzstück Ihres neuen Zuhauses, das nicht nur für gesellige Abende, sondern auch für ruhige Momente einlädt. Die durchdachte Raumaufteilung schafft eine harmonische Verbindung zwischen den verschiedenen Bereichen und sorgt gleichzeitig für Rückzugsmöglichkeiten, die Ihnen und Ihrer Familie Privatsphäre bieten.
Besonders hervorzuheben sind die lichtdurchfluteten Räume, die eine angenehme Atmosphäre schaffen und die Verbindung zur Natur unterstreichen. Ein zusätzliches Highlight ist das helle Homeoffice, das Ihnen die Möglichkeit gibt, Arbeit und Privatleben flexibel zu gestalten. Genießen Sie die frische Luft auf der Terrasse oder im Garten, die im großzügigen Grundstück von 558 m² viel Platz für Ihre persönlichen Gestaltungsideen bieten. Ob Spielplatz für die Kinder, Garten für die Hobbygärtner oder einfach ein Ort der Entspannung - hier sind Ihrer Fantasie keine Grenzen gesetzt.
Die Ausbaustufe "schlüsselfertig" garantiert Ihnen eine stressfreie Bauphase. Sie können sich zurücklehnen, während wir den gesamten Bauprozess für Sie übernehmen, bis hin zur letzten Fliese. Im Preis sind alle notwendigen Arbeiten enthalten, sodass Sie von einem Rundum-Service profitieren, der keine Wünsche offenlässt. Durch die Erfüllung der Anforderungen des staatlichen Qualitätssiegels für Nachhaltigkeit sichern Sie sich nicht nur ein modernes, sondern auch ein zukunftssicheres Zuhause. So können Sie sorgenfrei in Ihr neues Leben starten und sich auf das Wesentliche konzentrieren - Ihr neues Zuhause.
Lage
Scheuen bietet Ihnen eine ideale Lebensqualität mit zahlreichen Möglichkeiten für Bildung, Gesundheit, Einkauf und Freizeit. In der Umgebung finden Sie Kindergärten, Schulen und eine Vielzahl von Sporteinrichtungen, die eine hervorragende Betreuung und Ausbildung für Ihre Kinder garantieren.
Darüber hinaus profitieren Sie von einer guten Anbindung an den öffentlichen Personennahverkehr. Die Busverbindungen ermöglichen Ihnen eine unkomplizierte Erreichbarkeit der umliegenden Städte und Gemeinden. Die Autobahn ist ebenfalls schnell zu erreichen, wodurch Sie in kürzester Zeit in größere Städte wie Celle oder Hannover gelangen können. Die malerische Umgebung, geprägt von Wäldern und Wiesen, bietet Ihnen zudem zahlreiche Möglichkeiten für Freizeitaktivitäten in der Natur, sei es beim Wandern, Radfahren oder einfach beim Entspannen im Grünen. Hier finden Sie den perfekten Ausgleich zum hektischen Alltag und genießen die Vorzüge einer ländlichen Idylle mit urbanen Annehmlichkeiten.
Adresse
29229 Celle
Interessante Orte
Preis- und Lageinformationen
Preistrend für Bestandsimmobilien in Celle