EVOLUTION 122 hat viele unterschiedliche Gesichter. Ganz modern ausgeführt in einer Variante mit hohem Kniestock,
25° Satteldach und vielen Fensterflächen oder ebenfalls zeitgemäß interpretiert als Flachdach-Planungsvorschlag mit
einem Querhauselement und Terrassenbalkon. Es geht allerdings auch anders: mediterran mit Querhaus, Balkon und Erker.
Ganz nach Ihrem Geschmack und in vielen weiteren Varianten. Denn auch mit einem Walmdach macht EVOLUTION 122
eine klasse Figur.
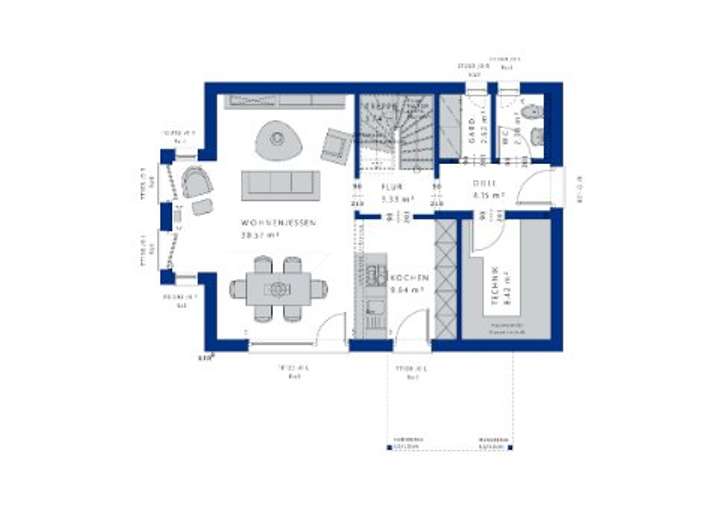
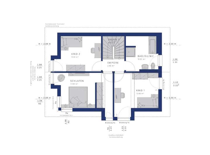
Der intelligente Grundriss bietet auf 122 Quadratmetern alles für das perfekte Wohnerlebnis. Im Erdgeschoss dient der großzügige
Wohn-/Essbereich mit angeschlossener Küche als Lebensmittelpunkt für die Bewohner. Dank großzügiger Fensterflächen
sind alle Räume hell und lichtdurchflutet und bieten gleichzeitig ausreichend Stellfläche. Durch die platzsparende
integrierte Treppe, die sowohl im Erd- als auch im Obergeschoss Basis für eine intelligente Raumaufteilung ist, erschließen
sich die drei Schlafzimmer und das große Wellness-Bad im Obergeschoss. Auch hier begeistern große und lichtdurchflutete
Zimmer.
Leben - Lieben - Lachen und natürlich auch genießen
98574 Schmalkalden
Die vollständige Adresse der Immobilie erhalten Sie vom Anbieter.
Auf Karte anzeigen
Die vollständige Adresse der Immobilie erhalten Sie vom Anbieter.
Finanzierungszertifikat
In nur zwei Minuten zu Ihrem persönlichen Finanzierungszertifkat.
Infos
| Haustyp | Einfamilienhaus |
|---|---|
| Etagenzahl | 2 |
| Wohnfläche ca. | 122 m2 |
| Grundstücksfläche | 973 m2 |
| Zimmer | 4 |
| Schlafzimmer | 3 |
| Badezimmer | 2 |
Kosten
| Kaufpreis |
355.930 € |
|---|
Finanzierungsrechner:
Kaufpreis:
600.000 €
Eigenkapital:
600.000 €
Monatliche Rate
0 €
Effektiver Jahreszins
0 %
Sollzinsbindung
10 Jahre
Bausubstanz & Energieausweis
| Baujahr | unbekannt |
|---|---|
| Bauphase | Haus in Planung (projektiert) |
| Qualität der Austattung | Gehoben |
| Heizungsart | Wärmepumpe |
Beschreibung des Objekts
Ausstattung
Es wurde ein Effizienzhaus 40 "Zur Ausstattung fertig" gerechnet, inkl. Bodenplatte, Grundinstallation, Architekt und Wohlfühl-Klima-Heizung+ mit kontrollierter Wohnraumbe- und Entlüftung.
Mit der Ausbauvariante "Zur Ausstattung fertig" können Sie Ihre handwerklichen Fähigkeiten voll ausspielen, wenn Sie die finalen Ausbauarbeiten selbst erledigen.
In diesem Preis sind enthalten:
Das Bien-Zenker-Haus außen fertig mit Haustür und Fenstern sowie innen mit Treppe
Rollläden mit stabilen Aluminium-Lamellen
die Bodenplatte gemäß aktueller Bau- und Leistungsbeschreibung
30 Jahre Gewährleistung auf die Grundkonstruktion Ihres Bien-Zenker Hauses -5 Jahre Gewährleistung nach BGB auf die übrigen Bauleistungen Ihres Bien-Zenker-Hauses
Dämmpaket KFW40 und Beplankung für Außenwände, Innenwände, Dach im ausgebauten Bereich und oberste Geschossdecke
Elektroinstallation mit Schaltern und Steckdosen
Sanitär-Rohinstallation in den Wänden
Heizungsanlage Wohlfühl-Klima-Heizung
Lüftungsanlage als kontrollierte Wohnraum Be- und Entlüftung inklusive Wärmerückgewinnung
Sanitär-Zwischenverrohrung bis zum Technikraum
Der Estrich
Gerne bieten wir Ihnen das Haus auch als "Schlüsselfertig" (Bezugsfertig) an.
Lage
Das Grundstück liegt am Rande eines ruhigen Wohngebietes im Ortsteil Wernshausen. Eine Bauvoranfrage wurde von der zuständigen Behörde für die Bebauung mit einem EFH positiv beantwortet. Das Grundstück wurde als Freizeitgrundstück genutzt. Die Nachbargrundstücke sind mit Einfamilienhäusern bebaut.
Sonstige Angaben
Im angegebenen Preis für dieses projektierte Haus ist das Grundstück, welches Sie direkt von Dritten erwerben, bereits enthalten. Das Angebot ist unverbindlich und freibleibend, exklusive der Baunebenkosten wie z.B. Hausanschlüsse, Außenanlagen, Notar- und Gerichtskosten.
Abbildungen und Grundrisse zeigen Extras!
Gerne planen wir den Hausbau gemeinsam mit Ihnen auch auf Ihrem bereits vorhandenen Grundstück. In einem ausführlichen Beratungsgespräch ermitteln wir für Sie gerne eine detaillierte Gesamtkostenaufstellung.
Grundriss
Evolution 122 EG
>
>
Evolution 122 DG
>
>
Evolution 122 V2 EG
>
>
Evolution 122 V2 DG
>
>
Evolution 122 V3 EG
>
>
Evolution 122 V3 DG
>
>
Evolution 122 V4 EG
>
>
Evolution 122 V4 DG
>
>
Evolution 122 V5 EG
>
>
Evolution 122 V5 DG
>
>
Adresse
98574 Schmalkalden
Interessante Orte
Preis- und Lageinformationen
Preistrend für Bestandsimmobilien in Schmalkalden