Objektnr: 1065081
+ Das Areal liegt im Ortsteil Gersweiler, mit guter Anbindung an Saarbrücken und die umliegenden Regionen.
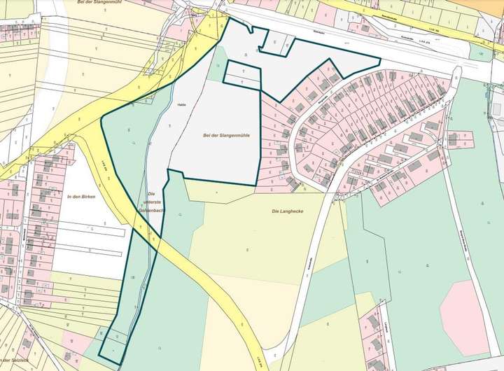
+ Bauerwartungsland (Gewerbegebiet) mit ca. 185.589 m² bietet langfristige Potenziale und Nutzungsmöglichkeiten
+ Landwirtschaftliche Fläche: ca. 61.100 m²
+ Grundstücke bestehen teilweise aus nicht zusammenhängenden Parzellen
+ Profitieren Sie von zukünftigen Entwicklungsmöglichkeiten in attraktiver Lage
Weitläufiges Grundstücksareal mit Bauerwartungsland in Saarbrücken-Gersweiler
66128 Saarbrücken
Die vollständige Adresse der Immobilie erhalten Sie vom Anbieter.
Auf Karte anzeigen
Die vollständige Adresse der Immobilie erhalten Sie vom Anbieter.
Finanzierungszertifikat
In nur zwei Minuten zu Ihrem persönlichen Finanzierungszertifkat.
Infos
| Vermarktungsart | Kaufen |
|---|---|
| Grundstücksfläche | 246.689,03 m2 |
| Erschließung | Unerschlossen |
| Verfügbar ab | nach Absprache |
Kosten
| Miete pro Jahr |
725.000 € |
|---|---|
| Provision |
5,95 % Käufer-Provision: 5,95 % inkl. MwSt., sofern der Verkaufspreis über 83.000,00 € liegt. Die Provision ist mit Beurkundung des Kaufvertrages fällig. Liegt der Verkaufspreis dagegen bei/unter 83.000,00 €, ist die fest vereinbarte Mindestprovision i.H.v. mind. 5.950,00 € inkl. MwSt. mit Kaufvertragsbeurkundung fällig. |
Finanzierungsrechner:
Kaufpreis:
600.000 €
Eigenkapital:
600.000 €
Monatliche Rate
0 €
Effektiver Jahreszins
0 %
Sollzinsbindung
10 Jahre
Beschreibung des Objekts
Lage
Lage: Am gut angebundenen Stadtrand und Top-Erreichbarkeit der Anlaufstellen des tägl. Bedarfs
Nahversorgung: Fußläufige Anbindung zu Supermärkten, Apotheken, Postfilialen und Bankfilialen
Anbindung: Ein Stück entfernt und per Pkw erreichbar: Bushaltestelle, Bahnhof sowie Autobahn
Sonstige Angaben
Vereinbaren Sie noch heute einen Besichtigungstermin!
_____________________________________________________
Alle Angaben sind ohne Gewähr und basieren ausschließlich auf Informationen, die uns von unserem Auftraggeber zur Verfügung gestellt wurden. Wir übernehmen keine Gewähr für die Vollständigkeit, Richtigkeit und Aktualität der Angaben.