Objektnr: 1067309
In Heidenrod, beschaulich und sicher in einer Nebenstraße, präsentiert sich dieses Objekt als ideale Wahl für alle, die Zeit im Freien in ihren Alltag integrieren möchten. Durch die Feldrandlage sind Sie hier von mehr Privatsphäre und weniger Lärmquellen umgeben - ideal für Menschen, die Ruhe und Abgeschiedenheit schätzen. Dank eines stets pfleglichen Umgangs präsentiert sich das 1999 erbaute Objekt heute in einem einladenden Zustand.
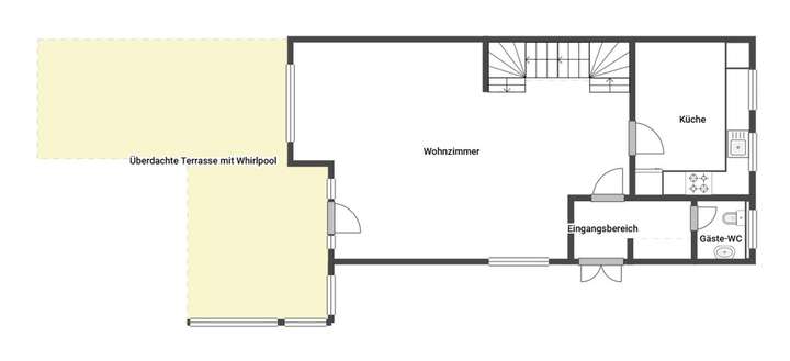
Rund 130 m² familienfreundlicher Wohnfläche mit 5 Zimmern, darunter 3 Schlafzimmer, werden in dieser Immobilie geboten - ideal für Paare und Familien. 2 Badezimmer mit Dusche und Badewanne sowie ein Gäste-WC zählen ebenfalls zum Grundriss des Objektes. Ein besonders edles Detail im Hausinnern ist der robuste Holzparkettboden. Eine Einbauküche gehört ebenfalls zu der Ausstattung.
Hier verlegen Sie Freizeit und Beisammensein dank eines ca. 306 m² großen Grundstücks mühelos ins Freie. Der Garten mit Gartenhaus und Terrasse bietet den Mietern durch seine überschaubare Größe viel Outdoor-Zeit bei minimalem Pflegeaufwand. Fernab neugieriger Blicke dank Sichtschutz können Sie dort Ruhe und Erholung finden. Der Keller bietet den Bewohnern weiteren Stauraum. Zusätzlich sorgen 2 Carportstellplätze dafür, dass Ihre Pkw sicher untergebracht werden können.
Zögern Sie nicht: Gepflegte Doppelhaushälfte mit Garten
65321 Heidenrod
Die vollständige Adresse der Immobilie erhalten Sie vom Anbieter.
Auf Karte anzeigen
Die vollständige Adresse der Immobilie erhalten Sie vom Anbieter.
Finanzierungszertifikat
In nur zwei Minuten zu Ihrem persönlichen Finanzierungszertifkat.
Infos
| Haustyp | Doppelhaushaelfte |
|---|---|
| Etagenzahl | 3 |
| Wohnfläche ca. | 130 m2 |
| Grundstücksfläche | 306,2 m2 |
| Bezugsfrei ab | nach Absprache |
| Zimmer | 5 |
| Schlafzimmer | 3 |
| Badezimmer | 2 |
| Garage/Stellplatz | Carport |
| Anzahl Garage/Stellplatz | 2 |
Kosten
| Kaufpreis |
230.000 € |
|---|---|
| Provision |
3,57 % Die Provision i.H.v. 3,57 % inkl. MwSt. ist mit Kaufvertragsbeurkundung fällig, sofern der Verkaufspreis über 83.000,00 € liegt. Liegt der Verkaufspreis dagegen bei/unter 83.000,00 €, ist die fest vereinbarte Mindestprovision i.H.v. mind. 5.950,00 € inkl. MwSt. mit Kaufvertragsbeurkundung fällig. Die Mindestprovision fällt insg. nur einmal an, wodurch Verkäufer und Käufer die Mindestprovision dann jeweils mit 2.975,00 € inkl. MwSt. tragen. |
Finanzierungsrechner:
Kaufpreis:
600.000 €
Eigenkapital:
600.000 €
Monatliche Rate
0 €
Effektiver Jahreszins
0 %
Sollzinsbindung
10 Jahre
Bausubstanz & Energieausweis
| Baujahr | 1999 |
|---|---|
| Bauphase | Haus fertig gestellt |
| Objektzustand | Gepflegt |
| Heizungsart | Öl-Heizung |
| Wesentliche Energieträger | Öl |
| Energieausweis | liegt vor |
| Energieausweistyp | Bedarfsausweis |
| Energieverbrauchskennwert | 126,9 kWh/(m²*a) |
| Energieeffizienzklasse | D |
126,9
kWh/(m²*a)
Energieeffizienzklasse D
- A+
- A
- B
- C
- D
- E
- F
- G
- H
- 0
- 25
- 50
- 75
- 100
- 125
- 150
- 175
- 200
- 225
- >250
Beschreibung des Objekts
Ausstattung
+ In familienfreundlicher Umgebung in Feldrandlage von Heidenrod, beschaulich und sicher in einer Nebenstraße, optimal als Ihr neues Eigenheim
+ Tolle Außenbereiche: Der uneinsehbare Süd-Garten auf ca. 306 m² Grund lädt zum Verweilen ein - eine Terrasse bereichert das Erlebnis
+ Das Objekt präsentiert sich in einem gepflegten Zustand und ist bereits leerstehend
+ Vielseitige Ausstattung des Hauses inkl. einer Einbauküche sowie einem Holzparkettboden
+ Das Objekt bietet Staufläche dank eines Kellers mit Ausbaupotenzial sowie Platz für Pkw dank 2 Carportstellplätze
Lage
Lage: Erhöhte Privatsphäre dank Feldrandlage in Heidenrod-Nauroth - ideal für Ruhesuchende
Bildung und Betreuung: Bildungs- und Betreuungsangebot vor Ort umfasst einen Kindergarten (max 6 km)
Nahversorgung: Verschiedene Anlaufstellen wie Supermarkt und Apotheke in max. 6 km
Anbindung: Gut erreichbar - nächste Bushaltestelle sowie nächste Autobahn
Sonstige Angaben
Vereinbaren Sie noch heute einen Besichtigungstermin!
_____________________________________________________
Alle Angaben sind ohne Gewähr und basieren ausschließlich auf Informationen, die uns von unserem Auftraggeber zur Verfügung gestellt wurden. Wir übernehmen keine Gewähr für die Vollständigkeit, Richtigkeit und Aktualität der Angaben.
Grundriss
Grundriss Skizze EG
>
>
Grundriss Skizze OG
>
>
Grundriss Skizze UG
>
>
Adresse
65321 Heidenrod
Interessante Orte
Preis- und Lageinformationen
Preistrend für Bestandsimmobilien in Heidenrod