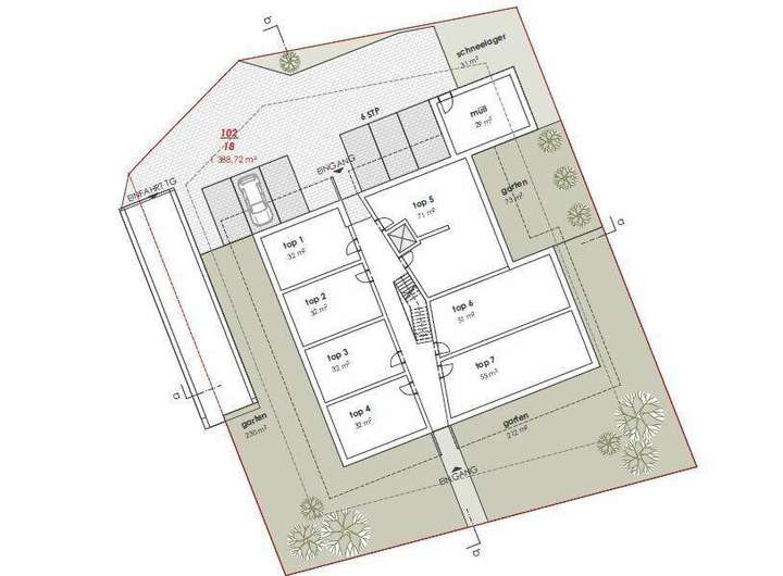
Willkommen in St. Martin bei Lofer – einem Ort, der nicht nur durch seine natürliche Schönheit, sondern auch durch sein Potenzial für Investitionen besticht. Dieses projektierte Grundstück erstreckt sich über großzügige 1.389 m2 und bietet Ihnen die einzigartige Möglichkeit, ein zukunftsweisendes Bauprojekt von sieben Wohneinheiten zu realisieren. Die geplante Bauweise ist bereits mit der Gemeinde abgestimmt und umfasst Wohnungen mit einer Größe von 55 m2 bis 100 m2, die jeweils über sonnige Terrassen oder Balkone verfügen und ein Höchstmaß an Licht und Raumluftigkeit bieten.
Die exzellente Lage in der Siedlung Grubhof besticht durch ihre Nähe zum historischen Schloss Grubhof, das demnächst modernisiert und erweitert wird. Diese geplante Entwicklung trägt zur Wertsteigerung des gesamten Umfeldes bei und macht das Grundstück zu einer lohnenden Investitionsmöglichkeit.
St. Martin bei Lofer kombiniert idyllische Ruhe mit einer vorteilhaften Lage. Zahlreiche Freizeitaktivitäten wie Golfen auf renommierten Plätzen, Radfahren, Mountainbiken und Wandern stehen zur Verfügung. Im Winter bieten sich zahlreiche Pisten in der Umgebung an, während kulturelle und städtische Anreize in den nahegelegenen Städten Zell am See, Kitzbühel und Salzburg erreichbar sind – allesamt in nur etwa 30 Minuten Fahrtzeit.
Dieses Grundstück verkörpert das perfekte Zusammenspiel aus Naturverbundenheit und strategischer Lage und stellt somit eine ideale Gelegenheit für Investoren dar, die eine lukrative und nachhaltige Kapitalanlage anstreben. Derzeit steht das Grundstück sofort zur Verfügung und wartet darauf, Ihr nächstes erfolgreiches Projekt zu werden.
• Grundstück mit bewilligtem Wohnbauprojekt – 7 Einheiten in attraktiver Lage
5092 Sankt Martin bei Lofer
Die vollständige Adresse der Immobilie erhalten Sie vom Anbieter.
Auf Karte anzeigen
Die vollständige Adresse der Immobilie erhalten Sie vom Anbieter.
Finanzierungszertifikat
In nur zwei Minuten zu Ihrem persönlichen Finanzierungszertifkat.
Infos
| Vermarktungsart | Kaufen |
|---|---|
| Grundstücksfläche | 1.388,72 m2 |
| Verfügbar ab | Sofort |
Kosten
| Miete pro Jahr |
592.500 € |
|---|
Finanzierungsrechner:
Kaufpreis:
600.000 €
Eigenkapital:
600.000 €
Monatliche Rate
0 €
Effektiver Jahreszins
0 %
Sollzinsbindung
10 Jahre
Beschreibung des Objekts
Lage
Das Grundstück befindet sich in der malerischen Gemeinde St. Martin bei Lofer im schönen Salzburger Land, Österreich. Diese Region ist bekannt für ihre atemberaubende alpine Landschaft und bietet eine perfekte Kombination aus Naturerlebnis und ländlichem Charme. Eingebettet in die Ausläufer der Leoganger und Loferer Steinberge, ist die Umgebung ein wahres Paradies für Naturliebhaber und Outdoor-Enthusiasten.
Die Gemeinde St. Martin bei Lofer zeichnet sich durch eine hervorragende Lebensqualität aus, geprägt von einer ruhigen und entspannten Atmosphäre, die sowohl Erholung als auch Inspiration bietet. Die Region bietet eine Vielzahl an Freizeitmöglichkeiten, darunter Wandern, Radfahren und im Winter Skifahren auf den bestens präparierten Pisten der nahegelegenen Skigebiete. Zudem ist der Ort ein idealer Ausgangspunkt für zahlreiche Ausflugsmöglichkeiten in die umliegenden Naturschönheiten und Sehenswürdigkeiten des Pinzgaus.
Die Anbindung an die umliegenden Städte ist gut. Die Stadt Salzburg, mit ihrem umfassenden kulturellen und kulinarischen Angebot, ist in etwa einer Autostunde erreichbar. St. Martin bei Lofer verfügt über notwendige Infrastruktureinrichtungen wie Einkaufsmöglichkeiten, Schulen und medizinische Versorgung, die das tägliche Leben komfortabel gestalten.
Wer sich nach einem ruhigen, naturnahen Wohnsitz sehnt, ohne auf eine solide Infrastruktur und eine vielfältige Freizeitgestaltung verzichten zu müssen, findet hier in St. Martin bei Lofer den idealen Standort. Dieses Grundstück bietet nicht nur eine außergewöhnliche Kulisse und eine hohe Lebensqualität, sondern auch die Möglichkeit, in eine lebenswerte und nachhaltige Zukunft zu investieren.