Auch beim EDITION 134 unserer EDITION Hauslinie wählen Sie den Hauseingang auf der Trauf- oder auf der Giebelseite und
bekommen in beiden Fällen eine schicke, geradläufige Treppe hinauf ins Dachgeschoss. Ein klares Grundrisskonzept setzt
unten die Küche vom Ess- und Wohnbereich ab, zusätzlich gibt es hier ein Arbeitszimmer, Gäste-WC und den Technikraum.
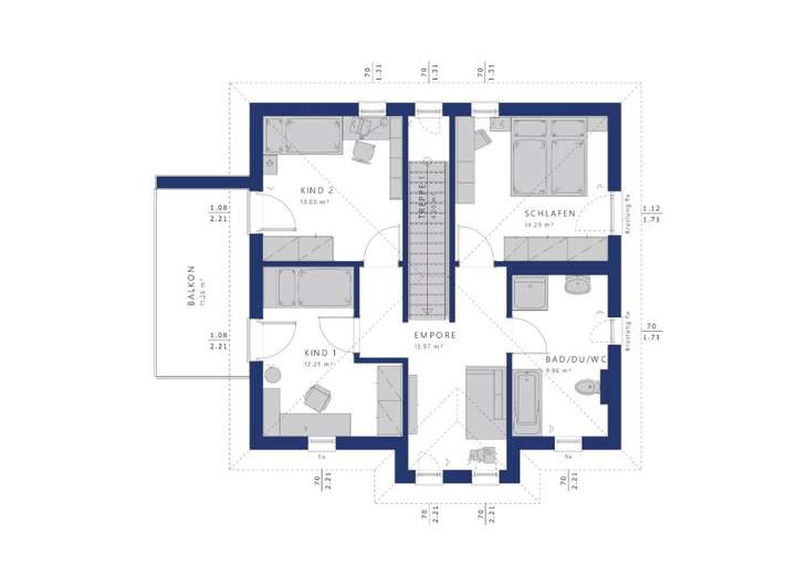
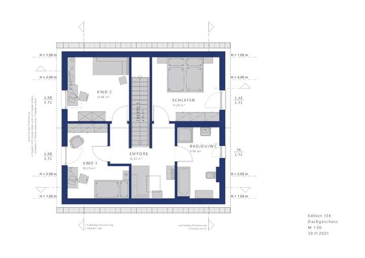
Alles in bester Ordnung ist auch oben. Eine kuschelige Empore erschließt hier drei Zimmer für die Eltern und zwei Kinder,
daneben liegt das Familienbad.
Ein Ort voller Erinnerungen - Jetzt bereit für neue Geschichten!
38855 Wernigerode
Die vollständige Adresse der Immobilie erhalten Sie vom Anbieter.
Auf Karte anzeigen
Die vollständige Adresse der Immobilie erhalten Sie vom Anbieter.
Finanzierungszertifikat
In nur zwei Minuten zu Ihrem persönlichen Finanzierungszertifkat.
Infos
| Haustyp | Einfamilienhaus |
|---|---|
| Etagenzahl | 2 |
| Wohnfläche ca. | 133 m2 |
| Grundstücksfläche | 500 m2 |
| Zimmer | 5 |
| Schlafzimmer | 3 |
| Badezimmer | 2 |
Kosten
| Kaufpreis |
491.453 € |
|---|---|
| Provision | Nein |
Finanzierungsrechner:
Kaufpreis:
600.000 €
Eigenkapital:
600.000 €
Monatliche Rate
0 €
Effektiver Jahreszins
0 %
Sollzinsbindung
10 Jahre
Bausubstanz & Energieausweis
| Baujahr | unbekannt |
|---|---|
| Bauphase | Haus in Planung (projektiert) |
| Qualität der Austattung | Gehoben |
| Heizungsart | Wärmepumpe |
Beschreibung des Objekts
Ausstattung
Wir erstellen Ihr Haus komplett bezugsfertig, deshalb sind folgende Leistungen in unserem Haus serienmäßig:
+ Ausführung als Effizienzhaus 55, nach Ihrer Wahl selbstverständlich auch als Effizienzhaus 40 oder 40 plus,
+ Alle zur Erstellung des Bauantrages notwendigen Architektenleistungen,
+ Ausführliches Baugrundgutachten für das Grundstück,
+ Bodenplatte inkl.
+ Außenwände mit 300 mm Wärmedämmung und Putz in verschiedenen Pastellfarben,
+ Zimmermannsdachstuhl mit 200 mm Wärmedämmung, 3 verschiedene Dachneigungen und Kniestockhöhen im Grundpreis,
+ Luft-Wasser-Wärmepumpe mit Fußbodenheizung im Erd- und Dachgeschoss, optional auch als Sole-Wasser-Wärmepumpe ("Erdwärme"),
+ in der Wand eingebaute Rollläden mit Kurbelantrieb,
+ Holzwangentreppe,
+ Spachtelarbeiten,
+ Tapezierarbeiten,
+ Bodenbeläge,
+ Wand- und Bodenfliesen,
+ Innentüren,
+ Sanitärobjekte.
Natürlich können Sie gern einzelne Gewerke in Eigenleistung ausführen. Wir beraten Sie gern über die möglichen Einsparungen.
Lage
Wernigerode gilt als das Tor zum Harz und besticht durch seine malerische Altstadt sowie die Nähe zur Natur. In der Umgebung finden Sie zahlreiche Bildungseinrichtungen, von Kindergärten bis hin zu weiterführenden Schulen, die bequem erreichbar sind. Auch im Bereich Gesundheit sind Ärzte und Apotheken gut vertreten.
Für Ihren täglichen Bedarf stehen Ihnen diverse Einkaufsmöglichkeiten zur Verfügung - vom Supermarkt bis hin zu kleinen Fachgeschäften in der Innenstadt. Freizeitmöglichkeiten sind vielfältig: Ob Wanderungen in der Harzer Berglandschaft oder kulturelle Veranstaltungen im charmanten Stadtkern - hier kommt jeder auf seine Kosten.
Dank der guten Anbindung an den öffentlichen Nahverkehr gelangen Sie schnell ins Zentrum oder in umliegende Städte wie Goslar oder Quedlinburg. Auch Autobahnen sind leicht erreichbar, was Pendlern entgegenkommt.
Sonstige Angaben
Das Grundstück ist im obigen Preis eingerechnet, es wird ohne zusätzliche Provision an einen Bien-Zenker Bauherren bereitgestellt.
Zusätzliche Baunebenkosten müssen noch hinzugerechnet werden. Hierüber beraten wir Sie gern.
Wir bieten Ihnen interessante Finanzierungsmöglichkeiten inklusive Beantragung aller Fördermittel!
Sie möchten dieses Haus besichtigen: Rufen Sie uns an und zufriedene Kunden zeigen ihnen gern ihr Haus!
Gute Beratung ist der Anfang von Allem. Deshalb analysieren wir gemeinsam mit Ihnen Ihre Vorstellungen, Wünsche und Bedürfnisse und finden so das für Sie und Ihre Familie passende BIEN ZENKER Haus.
Interessiert? Rufen Sie gleich an und vereinbaren Sie noch heute einen kostenlosen und unverbindlichen Beratungstermin unter 0171 - 3 75 65 66.
Grundriss
Edition 134 EG
>
>
Edition 134 DG
>
>
Edition 134 V5 DG
>
>
Edition 134 V5 EG
>
>
Adresse
38855 Wernigerode
Interessante Orte
Preis- und Lageinformationen
Preistrend für Bestandsimmobilien in Wernigerode