Unser EDITION 125 ist ein ebenso komfortables wie alltagspraktisches Eigenheim. Geschaffen für eine vierköpfige
Familie, die einen eigenen Garderobenbereich ebenso zu schätzen weiß wie eine Speisekammer direkt im Anschluss
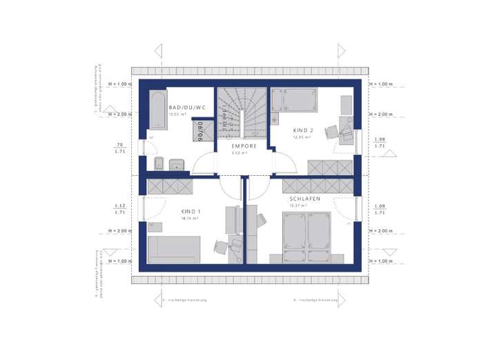
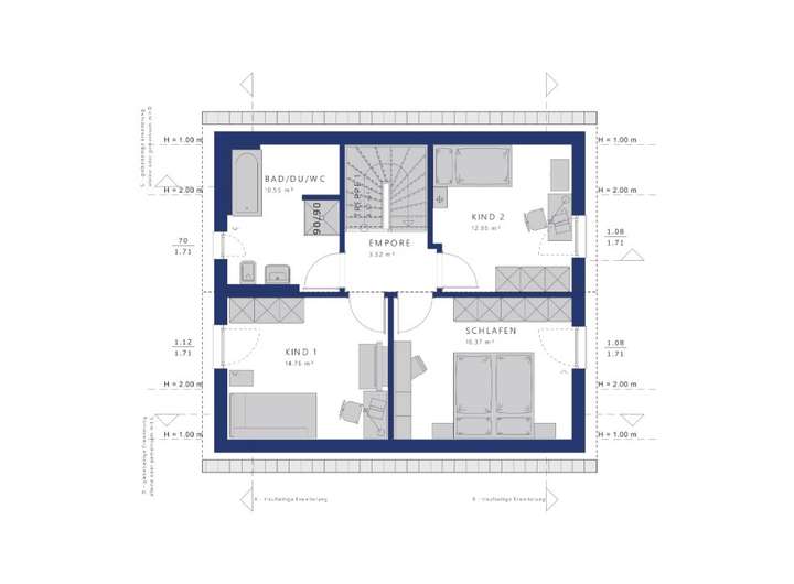
an die Küche. Wenn man morgens das Schlafgeschoss - Elternschlafzimmer mit Ankleide, zwei Kinderzimmer und
Familienbad - verlässt, locken der Frühstückstresen für ein kleines und der Esstisch für ein ausgiebiges Frühstück.
Egal ob der Hauseingang auf der Giebel- oder Traufseite liegt: Die Diele führt in Ihren großzügig bemessenen, offenen
Koch-Ess-Wohnbereich.
Ihr Paradies auf Erden - Ein Zuhause voller Wärme und Liebe!
06667 Reichardtswerben
Die vollständige Adresse der Immobilie erhalten Sie vom Anbieter.
Auf Karte anzeigen
Die vollständige Adresse der Immobilie erhalten Sie vom Anbieter.
Finanzierungszertifikat
In nur zwei Minuten zu Ihrem persönlichen Finanzierungszertifkat.
Infos
| Haustyp | Einfamilienhaus |
|---|---|
| Etagenzahl | 2 |
| Wohnfläche ca. | 125 m2 |
| Grundstücksfläche | 1.180 m2 |
| Zimmer | 4 |
| Schlafzimmer | 3 |
| Badezimmer | 1 |
Kosten
| Kaufpreis |
406.221 € |
|---|
Finanzierungsrechner:
Kaufpreis:
600.000 €
Eigenkapital:
600.000 €
Monatliche Rate
0 €
Effektiver Jahreszins
0 %
Sollzinsbindung
10 Jahre
Bausubstanz & Energieausweis
| Baujahr | unbekannt |
|---|---|
| Bauphase | Haus in Planung (projektiert) |
| Qualität der Austattung | Gehoben |
| Heizungsart | Wärmepumpe |
Beschreibung des Objekts
Ausstattung
Wir erstellen Ihr Haus in bekannter Bien-Zenker Qualität, darin sind unter anderem folgende Leistungen enthalten:
Alle zur Erstellung des Bauantrages notwendigen Architektenleistungen,
Premium Versicherungspaket mit Wohngebäude- inkl. Glasversicherung, Bauleistungsversicherung, Bauherren-Haftpflichtversicherung, Bau-Unfallversicherung, Baufinanzierungsschutz
Ausführung als Effizienzhaus 55, nach Ihrer Wahl auch als Effizienzhaus 40 oder 40 plus,
Luft-Wasser-Wärmepumpe mit Fußbodenheizung und zentrale Komfort-Lüftungsanlage mit Wärmerückgewinnung, optional auch als Sole-Wasser-Wärmepumpe ("Erdwärme") oder Wohlfühlklimaheizung,
Bodenplatte mit Erdarbeiten,
Elektroenergie und Trinkwasser ab Hausanschluss betriebsbereit installiert,
Kunststofffenster mit Dreischeibenverglasung inklusive Rollläden
Fliesenarbeiten und Sanitärobjekte nach Plan.
Folgende Eigenleistungen sind zu erbringen: Malerarbeiten, Fußbodenbeläge, Innentüren. Wir erstellen Ihr Haus aber auch gerne komplett bezugsfertig.
Lage
Reichardtswerben ist ein Ortsteil der Stadt Weißenfels im Burgenlandkreis in Sachsen-Anhalt. Der Ort liegt etwa 3 km nordwestlich des Stadtzentrums von Weißenfels am südlichen Rand des Südfeldsees auf einer Höhe von 141 Metern über dem Meeresspiegel.
Weißenfels liegt verkehrsgünstig etwa 30 km südwestlich von Leipzig und verfügt über eine gute Anbindung an die Autobahn A9. Der internationale Flughafen Leipzig-Halle ist in etwa 30 Minuten erreichbar.
Sonstige Angaben
Das Grundstück ist im obigen Preis eingerechnet, es wird ohne zusätzliche Provision an einen Bien-Zenker Bauherren bereitgestellt.
Zusätzliche Baunebenkosten müssen noch hinzugerechnet werden, hierüber beraten wir Sie gern.
Wir bieten Ihnen interessante Finanzierungsmöglichkeiten inklusive Beantragung aller Fördermittel!
Die Hausabbildungen zeigen teilweise Sonderausstattungen, die nicht im Preis enthalten sind.
Sie möchten dieses Haus besichtigen: Rufen Sie uns an und zufriedene Kunden zeigen ihnen gern ihr Haus!
Gute Beratung ist der Anfang von Allem.
Deshalb analysieren wir gemeinsam mit Ihnen Ihre Vorstellungen, Wünsche und Bedürfnisse und finden so das für Sie und Ihre Familie passende BIEN ZENKER Haus.
Interessiert? Rufen Sie mich gleich an und vereinbaren Sie noch heute einen kostenlosen und unverbindlichen Beratungstermin.
Adresse
06667 Reichardtswerben
Interessante Orte
Preis- und Lageinformationen
Preistrend für Bestandsimmobilien in Reichardtswerben
>
>