Du träumst von den eigenen vier Wänden für dich und deine Familie? Dein neues Zuhause - hochwertig gebaut von LivingHaus, inklusive Grundstück, moderner Einbauküche sowie Photovoltaikanlage mit Speicher und dem LivingHaus-Zuhause-Paket!
Das erwartet dich:
🏡 Ca. 143 m² Wohnfläche - clever aufgeteilt und mit viel Raum zum Leben
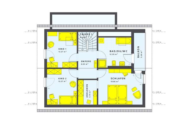
🏡 1 großzügiges Schlafzimmer und 2 helle Kinderzimmer sowie 1 Arbeitszimmer
🏡 Ein offener Wohn- und Essbereich, der zum Mittelpunkt deines Alltags wird
🏡 Moderne Küche nach deinen Wünschen inklusive - im Preis enthalten
🏡 Eigener Garten mit Terrasse - zum Spielen, Toben oder einfach Entspannen
🏡 Energiesparende Bauweise nach neuestem Standard - für niedrige Nebenkosten
🏡 Photovoltaikanlage mit Speicher - Strom selbst erzeugen und sparen
🏡 Zuhause-Paket inklusive: 2 Tage professionelle Bemusterung - du entscheidest, wie dein Zuhause aussieht
🏡 Moderne Architektur und hochwertige Ausstattung, die du mitgestalten kannst
🏡 Ruhige Lage
Hier bekommst du nicht nur ein Haus - du bekommst dein Zuhause.
📞 Melde dich gerne bei mir - ich berate dich persönlich und helfe dir dabei, deinen Traum vom Eigenheim Wirklichkeit werden zu lassen.
🏡Ein Haus, das zu deinem Leben passt | Wendelsheim | LivingHaus inkl. Grundstück
55234 Wendelsheim
Die vollständige Adresse der Immobilie erhalten Sie vom Anbieter.
Auf Karte anzeigen
Die vollständige Adresse der Immobilie erhalten Sie vom Anbieter.
Finanzierungszertifikat
In nur zwei Minuten zu Ihrem persönlichen Finanzierungszertifkat.
Infos
| Haustyp | Einfamilienhaus |
|---|---|
| Etagenzahl | 2 |
| Wohnfläche ca. | 143 m2 |
| Grundstücksfläche | 1.250 m2 |
| Bezugsfrei ab | 2026 |
| Zimmer | 5 |
| Schlafzimmer | 3 |
| Badezimmer | 1 |
Kosten
| Kaufpreis |
614.025 € |
|---|---|
| Provision | Nein |
Finanzierungsrechner:
Kaufpreis:
600.000 €
Eigenkapital:
600.000 €
Monatliche Rate
0 €
Effektiver Jahreszins
0 %
Sollzinsbindung
10 Jahre
Bausubstanz & Energieausweis
| Baujahr | 2026 |
|---|---|
| Bauphase | Haus in Planung (projektiert) |
| Qualität der Austattung | Gehoben |
| Heizungsart | Wärmepumpe |
| Energieausweis | liegt vor |
| Energieausweistyp | Bedarfsausweis |
| Energieverbrauchskennwert | 18,0 kWh/(m²*a) |
| Energieeffizienzklasse | A+ |
18,0
kWh/(m²*a)
Energieeffizienzklasse A+
- A+
- A
- B
- C
- D
- E
- F
- G
- H
- 0
- 25
- 50
- 75
- 100
- 125
- 150
- 175
- 200
- 225
- >250
Beschreibung des Objekts
Ausstattung
Dein neues LivingHaus wird mit umfangreichen Sicherheits- und Komfortgarantien geliefert. Ab Auftragsbestätigung genießt du eine 18-monatige Festpreisgarantie und essenzielle Bauversicherungen wie die Bauherrenhaftpflicht sind bereits inkludiert. Zusätzlich erhältst du ein Finanzierungspaket mit Zinsen unter dem Marktniveau sowie Zugriff zur digitalen Bau-App für umfassende Projektkontrolle.
Die Ausstattung deines Hauses basiert auf hohen Qualitätsstandards:
Du profitierst von einer DGNB-Serienzertifizierung in Gold sowie einer QDF-Zertifizierung, die ökologische und ökonomische Maßstäbe setzt. Eine großzügige Garantie von 30 Jahren auf die Grundkonstruktion sichert langfristig ab.
Zwei Tage Ausstattungsberatung in der Haus-Statterei, eine komplette Bauantragsplanung durch erfahrene Architekten sowie ein Bodengutachten gehören zu deinem Servicepaket dazu - ebenso wie die vollständige Baustelleneinrichtung.
Für nachhaltiges Wohnen ist dein Haus mit einer PV-Anlage samt Speicherbatterie ausgestattet, ergänzt durch Wärmepumpentechnik mit Komfortlüftung. Der Innenausbau umfasst hochwertige Materialien inklusive Fliesen im gesamten Erdgeschoss und bodengleiche Duschen mit Echtglasabtrennungen.
Dank des hohen Vorfertigungsgrades sind alle Wände geschlossen ausgeführt - effizienter geht es kaum! Ob Bodenplatte oder Keller: Alles aus einer Hand bei LivingHaus!
Mit dem DIY Ausbau-Coaching wird dir gezeigt, wie du selbst Hand anlegen kannst - für dein »Wie ich es will Fertighaus«.
Abbildungen enthalten Sonderbauteile die nicht im Hauspreis enthalten sind.
Lage
🌿 Wendelsheim - Zuhause in Rheinhessen
Wendelsheim ist ein Ort, an dem man ankommt und durchatmet. Eingebettet in die sanften Hügel und Weinberge Rheinhessens bietet die Ortsgemeinde mit der Postleitzahl 55234 ein Wohnumfeld, das Ruhe, Natur und Gemeinschaft auf besondere Weise miteinander verbindet.
Wer hier lebt, genießt den Blick über Reben und Felder, klare Luft und eine Umgebung, in der der Alltag entschleunigt wird. Gleichzeitig ist Wendelsheim kein abgeschiedener Ort, sondern ein lebendiges Dorf mit Herz, in dem Nachbarschaft noch zählt und man sich auf Augenhöhe begegnet.
👨👩👧👦 Ein Ort zum Wohlfühlen für alle Generationen
Familien schätzen die überschaubare, sichere Umgebung, Paare und Ruhesuchende die Gelassenheit und Nähe zur Natur. Kinder wachsen hier behütet auf, während Erwachsene das authentische Dorfleben und die kurzen Wege genießen.
🍷 Rheinhessische Lebensfreude
Die Region ist geprägt von Weinbau, Tradition und Geselligkeit. Spaziergänge durch die Weinberge, Fahrradtouren in der Natur oder ein Glas Wein bei geselligen Festen gehören hier ganz selbstverständlich zum Lebensgefühl. Wendelsheim steht für Genuss, Bodenständigkeit und echte Lebensqualität.
🚗 Ruhig wohnen - gut angebunden
Trotz der idyllischen Lage sind die Städte Alzey, Mainz und das Rhein-Main-Gebiet gut erreichbar. Damit verbindet Wendelsheim das Beste aus zwei Welten: entspanntes Wohnen im Grünen und eine gute Anbindung für Beruf und Alltag.
✨ Fazit
Wendelsheim ist mehr als nur ein Wohnort - es ist ein Platz, an dem man sich zuhause fühlt, an dem das Leben überschaubar bleibt und echte Lebensqualität spürbar wird.
Ideal für Menschen, die bei Fa. Lilly-Pharma in Alzey zukünftig arbeiten werden. Entfernung Wendelsheim-Alzey ca. 14 km
Sonstige Angaben
Der grundriss sowie die Hausgröße können selbstverständlich noch auf die indiviuellen Wünsche und Vorstellungen angepasst werden.
Weitere Dokumente
ChecklisteAdresse
55234 Wendelsheim
Interessante Orte
Preis- und Lageinformationen
Preistrend für Bestandsimmobilien in Wendelsheim
>
>