Im beliebten Kölner Stadtteil Junkersdorf, im ruhigen Blumenviertel, befindet sich diese großzügige Haushälfte von 1950 auf einem ca. 578 m² großen Westgrundstück. Das Haus wurde seit 2002 kontinuierlich modernisiert.
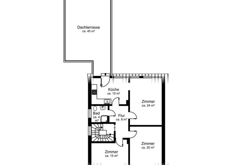
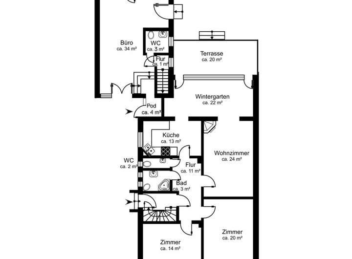
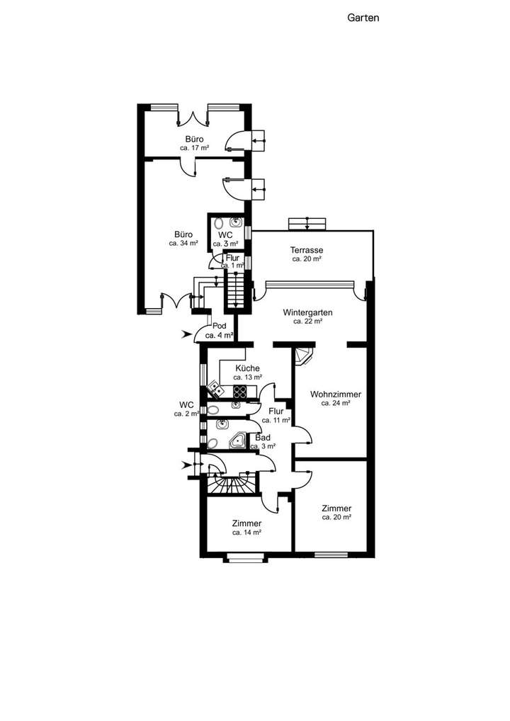
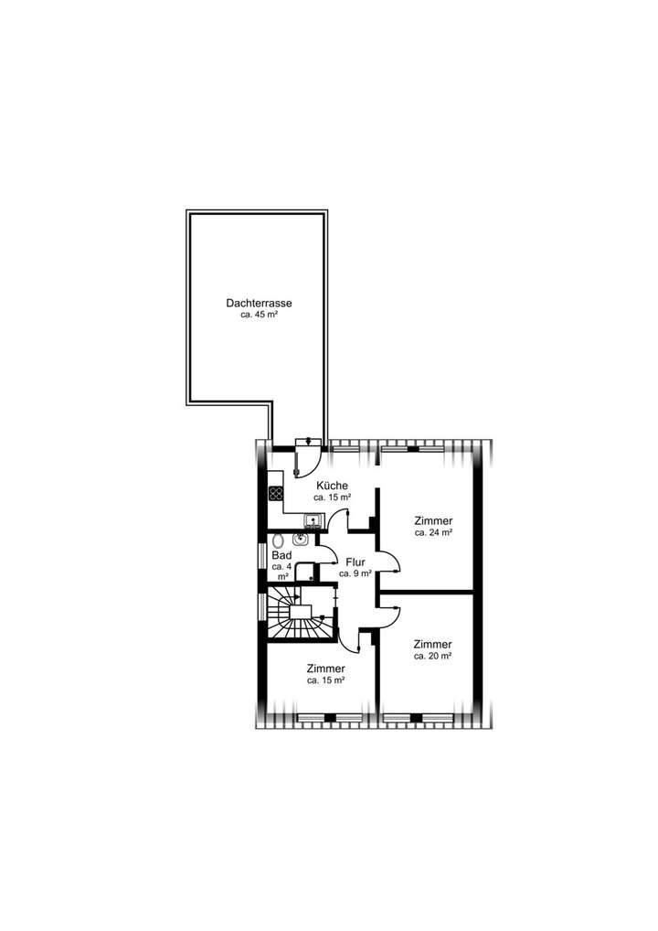
Die ca. 246 m² Wohnfläche ermöglichen eine flexible Nutzung in zwei nahezu separaten Einheiten. Im Erdgeschoss liegen ein Wohnzimmer mit Holzkamin, zwei weitere Zimmer, Küche, Bad mit separatem WC sowie ein beheizter Wintergarten mit Zugang zum Garten. Das Obergeschoss bietet drei weitere große Zimmer, ein modernes Bad, eine Wohnküche und eine rund 45 m² große Dachterrasse mit Blick ins Grüne. Zusätzlich befindet sich ein charmantes Schlafzimmer im Dachgeschoss.
Weitere ca. 55 m² dienen aktuell als modernes Büro mit Klimaanlage und Fußbodenheizung – ideal für das Arbeiten im Homeoffice oder als Gästebereich. Das Haus ist voll unterkellert. Neben den überlichen Abstellräumen steht hier eine Sauna mit Whirlpool und Dusche zur Verfügung. Ein großer Carport, sämtliche Stellplätze und eine kleine Garage bieten gute Parkmöglichkeiten.
Die Immobilie verbindet den Charme der 50er-Jahre-Landhausarchitektur mit vielseitigen Wohnkonzepten – vom Einfamilienhaus über Mehrgenerationenwohnen bis hin zur Kombination aus Wohnen und Arbeiten. Gerne zeigen wir Ihnen diese Immobilie in einem persönlichen Termin.
Großzügiges Wohnhaus im Junkersdorfer Blumenviertel
50858 Köln
Die vollständige Adresse der Immobilie erhalten Sie vom Anbieter.
Auf Karte anzeigen
Die vollständige Adresse der Immobilie erhalten Sie vom Anbieter.
Finanzierungszertifikat
In nur zwei Minuten zu Ihrem persönlichen Finanzierungszertifkat.
Infos
| Haustyp | Doppelhaushaelfte |
|---|---|
| Wohnfläche ca. | 247 m2 |
| Nutzfläche | 55 m2 |
| Grundstücksfläche | 576 m2 |
| Zimmer | 9 |
| Schlafzimmer | 6 |
| Badezimmer | 3 |
Kosten
| Kaufpreis |
1.890.000 € |
|---|---|
| Provision |
3,57% inkl. MwSt. |
Finanzierungsrechner:
Kaufpreis:
600.000 €
Eigenkapital:
600.000 €
Monatliche Rate
0 €
Effektiver Jahreszins
0 %
Sollzinsbindung
10 Jahre
Bausubstanz & Energieausweis
| Baujahr | 1950 |
|---|---|
| Heizungsart | Zentralheizung |
| Wesentliche Energieträger | Gas |
| Energieausweis | liegt vor |
| Energieausweistyp | Bedarfsausweis |
| Energieverbrauchskennwert | 189,6 kWh/(m²*a) |
| Energieeffizienzklasse | F |
189,6
kWh/(m²*a)
Energieeffizienzklasse F
- A+
- A
- B
- C
- D
- E
- F
- G
- H
- 0
- 25
- 50
- 75
- 100
- 125
- 150
- 175
- 200
- 225
- >250
Beschreibung des Objekts
Lage
Das Blumenviertel zählt zu den besten Lagen Junkersdorfs. Die Straßen und Grundstücke sind geprägt von altem Baumbestand und Einfamilienhäusern. Innerhalb des Viertels wurden in den vergangenen Jahren viele Häuser aufwändig saniert oder neu errichtet. Die Lage Junkersdorf erfreut sich über die letzten Jahrzehnte einer zunehmenden Beliebtheit, besonders bei anspruchsvollen Familien. Einkaufsmöglichkeiten, Schulen und Kindergärten sind fußläufig erreichbar. Zahlreiche Sportangebote und der nahegelegene Stadtwald mit seinen Wald- und Wiesenflächen bieten ein hohes Maß an Lebensqualität. Bus und Bahnlinien an der Aachener Straße liegen ebenfalls nur in wenigen Gehminuten entfernt und verbinden Junkersdorf mit der Innenstadt. Das Autobahnkreuz Köln-West (A4/A1) ist in wenigen Minuten erreichbar.
Grundriss
Grundriss EG
>
>
Grundriss OG
>
>
Grundriss DG
>
>
Grundriss KG
>
>
Adresse
50858 Köln
Interessante Orte
Preis- und Lageinformationen
Preistrend für Bestandsimmobilien in Junkersdorf