In einer der begehrtesten und ruhigsten Wohnlagen von Mauern präsentiert sich dieses im Jahr 1966 in solider Massivbauweise errichtete Einfamilienhaus. Durch eine signifikante Baukörpererweiterung im Jahr 1984 wurde das Objekt nachhaltig aufgewertet und bietet heute eine beeindruckende Wohnfläche von ca. 194 m². Auf einem ca. 746 m² großen, herrlich eingewachsenen Areal entfaltet sich hier ein Refugium, das ideal auf die Bedürfnisse anspruchsvoller Familien oder für ein Mehrgenerationen-Konzept zugeschnitten ist.
Die Architektur besticht durch eine klare Linienführung und eine funktionale Raumaufteilung. Während das Erdgeschoss als Zentrum des familiären Lebens fungiert, bietet das Obergeschoss durch die vorhandene Infrastruktur die Option, als autarke Einliegerwohnung genutzt zu werden.
Ausstattung & Highlights
Dieses Objekt bietet eine solide Substanz und wurde bereits in wesentlichen Gewerken energetisch teiloptimiert:
Energetik: Effiziente Öl-Zentralheizung aus dem Jahr 2016 sowie isolierverglaste Kunststofffenster (Einbau 2009).
Raumkonzept: Großzügiger, offen gestalteter Wohn-Essbereich mit fließendem Übergang zur sonnenoptimierten Terrasse.
Flexibilität: Das Obergeschoss verfügt über zwei Balkone und bietet vorbereitete Anschlüsse für eine zweite Kücheneinheit oder eine großzügige Master-Suite mit Ankleide.
Bäder/WC: Zwei vollwertige Tageslichtbäder (jeweils mit Wanne und Dusche ausgestattet) sowie ein separates Gäste-WC.
Vollunterkellerung: Großräumige Räume und direkter Gartenzugang via Außentreppe.
Fuhrpark: Eine Einzelgarage ist vorhanden; die Realisierung eines Doppel-Carports ist aufgrund der Grundstücksgegebenheiten problemlos möglich.
Gestaltungspotenzial & Investitionssicherheit
Die Immobilie befindet sich in einem gepflegten, jedoch teilweise renovierungsbedürftigen Zustand. Dies bietet Erwerbern die exzellente Gelegenheit, durch gezielte Modernisierungsmaßnahmen (Malerarbeiten, Elektrikarbeiten, sanitäre Modernisierung im EG) ihre individuellen Vorstellungen von zeitgemäßem Wohnen zu realisieren.
Besonderes Highlight für Kapitalanleger und Entwickler: Das Grundstück verfügt über ein außergewöhnliches Nachverdichtungspotenzial. Ein genehmigter Bauvorbescheid für die Errichtung einer Doppelhaushälfte liegt bereits vor. Dies garantiert Ihnen nicht nur eine hohe Wertstabilität, sondern auch attraktive Optionen für eine zukünftige Teilung oder Erweiterung des Bestands.
Neue Chance - ein Zuhause für Macher & Träumer in Mauern
85419 Mauern
Die vollständige Adresse der Immobilie erhalten Sie vom Anbieter.
Auf Karte anzeigen
Die vollständige Adresse der Immobilie erhalten Sie vom Anbieter.
Finanzierungszertifikat
In nur zwei Minuten zu Ihrem persönlichen Finanzierungszertifkat.
Infos
| Haustyp | Einfamilienhaus |
|---|---|
| Etagenzahl | 3 |
| Wohnfläche ca. | 194 m2 |
| Grundstücksfläche | 746 m2 |
| Zimmer | 8 |
| Badezimmer | 2 |
| Garage/Stellplatz | Garage |
| Anzahl Garage/Stellplatz | 1 |
Kosten
| Kaufpreis |
525.000 € |
|---|---|
| Provision |
2,975 % inkl. ges. MwSt. Die Käufer-Provision ist verdient und fällig mit notarieller Beurkundung. Die Freisinger Bank eG hat einen provisionspflichtigen Maklervertrag in gleicher Höhe mit dem Verkäufer abgeschlossen. |
Finanzierungsrechner:
Kaufpreis:
600.000 €
Eigenkapital:
600.000 €
Monatliche Rate
0 €
Effektiver Jahreszins
0 %
Sollzinsbindung
10 Jahre
Bausubstanz & Energieausweis
| Baujahr | 1966 |
|---|---|
| Letzte Sanierung | 2016 |
| Heizungsart | Zentralheizung |
| Wesentliche Energieträger | Öl |
| Energieausweis | liegt vor |
| Energieausweistyp | Bedarfsausweis |
| Energieverbrauchskennwert | 320,3 kWh/(m²*a) |
| Energieeffizienzklasse | H |
320,3
kWh/(m²*a)
Energieeffizienzklasse H
- A+
- A
- B
- C
- D
- E
- F
- G
- H
- 0
- 25
- 50
- 75
- 100
- 125
- 150
- 175
- 200
- 225
- >250
Beschreibung des Objekts
Ausstattung
* Viel Platz zur Gestaltung eigener Ansprüche
* Zwei Badezimmer mit Dusche und Badewanne
* Toller Garten für Groß und Klein
* Zusätzlicher Stauraum im Keller
* Aufteilungsmöglichkeit
* Garagenstellplatz für Ihren PKW
Lage
Die wichtigsten Entfernungen:
Kinderkrippe: ca. 260 m
Kindergarten: ca. 260 m
Grundschule: ca. 750 m
weiterführende Schulen: ca. 6 km
Bushaltestelle: ca. 700 m
Arzt: ca. 300 m
Apotheke: ca. 400 m
Einkaufen: ca. 750 m
Essen gehen: ca. 750 m
Bahnhof Moosburg: ca. 7,5 km
Autobahnanschluss A 92: ca. 12 km
Flughafen München: ca. 29 km
Kreisstadt Freising: ca. 24 km
Stadt Landshut: ca. 23 km
Landeshauptstadt München: ca. 53 km
Sonstige Angaben
Sie interessieren sich für das Objekt und möchten sich gerne ein persönliches Bild machen? Dann vereinbaren Sie gerne einen Besichtigungstermin, individuell nach Vereinbarung von Montag bis Freitag.
Unsere Servicezeiten:
Mo - Mi 08.30 Uhr bis 12.30 Uhr und 14:00Uhr bis 16:00Uhr
Do 08.30 Uhr bis 12.30 Uhr und 14:00Uhr bis 18:00Uhr
Fr 08.30 Uhr bis 12:30 Uhr
Alle Abbildungen dienen beispielhaft der Ansicht und sind nicht verbindlich. Pläne eignen sich nicht zur Maßentnahme.
Das Exposè wurde nach bestem Wissen und Gewissen auf Grundlage der uns zugänglichen Informationen erstellt, vorbehaltlich dessen, dass sich Änderungen zu den Angaben ergeben können. Für die Richtigkeit und Vollständigkeit übernimmt die Freisinger Bank eG keine Gewähr.
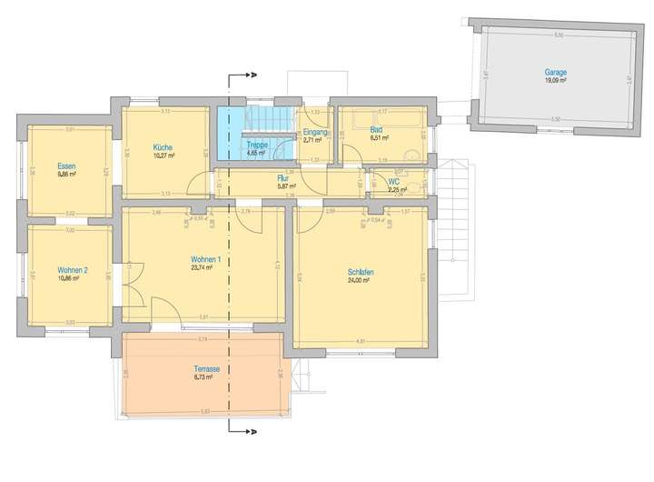
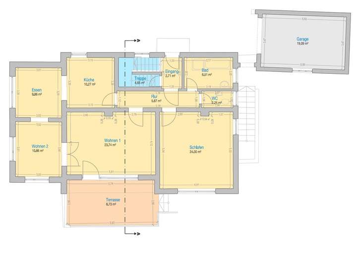
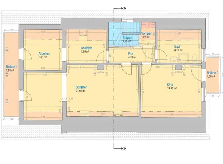
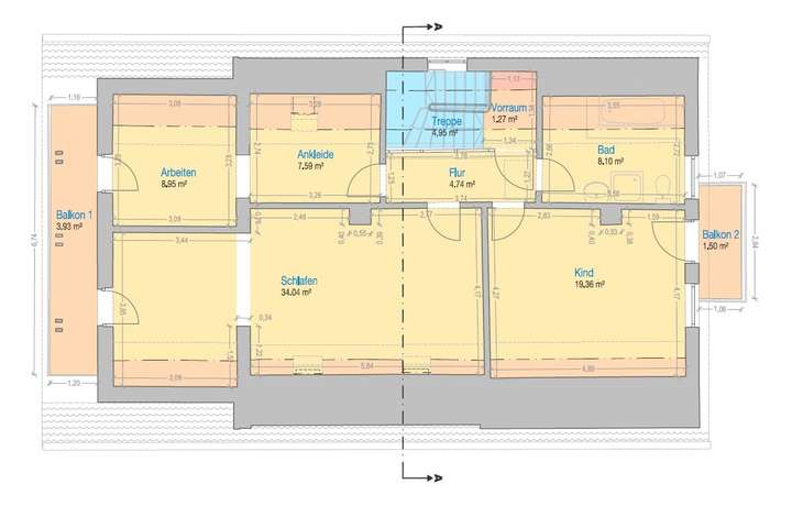
Grundriss
Grundriss EG
>
>
Grundriss OG
>
>
Grundriss DG
>
>
Grundriss Keller
>
>
Adresse
85419 Mauern
Interessante Orte
Preis- und Lageinformationen
Preistrend für Bestandsimmobilien in Mauern