Zum Verkauf steht ein attraktives Baugrundstück mit rund 347 m² Fläche in Altenlingen, einem der beliebtesten Stadtteile von Lingen. Das Grundstück bietet die seltene Möglichkeit, in einer gewachsenen Wohnsiedlung ein neues Zuhause zu realisieren.
Für das Grundstück liegt eine gültige Baugenehmigung für ein Einfamilienhaus mit Satteldach und ca. 114 m² Wohnfläche vor. Ebenfalls genehmigt sind ein Carport sowie ein separater Technikraum.
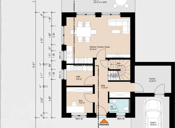
Das genehmigte Einfamilienhaus ist als kompakter und familienfreundlicher Neubau geplant. Im Erdgeschoss befinden sich neben dem Eingangsbereich ein separates Büro, ein Gäste-WC sowie praktische Nebenräume für Haushalt und Technik, wobei der Technikraum direkt an das Carport angebunden ist. Der offene Wohn- und Essbereich mit Küche orientiert sich zum Garten und bietet direkten Zugang zur Terrasse.
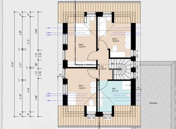
Im Obergeschoss stehen zwei Kinderzimmer, ein Elternschlafzimmer sowie ein Badezimmer mit Dusche und Badewanne zur Verfügung.
Der genehmigte Entwurf dient als Grundlage und lässt Spielraum für individuelle Anpassungen oder Weiterentwicklungen.
Das Grundstück liegt in einer voll erschlossenen Wohnsiedlung. Sämtliche Anschlüsse für Strom, Wasser, Abwasser und Telekommunikation liegen in der Straße. Eine Bauträgerbindung oder ein Bauzwang bestehen nicht; Sie entscheiden frei über Zeitpunkt und Partner Ihres Bauvorhabens.
Der Verkauf erfolgt privat und provisionsfrei.
Bei Interesse bitten wir um Kontaktaufnahme mit vollständigem Namen und Telefonnummer. Gerne stellen wir Ihnen weitere Unterlagen zur Verfügung.
Ihr neues Zuhause in Altenlingen: Baugrundstück mit Genehmigung - Provisionsfrei
49808 Lingen (Ems)
Die vollständige Adresse der Immobilie erhalten Sie vom Anbieter.
Auf Karte anzeigen
Die vollständige Adresse der Immobilie erhalten Sie vom Anbieter.
Finanzierungszertifikat
In nur zwei Minuten zu Ihrem persönlichen Finanzierungszertifkat.
Infos
| Vermarktungsart | Kaufen |
|---|---|
| Grundstücksfläche | 347 m2 |
| Erschließung | Erschlossen |
| Verfügbar ab | nach Absprache |
Kosten
| Miete pro Jahr |
150.000 € |
|---|---|
| Provision | Nein |
Finanzierungsrechner:
Kaufpreis:
600.000 €
Eigenkapital:
600.000 €
Monatliche Rate
0 €
Effektiver Jahreszins
0 %
Sollzinsbindung
10 Jahre
Beschreibung des Objekts
Lage
Die Immobilie liegt in zentraler Wohnlage im Herzen von Altenlingen - einer der beliebtesten Wohngegenden für Familien. Einkaufsmöglichkeiten, Grundschule, Kindergarten und weitere Einrichtungen sind bequem erreichbar.
Infrastruktur (im Umkreis von 5 km):
Apotheke, Lebensmittel-Discount, Allgemeinmediziner, Kindergarten, Grundschule, Hauptschule, Realschule, Gymnasium, Gesamtschule, Öffentliche Verkehrsmittel
Sonstige Angaben
ohne-makler (OM) ist weder Anbieter noch Vermittler der Immobilie. OM betreibt eine Plattform für Immobilieneigentümer, die unter anderem die gleichzeitige Veröffentlichung einzelner Inserate auf mehreren Immobilienportalen ermöglicht. Die Inhalte dieser Inserate werden ausschließlich von Dritten verantwortet. Für die Richtigkeit, Vollständigkeit oder Rechtmäßigkeit der Angaben übernimmt OM keine Haftung. Hinweise auf mögliche Rechtsverstöße können jederzeit gemeldet werden und werden nach Prüfung umgehend bearbeitet.
Grundriss
Grundriss
>
>
Grundriss
>
>