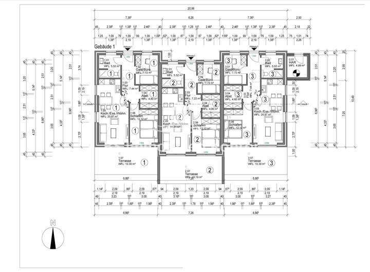
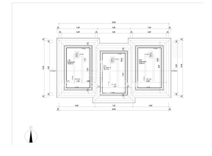
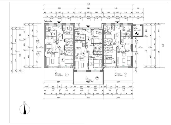
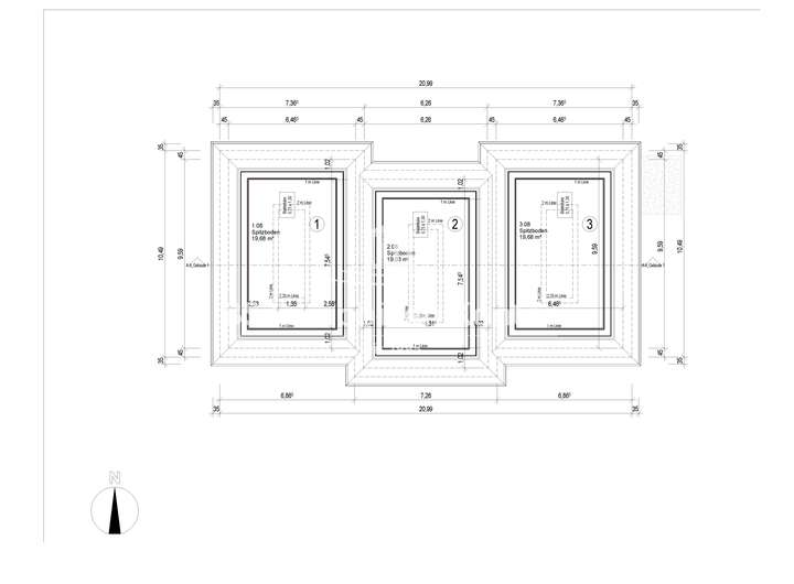
Zum Verkauf steht ein projektiertes Baugrundstück in der Gemeinde Großheide, Gemarkung Westerende, das sich besonders durch seine bereits vorliegende Baugenehmigung und die damit verbundene Möglichkeit eines kurzfristigen Baustarts auszeichnet. Geplant ist die Errichtung von insgesamt neun modernen Bungalows, verteilt auf drei Gebäude, wodurch ein überschaubares, zugleich aber wirtschaftlich äußerst attraktives Wohnprojekt realisiert werden kann. In Zeiten zunehmender Genehmigungsdauer bietet dieses Angebot einen entscheidenden Vorteil, da sämtliche planungsrechtlichen Voraussetzungen bereits erfüllt sind und unmittelbar mit der Bauausführung begonnen werden kann. Das rund 2.241 Quadratmeter große Grundstück ermöglicht die Schaffung einer gesamten Wohnfläche von etwa 806,63qm. Jeder der geplanten Bungalows verfügt über eine durchschnittliche Wohnfläche von circa 87 Quadratmetern und überzeugt durch eine zeitgemäße, funktionale Grundrissgestaltung. Das Konzept des ebenerdigen Wohnens entspricht einer stark nachgefragten Wohnform und bietet sowohl für Eigennutzer als auch für Mieter langfristige Attraktivität.Dieses Angebot richtet sich in besonderem Maße an Bauunternehmen, die auf der Suche nach einem genehmigten Grundstück sind, um freie Kapazitäten effizient auszulasten und ohne Verzögerung mit der Umsetzung eines klar definierten Bauprojekts zu beginnen. Gleichzeitig stellt das Projekt eine äußerst interessante Gelegenheit für Kapitalanleger dar, die Wohnraum für den eigenen Bestand schaffen und nachhaltig vermieten möchten. Neubau-Bungalows in barrierearmer Ausführung gelten als besonders wertstabil und sprechen eine breite Zielgruppe an, wodurch eine dauerhaft gute Vermietbarkeit gegeben ist.
Projektiertes Grundstück mit Baugenehmigung für neun Bungalows zu verkaufen!
26532 Großheide
Die vollständige Adresse der Immobilie erhalten Sie vom Anbieter.
Auf Karte anzeigen
Die vollständige Adresse der Immobilie erhalten Sie vom Anbieter.
Finanzierungszertifikat
In nur zwei Minuten zu Ihrem persönlichen Finanzierungszertifkat.
Infos
| Vermarktungsart | Kaufen |
|---|---|
| Grundstücksfläche | 2.241 m2 |
| Erschließung | Teilerschlossen |
| Empfohlene Nutzung | Doppelhaus, Einfamilienhaus |
| Bebaubar nach | Bebauungsplan |
| Verfügbar ab | Kurzfristig moeglich |
Kosten
| Miete pro Jahr |
327.000 € |
|---|---|
| Provision |
Die Maklerprovision beträgt für den Käufer 5,95% vom Kaufpreis inkl. ges. MwSt.. |
Finanzierungsrechner:
Kaufpreis:
600.000 €
Eigenkapital:
600.000 €
Monatliche Rate
0 €
Effektiver Jahreszins
0 %
Sollzinsbindung
10 Jahre
Beschreibung des Objekts
Lage
26532 Großheide (Ruhige Wohnlage, Nordseeküstenregion, Einkaufsmöglichkeiten in nächster Nähe, gute ÖPNV, Nähe zur Hage und Golfplatz)
Sonstige Angaben
Weitere Unterlagen und die Baugenehmigung erhalten Sie auf Anfrage!