Dieses gepflegte Einfamilienhaus wurde im Jahr 2002 in solider Massivbauweise errichtet und überzeugt durch seinen sehr guten Zustand sowie zahlreiche Modernisierungen. Mit ca. 130 m² Wohnfläche bietet die Immobilie ausreichend Platz für die ganze Familie.
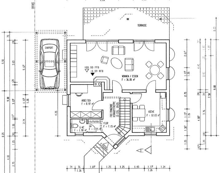
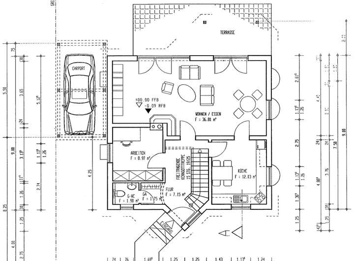
Erdgeschoss – Wohnen & Leben
Der Mittelpunkt des Hauses ist die offene und großzügige Küche, die harmonisch in den angrenzenden Wohn- und Essbereich übergeht und zu gemütlichem Beisammensein einlädt. Das Wohn- und Esszimmer wurde 2018 umfassend saniert und modernisiert:
• großformatige Bodenfliesen (75 x 150 cm)
• elektrische Rollläden
• neue Heizkörper
• moderner Kamin
Ergänzt wird das Erdgeschoss durch ein Arbeits- oder Kinderzimmer, ein Gäste-WC sowie den Flur.
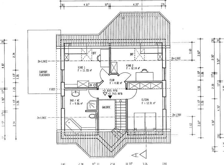
Dachgeschoss – Rückzugsorte für die Familie
Im Dachgeschoss befinden sich drei Schlafzimmer, die ebenfalls 2018 mit hochwertigem Laminat renoviert wurden. Das Tageslichtbad ist mit Badewanne und Dusche ausgestattet.
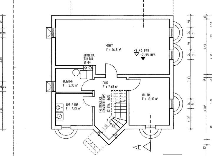
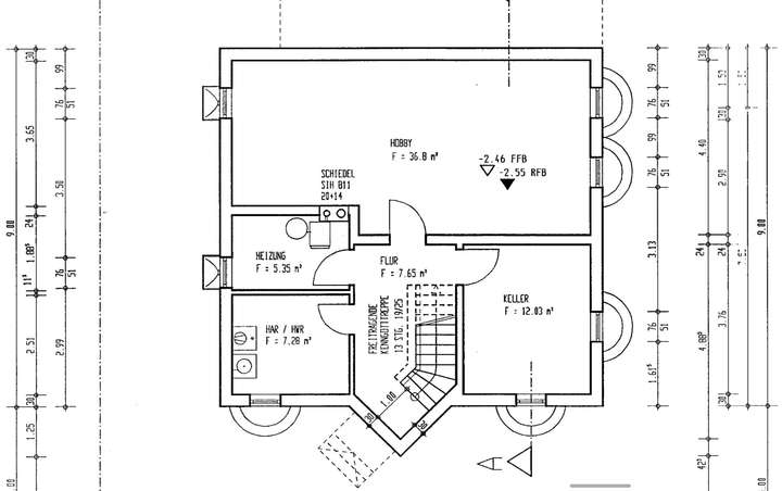
Kellergeschoss – vielseitig nutzbar
Der Keller ist voll ausgebaut (nicht in der Wohnfläche enthalten) und bietet:
• einen großen Hobby- oder Arbeitsraum (komplett renoviert 2022)
• Waschraum
• Heizraum
• Abstellraum
Grundstück & Außenbereich
Das Haus, das im Jahr 2023 einen komplett neuen Außenanstrich erhalten hat, steht auf einem 524 m² großen Grundstück, das viel Platz zum Spielen, Entspannen und für gesellige Stunden im Freien bietet.
Garage & Nebenflächen
Die Garage mit angrenzender Werkstatt bzw. Geräteraum wurde 2018 modernisiert und mit einem Dach aus energieeffizienten Sandwichpaneelen ausgestattet. Zusätzlich sorgen:
• Bodenbeschichtung im Innenbereich
• Klimaleichtputz
• praktische Ordnungssysteme für Fahrräder, Werkzeuge und Gartenzubehör
für viel Stauraum und eine optimale Nutzung.
Energie & Ausstattung
• Photovoltaikanlage (2019)
• Energieeffizienzklasse B
Besonderheit:
✔ Keine Käuferprovision
Diese Immobilie vereint modernen Wohnkomfort, durchdachte Raumaufteilung und eine attraktive Lage – ideal für alle, die ein sofort bezugsfertiges Zuhause suchen.
Mehr Raum. Mehr Ruhe. Freistehendes Einfamilienhaus mit schönem Garten
55578 Gau-Weinheim
Die vollständige Adresse der Immobilie erhalten Sie vom Anbieter.
Auf Karte anzeigen
Die vollständige Adresse der Immobilie erhalten Sie vom Anbieter.
Finanzierungszertifikat
In nur zwei Minuten zu Ihrem persönlichen Finanzierungszertifkat.
Infos
| Haustyp | Einfamilienhaus |
|---|---|
| Etagenzahl | 1 |
| Wohnfläche ca. | 128 m2 |
| Grundstücksfläche | 524 m2 |
| Bezugsfrei ab | 01.06.2026 |
| Zimmer | 5 |
| Schlafzimmer | 4 |
| Badezimmer | 1 |
| Garage/Stellplatz | Garage |
| Anzahl Garage/Stellplatz | 1 |
Kosten
| Kaufpreis |
648.000 € |
|---|---|
| Provision |
0,00 keine Käuferprovision |
Finanzierungsrechner:
Kaufpreis:
600.000 €
Eigenkapital:
600.000 €
Monatliche Rate
0 €
Effektiver Jahreszins
0 %
Sollzinsbindung
10 Jahre
Bausubstanz & Energieausweis
| Baujahr | 2002 |
|---|---|
| Letzte Sanierung | 2020 |
| Objektzustand | Gepflegt |
| Heizungsart | Gas-Heizung |
| Wesentliche Energieträger | Gas |
| Energieausweis | liegt vor |
| Energieausweistyp | Verbrauchsausweis |
| Energieverbrauchskennwert | 67,4 kWh/(m²*a) |
| Energieeffizienzklasse | B |
67,4
kWh/(m²*a)
Energieeffizienzklasse B
- A+
- A
- B
- C
- D
- E
- F
- G
- H
- 0
- 25
- 50
- 75
- 100
- 125
- 150
- 175
- 200
- 225
- >250
Beschreibung des Objekts
Ausstattung
- PV-Anlage
- Terrasse
- großer Garten
- Kunststoff-Fenster zweifach
- Gas-Heizung
- Garage mit Werkstatt und Geräteraum
- Tageslichtbad
- keine Käuferprovision
Lage
Das Einfamilienhaus befindet sich in Gau-Weinheim, einer ruhigen und familienfreundlichen Gemeinde der Verbandsgemeinde Wörrstadt. Gau-Weinheim zeichnet sich durch seine idyllische Lage inmitten von Weinbergen und Natur aus.
Zur A61 und A63 sind es nur ein paar Minuten.
Gau-Weinheim bietet eine Kindertagesstätte.
Die Region, in der sich die Immobilie befindet, ist bekannt für ihre Weinproduktion und hat eine reizvolle Landschaft zu bieten. Die Weinberge prägen das Bild der Umgebung und laden zu Weinproben und gemütlichen Festen ein.
Sonstige Angaben
Wir bitten Sie, bei Ihrer Anfrage die VOLLSTÄNDIGE ADRESSE und Telefonnummer anzugeben, da wir diese Angaben aus rechtlichen Nachweisgründen festhalten müssen. Wir versichern Ihnen, dass Ihre Daten nicht an Dritte weitergegeben werden. Sollten die Angaben nicht vollständig sein, können wir Ihnen leider nicht die gewünschten Unterlagen zukommen lassen. Der Versand erfolgt vorzugsweise per E-Mail.
Als Immobilienmaklerunternehmen sind wir nach § § 1, 2 Abs. 1 Nr. 10, 4 Abs. 3 Geldwäschegesetz (GwG) dazu verpflichtet, vor Begründung einer Geschäftsbeziehung die Identität des Vertragspartners festzustellen und zu überprüfen. Hierzu ist es erforderlich, dass wir die relevanten Daten Ihres Personalausweises festhalten – beispielsweise mittels einer Kopie. Das Geldwäschegesetz (GwG) sieht vor, dass der Makler die Kopien bzw. Unterlagen fünf Jahre aufbewahren muss.
Grundriss
KG
>
>
EG
>
>
OG
>
>
Adresse
55578 Gau-Weinheim
Interessante Orte
Preis- und Lageinformationen
Preistrend für Bestandsimmobilien in Gau-Weinheim