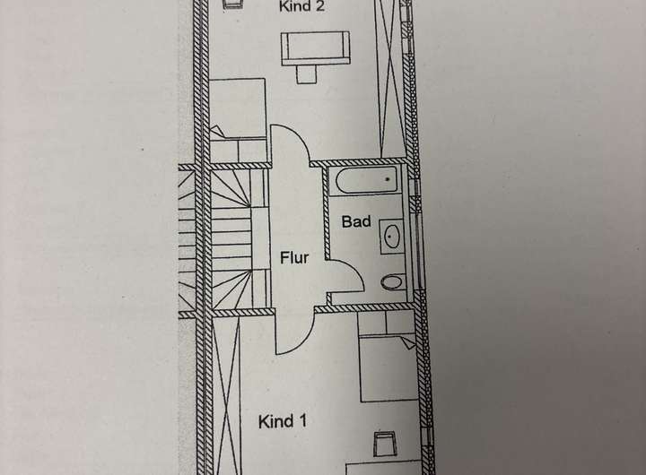
Dieses exklusiv ausgestattete Einfamilienhaus mit ca. 148 m² Wohnfläche und ca. 320 m² Grundstücksfläche wurde im Jahr 2004 erbaut und im Jahr 2025 vollständig renoviert. Es bietet 5 Zimmer, 2 Badezimmer und ein Gäste-WC. Die moderne Fußbodenheizung sorgt für wohlige Wärme. Das Haus verfügt über einen Keller und einen Stellplatz. Die ansprechende Ausstattung und die durchdachte Raumaufteilung machen dieses Haus zu einem idealen Familiendomizil.
Renoviertes 5-Zimmer Einfamilienhaus in Mörfelden-Walldorf,,RESERVIERT,,!!!
64546 Mörfelden-Walldorf
Die vollständige Adresse der Immobilie erhalten Sie vom Anbieter.
Auf Karte anzeigen
Die vollständige Adresse der Immobilie erhalten Sie vom Anbieter.
Finanzierungszertifikat
In nur zwei Minuten zu Ihrem persönlichen Finanzierungszertifkat.
Infos
| Haustyp | Doppelhaushaelfte |
|---|---|
| Etagenzahl | 2 |
| Wohnfläche ca. | 148 m2 |
| Grundstücksfläche | 320 m2 |
| Zimmer | 5 |
| Badezimmer | 2 |
| Garage/Stellplatz | Parkhaus |
| Anzahl Garage/Stellplatz | 2 |
Kosten
| Kaufpreis |
639.000 € |
|---|---|
| Provision | Nein |
Finanzierungsrechner:
Kaufpreis:
600.000 €
Eigenkapital:
600.000 €
Monatliche Rate
0 €
Effektiver Jahreszins
0 %
Sollzinsbindung
10 Jahre
Bausubstanz & Energieausweis
| Baujahr | 2004 |
|---|---|
| Letzte Sanierung | 2025 |
| Bauphase | Haus fertig gestellt |
| Objektzustand | Vollständig Renoviert |
| Qualität der Austattung | Gehoben |
| Heizungsart | Fußbodenheizung |
| Wesentliche Energieträger | Gas |
Beschreibung des Objekts
Lage
Mörfelden-Walldorf im Kreis Groß-Gerau bietet eine gute Mischung aus städtischem Leben und ländlicher Ruhe. Die S-Bahn-Linie S7 sowie die Buslinie 751 sorgen für eine schnelle Anbindung an Frankfurt und die Umgebung. Die Nachbarschaft ist geprägt von Einfamilien- und Mehrfamilienhäusern und gilt als sicherer Wohnort mit einer freundlichen Gemeinschaft, die Aktivitäten für alle Altersgruppen bereithält.
Adresse
64546 Mörfelden-Walldorf
Interessante Orte
Preis- und Lageinformationen
Preistrend für Bestandsimmobilien in Mörfelden-Walldorf