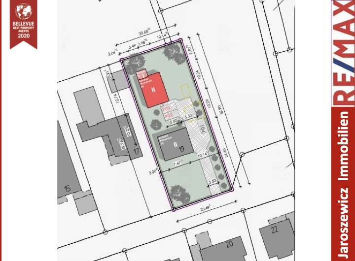
Zum Verkauf steht ein großzügiges Grundstück von ca. 503 m² in zweiter Reihe, das bereits bestens vorbereitet ist für die Errichtung eines modernen Wohnhauses. Eine gültige Baugenehmigung liegt vor, die den Bau eines Wohnhauses mit zwei Vollgeschossen ermöglicht.
Die Planungen sehen Folgendes vor:
- Erdgeschoss: ca. 59,08 m²
- 1. Obergeschoss: ca. 57,88 m²
- Gesamtnutzfläche: ca. 116,96 m²
Zusätzlich ist die Errichtung eines Nebengebäudes sowie von zwei Einstellplätzen geplant. Der Baugrund wurde bereits professionell vorbereitet: Das Baufeld ist ausgekoffert, mit Sand aufgefüllt und verdichtet.
Das Grundstück befindet sich in einer der besten Lagen von Leer, im südlichen Teil des Julianenparks. Hier genießen Sie eine ruhige Nachbarschaft, während Sie dennoch in zentraler Lage leben. Der Julianenpark ist nur etwa 100 Meter in Luftlinie entfernt und bietet einen hervorragenden Erholungsraum.
Nutzen Sie die Gelegenheit, in dieser attraktiven Lage Ihr Traumhaus zu realisieren. Für weitere Informationen oder einen Besichtigungstermin stehen wir Ihnen gerne zur Verfügung.
* Baugrundstück mit Genehmigung in Leers bester Lage – Südlich des Julianenparks *
26789 Leer (Ostfriesland)
Die vollständige Adresse der Immobilie erhalten Sie vom Anbieter.
Auf Karte anzeigen
Die vollständige Adresse der Immobilie erhalten Sie vom Anbieter.
Finanzierungszertifikat
In nur zwei Minuten zu Ihrem persönlichen Finanzierungszertifkat.
Infos
| Vermarktungsart | Kaufen |
|---|---|
| Grundstücksfläche | 503 m2 |
Kosten
| Miete pro Jahr |
370.000 € |
|---|---|
| Provision |
4,17 % vom Kaufpreis inkl.MwSt |
Finanzierungsrechner:
Kaufpreis:
600.000 €
Eigenkapital:
600.000 €
Monatliche Rate
0 €
Effektiver Jahreszins
0 %
Sollzinsbindung
10 Jahre
Beschreibung des Objekts
Lage
Dieses attraktive Wohnbaugrundstück befindet sich in einer der begehrtesten Wohngegenden von Leer in Ostfriesland. Die ruhige und zugleich zentrale Lage macht den Standort besonders reizvoll für Familien und Paare, die eine hohe Lebensqualität schätzen.
Leer, oft als "Tor Ostfrieslands" bezeichnet, bietet eine hervorragende Infrastruktur. In unmittelbarer Nähe finden sich sämtliche Annehmlichkeiten des täglichen Lebens, darunter Einkaufsmöglichkeiten, Schulen, Kindergärten und medizinische Einrichtungen. Das Stadtzentrum von Leer, mit seinen historischen Fassaden und charmanten Gassen, erreichen Sie in wenigen Minuten.
Die Umgebung besticht durch eine Mischung aus urbanem Lebensstil und naturnahem Wohnen. Zahlreiche Grünflächen und die Nähe zu Freizeiteinrichtungen laden zu Aktivitäten im Freien ein und bieten Erholung vor der eigenen Haustür. Die gute Anbindung an das Verkehrsnetz gewährleistet zudem eine komfortable und schnelle Erreichbarkeit benachbarter Städte und Regionen.
Erleben Sie eine perfekte Symbiose aus Ruhe und Bequemlichkeit, in einem Ort, der kulturell und landschaftlich viel zu bieten hat. Dieses Grundstück bietet Ihnen die Möglichkeit, Ihren Traum vom Eigenheim in einer lebendigen und dennoch ruhigen Umgebung zu verwirklichen.
Sonstige Angaben
**** BITTE SCHICKEN SIE UNS EINE E-Mail, DAMIT WIR IHRE ANFRAGE BERÜCKSICHTIGEN KÖNNEN !!!! ****
Agnieszka Jaroszewicz
Immobilienmaklerin
Tel.: 0491 997568-22
Mobil: 0157 38843445
E-Mail: agnieszka.jaroszewicz(at)remax.de
Provision: 4,17 % vom Kaufpreis inkl. 19% MwSt.
Die hier vereinbarte Maklerprovision (Courtage) ist NICHT verhandelbar!
Impressum:
Berufsaufsichtsbehörde:nach § 34c GewO: IHK für Ostfriesland und Papenburg, Postfach 1752, 26697 Emden
USt.ID: 60/120/16895
Informationen zur Online-Streitbeilegung: Die Europäische Kommission wird ab dem ersten Quartal 2016 eine Plattform zur Online-Streitbeilegung (sog. „OS-Plattform") bereitstellen. Diese finden Sie unter http://ec.europa.eu/consumers/odr/ Unsere E-Mail Adresse lautet: agnieszka.jaroszewicz@remax.de